




Location Local d'activité 2 412 m²
34110 Frontignan
2 412 m²
75 €
HT/HC/m²/an
Disponibilité : Immédiate

Rodolphe CHEVALLIER
Description
FRONTIGNAN - ZA MAS DE KLE - LOCAL D'ACTIVITÉ - A LOUER - A VENDRE
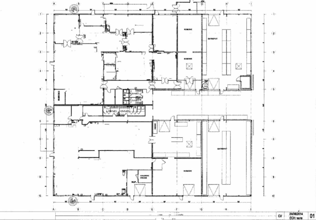
Production et stockage : 2.047 m² environ
- Accès poids lourds
- 7 portes livraison de plain pied
- Accès gros porteur
- Accès plain-pied
- Façade bardage double peau
- HSP : 4m50
- Nature du sol : Dalle béton
- Type de charpente : Métallique
- Bureaux partiellement cloisonnés
- Câblage RJ45
- Climatisation réversible
- EDF 380
- Sol : parquet
- Sanitaires privés
- Vestiaires
Contactez nous sans plus tarder pour plus d'informations et demande de visite !
ACCESSIBILITES :
- Autoroutes A9 à 8 minutes, A75 à 30 minutes
- Bus : Lignes A et 10 arrêt "Horizon Sud" à 8 minutes à pied
Gares SNCF de Sète et Frontignan à 10 minutes chacune
Aéroport de Montpellier à 28 minutes
Services & prestations
Hauteurs
-
Hauteur libre : Hauteur sous poutre 4,5 m
Equipements
-
Climatisation : Sur la partie Bureaux et Labo
-
Sols du bâtiment : Dalle Béton
Structure du bâtiment
-
Charpente : Métallique
Aménagements
-
Aménagement des bureaux : Partiellement cloisonnés
Informations complémentaires
-
Câblage RJ45, Façade bardage double peau
-
Accès gros porteur
-
Accès plain-pied










