




Vente Local d'activité 2 412 m²
34110 Frontignan
2 412 m²
1 900 000 €
HT/HD
Disponibilité : Immédiate

Rodolphe CHEVALLIER
Description
FRONTIGNAN - ZA MAS DE KLE - LOCAL D'ACTIVITÉ - A LOUER - A VENDRE
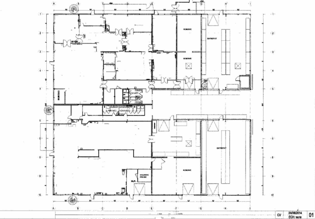
Production et stockage : 2.047 m² environ
- Accès poids lourds
- 7 portes livraison de plain pied
- Accès gros porteur
- Accès plain-pied
- Façade bardage double peau
- HSP : 4m50
- Nature du sol : Dalle béton
- Type de charpente : Métallique
- Bureaux partiellement cloisonnés
- Câblage RJ45
- Climatisation réversible
- EDF 380
- Sol : parquet
- Sanitaires privés
- Vestiaires
Ce bâtiment dispose de son propre poste de transformation d'électricité avec un compteur C2 (anciennement tarif vert) ce qui permet d'avoir une puissance électrique très importante (jusqu'à 1200kw en continu à priori).
Contactez nous sans plus tarder pour plus d'informations et demande de visite !
ACCESSIBILITES :
- Autoroutes A9 à 8 minutes, A75 à 30 minutes
- Bus : Lignes A et 10 arrêt "Horizon Sud" à 8 minutes à pied
Gares SNCF de Sète et Frontignan à 10 minutes chacune
Aéroport de Montpellier à 28 minutes
Services & prestations
Hauteurs
-
Hauteur libre : Hauteur sous poutre 4,5 m
Equipements
-
Climatisation : Sur la partie Bureaux et Labo
-
Sols du bâtiment : Dalle Béton
Structure du bâtiment
-
Charpente : Métallique
Aménagements
-
Aménagement des bureaux : Partiellement cloisonnés
Informations complémentaires
-
Câblage RJ45, Façade bardage double peau
-
Accès gros porteur
-
Accès plain-pied










