




Location Local d'activité 7 430 m²
35410 Domloup
7 430 m²
Divisible dès 1 500 m²
à partir de 52 €
HT/HC/m²/an
Disponibilité : Immédiate

Kevin LEVAIRE
Description
DOMLOUP - ZA du Giffard
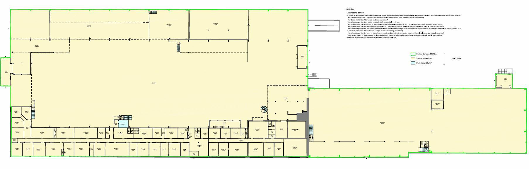
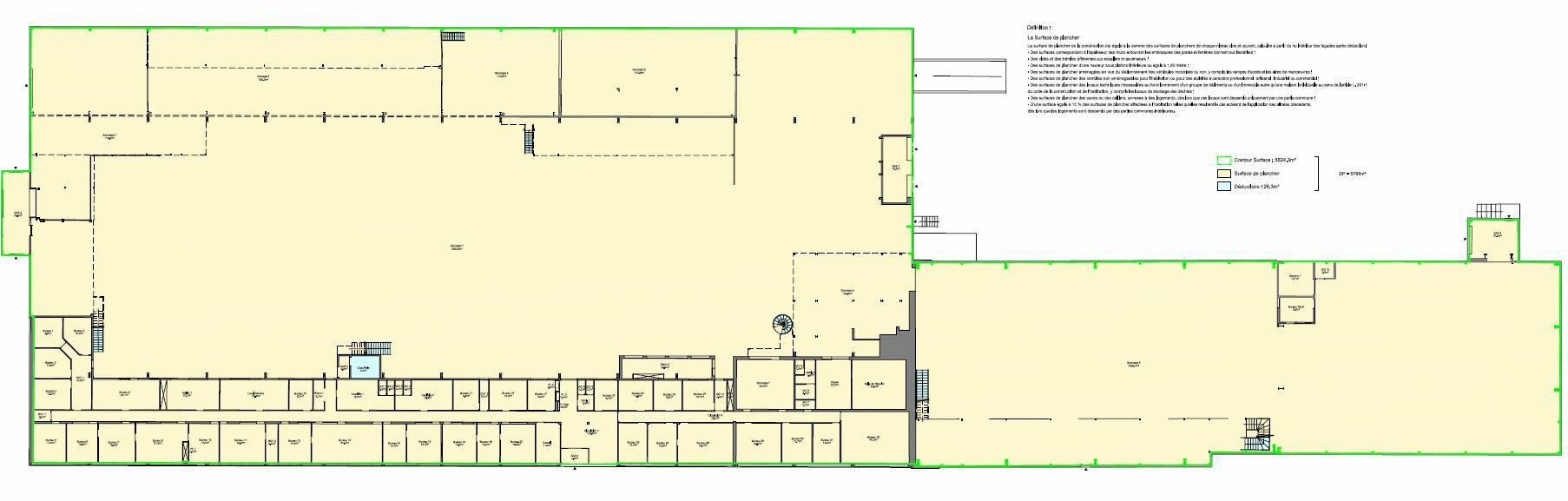
ENTREPÔT LOGISTIQUE CLASSE C
Au sein de la ZA du Giffard au Sud-Est de Rennes, nous vous proposons à la location un entrepôt logistique Classe C d'une superficie d'environ 7 340 m². Celui-ci comprend environ 4 730 m² de surface de stockage accessible par 3 quais et une porte sectionnelle de plain-pied, 900 m² de Mezzanines ainsi que 1 700 m² de bureaux - locaux sociaux.
Édifié sur un terrain clos et bitumé d'environ 15 500 m², le bâtiment bénéficie d'une bonne localisation, en bordure l'axe Rennes-Chateaugiron.
Accès :
- D463 : à proximité immédiate
- N157 (E50) : 9 km / N136 : 10 km
- Gare de Vern (TER) : 7 km
- Gare de Rennes (TGV) : 14 km
- Aéroport de Rennes Saint-Jacques : 18 km
Caractéristiques techniques de l'entrepôt :
- Etat de l'immeuble : seconde main et bon état
- Air de manoeuvre
- Aire de stockage exterieur
- Charpente mixte, métallique et bois
- Couverture bac acier isolé
- Eclairage intérieur :Néons
- Eclairage naturel Panneaux translucides + skydomes
- Hauteur libre : de 4.70 m à 6.60 mètres sous sablière
- Hauteur sous poutre : de 6.30 m à 7.20 mètres au faitage
- Mezzanine : 900 m²
- Murs bardage double peau
- Porte d'accès à quais : 3 portes
- Porte d'accès plain pied : 1 porte
- Sol du bâtiment béton
- Site sécurisé et clôturé
Caractéristiques techniques Bureaux :
- Aménagement Bureaux cloisonnés et ouverts
- Aire de livraison
- Câblage informatique
- Eclairage bureaux luminaires encastrés
- Hall d'acceuil
- Plinthes techniq-périphériques
- Salle informatique
- Sol bureaux avec dalles thermoplastiques
Caractéristiques techniques autres :
- Parking PL : 3 places
- Parking VL : 35 places dont 1 PMR
- Parking moto et vélos
- Voierie lourde
Services & prestations
Hauteurs
-
Hauteur libre : 4,70 mètre(s) à 6.60m sous sablière
-
Hauteur sous porte plain-pied : 3,00 mètre(s) x 3m
-
Hauteur sous poutre : 6,30 mètre(s) à 7.20m au faitage
Accès véhicules
-
Accessibilité type véhicules : Tous porteurs
Equipements
-
Câblage informatique : RJ45
-
Eclairage Bureaux : Luminaires encastrés
-
Eclairage intérieur : Néon
-
Eclairage naturel : Panneaux translucid. + skydomes
-
Plinthes techniques périphériques
-
Porte d'accès plain-pied : 1
-
Porte d'accès à quai : 3
-
Sol bureaux : Dls.thermoplastiques
-
Sols du bâtiment : Béton
-
Type de chauffage : Individuel Gaz
Type / Etat du bâtiment
-
Etat de l'immeuble : Seconde main
-
Etat du terrain : Voirie lourde
-
Immeuble indépendant
Structure du bâtiment
-
Charpente : Mixte Métallique et Bois
-
Couverture : Bac acier isolé
-
Murs : Bardage double peau
Prestations de service
-
Parking : 35 Places 3 places PL, 1 PMR, parking moto et vélo
Aménagements
-
Accueil
-
Aménagement des bureaux : Cloisonnés/Ouverts
-
Hall d'accueil
-
Locaux sociaux
-
Mezzanine : 900,00 m²
-
Salle informatique
Extérieurs
-
Aire de livraison
-
Aire de manoeuvre
-
Aire de stockage extérieure










