




Location Local d'activité 465 m²
35740 Pacé
465 m²
Loyer sur demande
Disponibilité : Immédiate

Kevin LEVAIRE
Description
A LOUER - CELLULE D'ACTIVITES - VILLAGE DES ARTISANS II - PACE
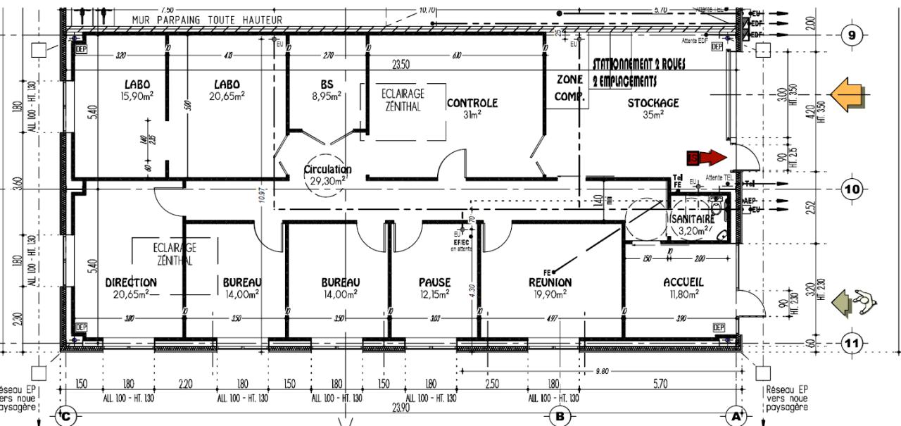
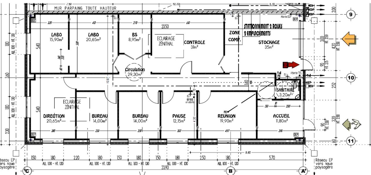
BNP PARIBAS REAL ESTATE vous propose cette cellule d'activité récente à location composée d'une surface de bureaux de 120m² ,avec bureaux individuels, salle de réunion, open-space, un atelier de 115m², et une mezzanine de 225m².
La cellule dispose également de stationnements privatifs
Zone récente, le Village des Artisans accueille de nombreuses entreprises artisanales, de services, du bâtiment et de l'informatique. Les entreprises implantées sur cette zone bénéficient de la qualité des accès directs donnant sur l'axe Rennes-Brest.
Le Village des Artisans II est une extension construite en 2018, comprenant 14 cellules réparties sur 3 bâtiments distincts. Ce parc bénéficie de beaucoup de places de parking communes, situées au centre des actifs.
Disponibilité immédiate
Services & prestations
Hauteurs
-
Hauteur sous porte plain-pied : 3,50 mètre(s) x 3,00 mètres de Largeur
-
Hauteur sous poutre : 6,30 mètre(s)
Equipements
-
Climatisation : Réversible
-
Câblage informatique : RJ 45
-
Douche
-
Eclairage Bureaux : Spots
-
Eclairage intérieur : Néon
-
Eclairage naturel : Skydomes
-
Porte d'accès plain-pied : 1 sectionnelle par lot
-
Sol bureaux : Parquet
-
Sols du bâtiment : Béton
-
Source chauffage : Electrique
Type / Etat du bâtiment
-
Activités possibles/autorisées : Commerce de Gros, Activités de Services, Industrie, Entrepôt
-
Etat de l'immeuble : Etat d'usage
-
Etat des locaux : Etat d'usage
-
Etat du terrain : Goudronné
-
Immeuble copropriété
Structure du bâtiment
-
Charpente : Métallique
-
Couverture : Bac acier isolé
-
Murs : Bardage double peau
Aménagements
-
Bureaux cloisonnés : 1
-
Complexe Salle de réunion : 1 salle(s)
-
Hall d'accueil : Indépendant
-
Mezzanine : Charge de 350 kg /m²
-
Sanitaires : 2 Privatif(s)
Extérieurs
-
Aire de manoeuvre
Informations complémentaires
-
Salle de Pause avec Kitchenette










