




Location Local d'activité 442 m²
54700 Atton
442 m²
90 €
HT/HC/m²/an
Disponibilité : Immédiate

Vincent BLASZCZAK
Description
A LOUER - LOCAUX D'ACTIVITE
ATTON - réf OLACT2535509
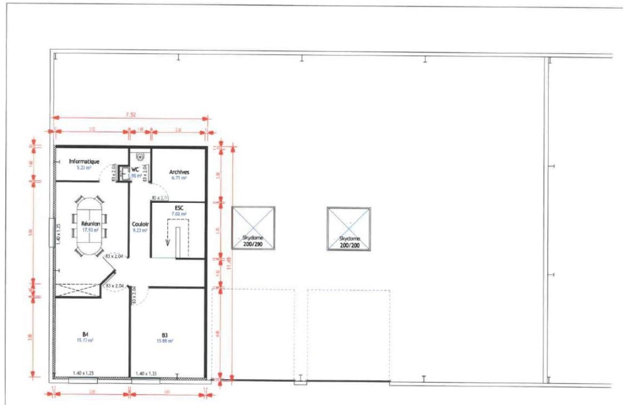
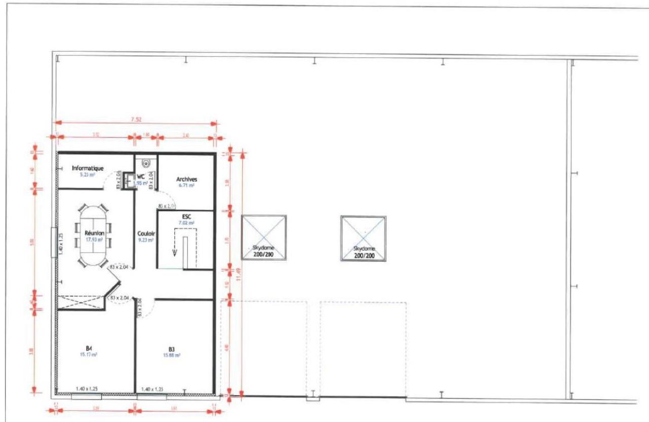
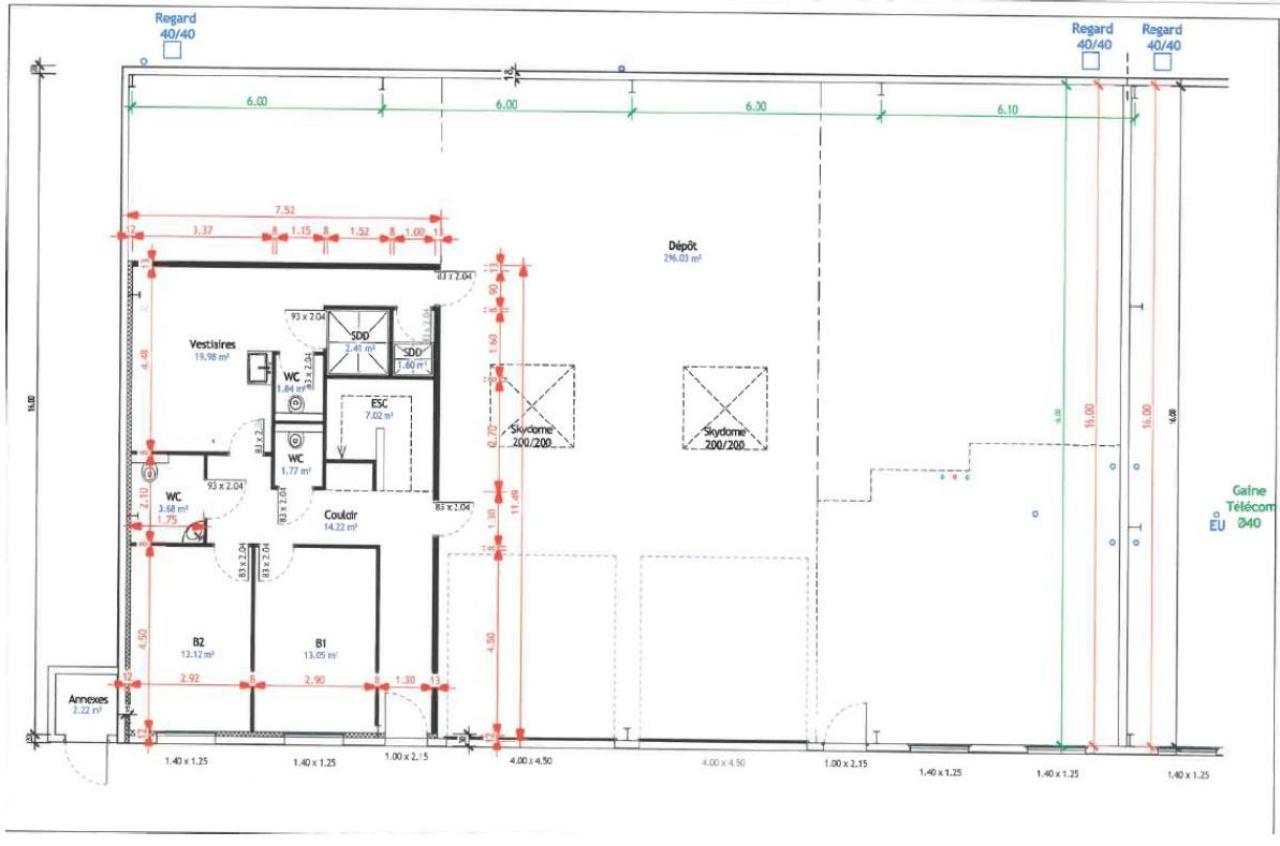
Bnppre vous propose à la location, une surface totale de 442 m²environ composée de 323 m² d'entrepôt et de 119 m² de bureaux en R+1. Locaux dotés de belles prestation telles que : climatisation réversible dans les halls d’activité et dans les bureaux, bardage métallique isolé doublage intérieur laine minérale, le tout dans un environnement agréable. Situés dans sur la ZI d'ATTON, avec accès direct à l'A31.
Disponible immédiatement !
LOCATION - LOCAUX D'ACTIVITE - ATTON (54)
Atouts de l'offre :
Climatisation réversible dans les halls d'activité et dans les bureaux
Bardage métallique isolé doublage intérieur laine minérale
Porte sectionnelle
Porte de plain pied
Locaux en R+1
Possibilité de se stationner à l'extérieur du site
Loyer : 90 HT/HC/m²/an
Localisation : ZI ATTON, en accès direct à l'A31 via l'échangeur E21, permettant de rejoindre Metz (31km) ou Nancy (29km).
Services & prestations
Hauteurs
-
Hauteur libre : 6,00 mètre(s)
-
Hauteur sous porte plain-pied : 4,00 mètre(s)
Equipements
-
Climatisation : Réversible PAC
-
Câblage informatique
-
Douche : 2
-
Eclairage Bureaux : Luminaires encastrés
-
Faux plafond
-
Fenêtres
-
Porte d'accès plain-pied : 5
-
Type de chauffage : Individuel Réversible
Type / Etat du bâtiment
-
Etat de l'immeuble : Neuf
-
Etat des locaux : Récent - Bon état
Structure du bâtiment
-
Charpente : Métallique
-
Couverture : Bac acier isolé enduit bitumeux
-
Murs : Bardage double peau
Prestations de service
-
Parking : 5 Places
-
Sécurité : Site clos
Aménagements
-
Sanitaires : 2 Privatif(s)
Extérieurs
-
Aire de stockage extérieure
-
Eclairage extérieur
Informations complémentaires
-
2 Portes sectionnelles










