




1543 Route d'Anse
69400 Limas
582 m²
130 €
HT/HC/m²/an
Disponibilité : Immédiate

Bory THONGDENG
Description
Limas (69)
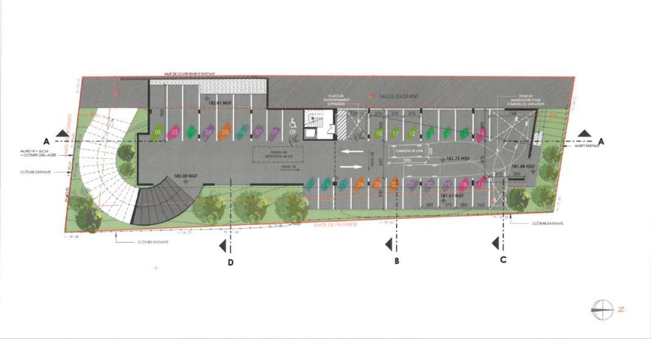
Locaux commerciaux divisibles en petite surface entre 160 et 250 m² y compris mezzanine. Places de stationnement dédiées (14 au total soit 4 places par cellules). Belle vitrine commerciale sur un axe passant, la route nationale 6 amenant sur le sud de Villefranche sur Saône. Idéal petit artisanat avec espace showroom. Livraison 3ème trimestre 2025.
Limas se trouve à environ 25 km de Lyon. La commune est située dans l'agglomération de Villefranche-sur-Saône, une ville importante du Beaujolais.
Limas bénéficie d'une situation géographique favorable avec plusieurs axes routiers importants à proximité : l'autoroute A6 offrant une liaison directe vers Lyon au sud et Paris au nord, la route nationale N6 assure une connexion avec Villefranche-sur-Saône au nord et Anse au sud.
Services & prestations
Hauteurs
-
Hauteur maximale : 8,00 mètre(s)
Accès véhicules
-
Accessibilité type véhicules : Moyens porteurs
Structure du bâtiment
-
Charpente : Métallique
Prestations de service
-
Parking : 14 Places 4 places par cellules
-
Sécurité : Portail
Aménagements
-
Accès Pers. Mobilité Réduite
-
Mezzanine
Extérieurs
-
Linéaire de façade : 7,50 mètre(s) 7.5 mètres par lot










