




91 Rue Des Vergers
69480 Pommiers
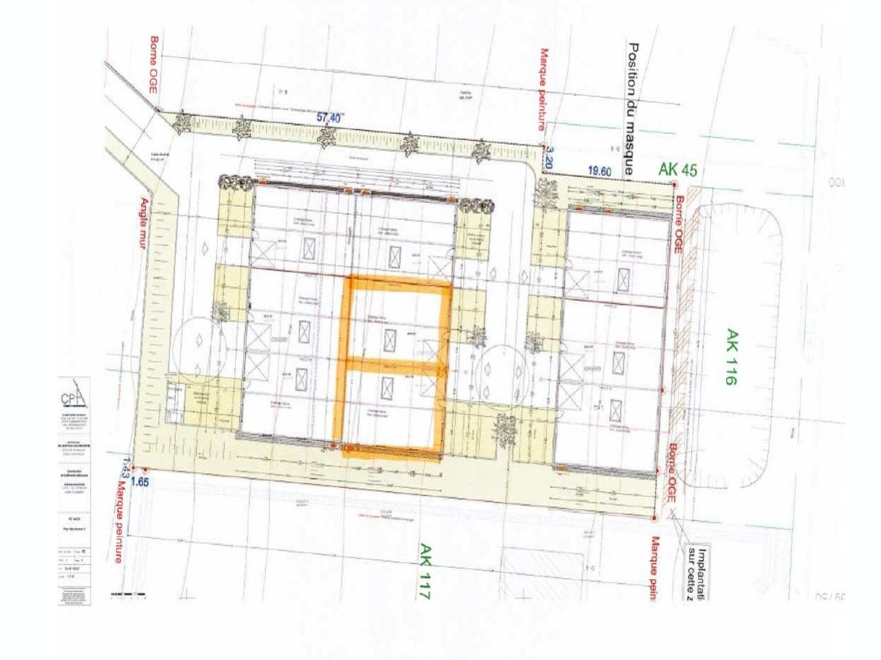
434 m²
81 €
HT/HC/m²/an
Disponibilité : Immédiate

Bory THONGDENG
Description
ACTI-PARC DES VERGERS
POMMIERS (69)
Nous vous proposons une cellule de 294m² aménagée à la location avec parkings et autres prestations techniques.
Pommiers est situé à 30 km de Lyon, dans le Beaujolais et héberge un tissu économique diversifié.
Services & prestations
Hauteurs
-
Hauteur libre : 5,00 mètre(s)
Equipements
-
Charge au sol Rdc : 1,50 tonne(s)/m²
-
Porte d'accès plain-pied : 2 Portes sectionnelles isolées et motorisées de 3.5 X 3m
-
Puissance électrique : Tarif Bleu
Structure du bâtiment
-
Charpente : Métallique
-
Couverture : Bac support tôle en acier nervurée
-
Murs : Bardage double peau
Prestations de service
-
Parking : 4 Places
Aménagements
-
Mezzanine : Possibilité de faire une mezzanine
Informations complémentaires
-
Double vitrage, Porte sectionnelle 3 x 3,50 m










