




Location Local d'activité 2 253 m²
76350 Oissel
2 253 m²
Divisible dès 105 m²
à partir de 75 €
HT/HC/m²/an
Disponibilité : Immédiate

Guillaume DU POUGET
Description
A LOUER - Oissel
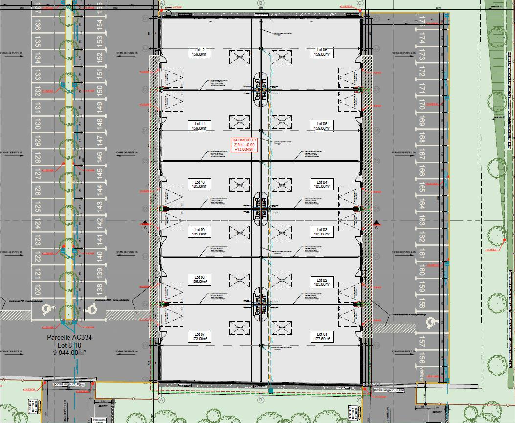
BNPPRE Rouen vous propose à la location des lots artisanaux neufs d'une surface totale de 2 253 m², divisibles dès 105 m², situés à Oissel, au sein d’une zone d’activités en plein essor. Ce site bénéficie d’une excellente connexion à l’autoroute A13 et d’un accès rapide au centre-ville de Rouen.
Le site se compose de deux bâtiments proposant différentes surfaces de 105 m² à 177 m², avec possibilité de regrouper plusieurs lots selon les besoins des entreprises.
L'ensemble immobilier se trouve sur une parcelle clôturée d'environ 9 800 m², offrant une accessibilité poids lourds facilitée grâce à trois portails de 8 mètres de large.
Caractéristiques du bien :
- État : Neuf
- Surfaces disponibles : de 105 m² à 177 m²
- Regroupement des lots possible pour PME / PMI
- Accessibilité tous porteurs : 3 portails de 8,00 m
- Lots livrés brut de béton, fluides en attente
- Nombreuses places de parking privatives
- Parcelle clôturée d'environ 9 800 m²
- Disponibilité : immédiate
Accessibilité et environnement :
- Connexion directe à l'autoroute A13
- Accès rapide au centre-ville de Rouen
- Lignes de bus et gare SNCF de Saint-Etienne-du-Rouvray
- Zone d'activités dynamique
- Commerces à proximité
Trouvez votre futur local, entrepôt, hangar, cellule de stockage ou votre foncier dans les parcs d'activités de Rouen et de Normandie. Disponibles à la location ou à la vente, nos offres s'adaptent à vos besoins en cellules industrielles ou artisanales. Ne manquez pas nos opportunités sur les surfaces à louer ou à vendre de la Métropole Rouennaise.
Services & prestations
Hauteurs
-
Hauteur sous porte plain-pied : 3,50 mètre(s)
Accès véhicules
-
Accessibilité type véhicules : Tous porteurs voierie lourde sur voierie et légère sur zone parking
Equipements
-
Charge au sol Rdc : 1,50 tonne(s)/m²
-
Eclairage intérieur : LED pilotage par interrupteur simple allumage
-
Fluides en attente : Eau, électricité, télécom
-
Porte d'accès plain-pied : 24 motorisée - 3,00 m x 3,50 m (L x h)
-
Puissance électrique : Tarif Bleu 9,00
-
Sols du bâtiment : Béton finition quartz
Type / Etat du bâtiment
-
Etat de l'immeuble : Neuf
-
Etat des locaux : Neuf
-
Etat du terrain : Mixte voirie lourde - espaces verts
-
IGH / Code du travail : Code du travail
Structure du bâtiment
-
Charpente : Métallique
-
Couverture : Bac acier isolé
-
Murs : Bardage double peau
Prestations de service
-
Parking
Aménagements
-
Accès Pers. Mobilité Réduite
Extérieurs
-
Eclairage extérieur : LED pilotage par horloge programmable
Informations complémentaires
-
3 portails coulissants à manoeuvre motorisée de largeur 8,00 m










