




Vente Bureau 2 299 m²
06800 Cagnes-sur-Mer
2 299 m²
Divisible dès 234 m²
à partir de 876 564 €
HT/HD
Disponibilité : 24 mois après accord

Jeremy LOPES
Description
PROGRAMME VILLETTE - IMMEUBLE LE SIGNAL
Au coeur du centre ville de Cagnes sur Mer, nous vous proposons à la vente plusieurs surfaces de bureaux idéal pour les professions libérale.
Les locaux seront livrés aménagés avec attente d'eau dans les locaux et sanitaires en parties communes et bénéficieront de nombreuses labellisations.
Livraison prévisionnelle : T3 2027
OVBUR2533477
Programme Villette - Immeuble SIGNAL
Situé à Cagnes-sur-Mer, à proximité immédiate de l'autoroute A8 et à quelques minutes de l'aéroport Nice Côte d'Azur, l'immeuble SIGNAL offre une opportunité rare d'acquérir des bureaux neufs dans un bâtiment à l'architecture contemporaine.
Ce programme fait partie du projet Villette, pensé pour répondre aux nouveaux standards de confort, de performance énergétique et de flexibilité d'aménagement.
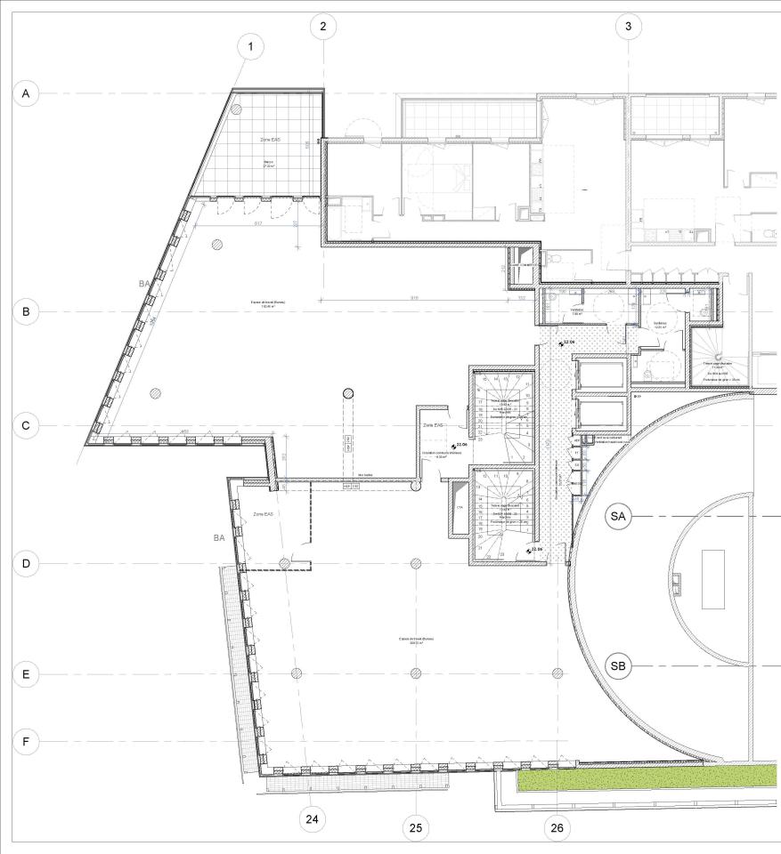
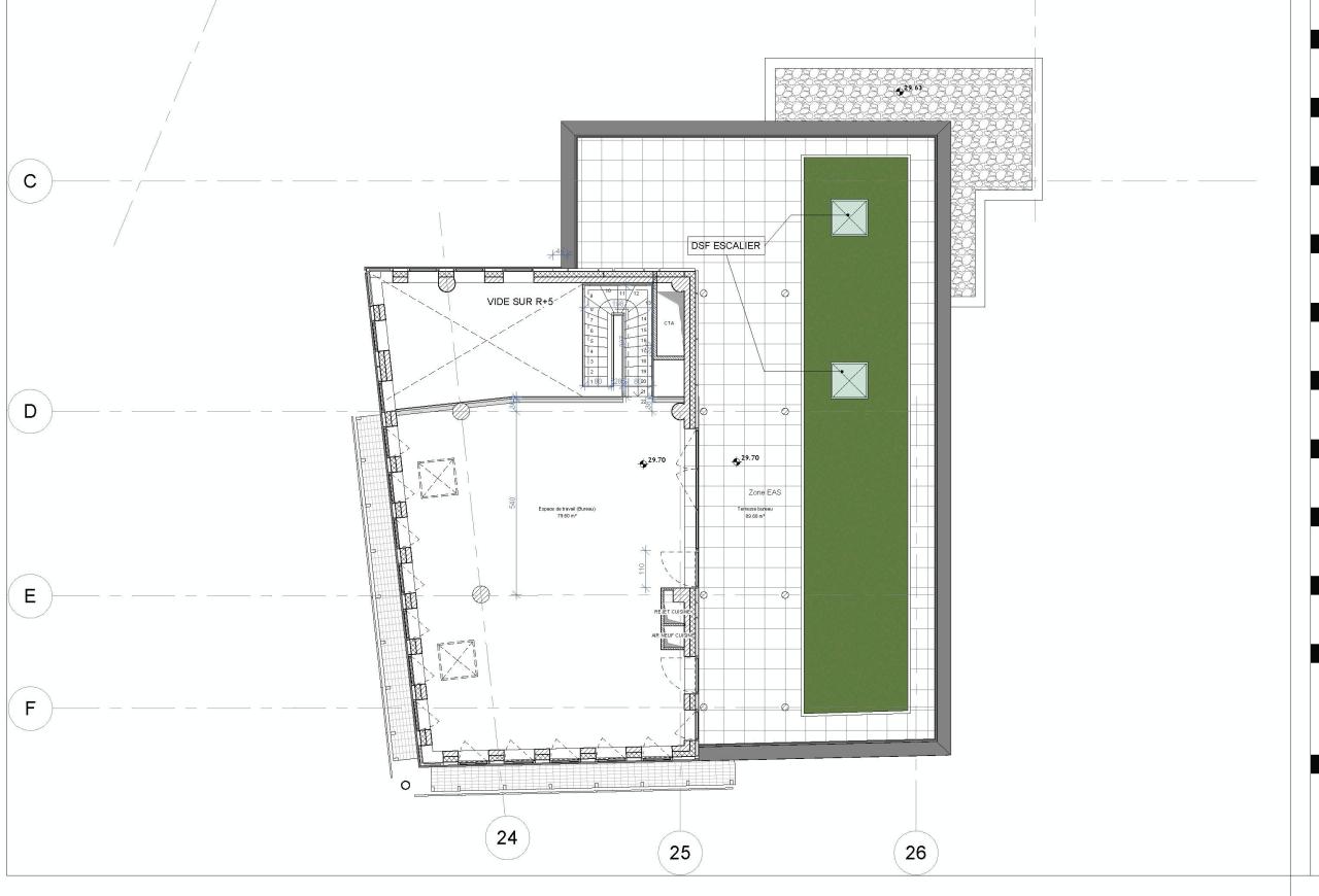
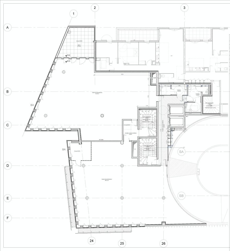
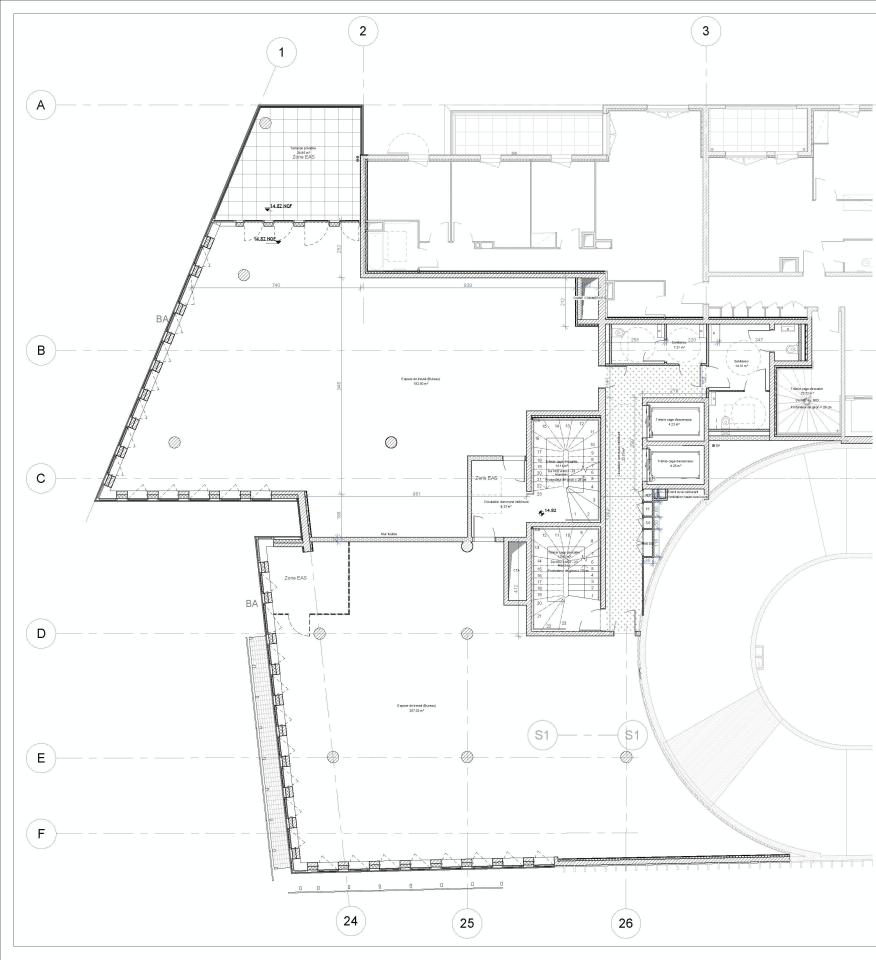
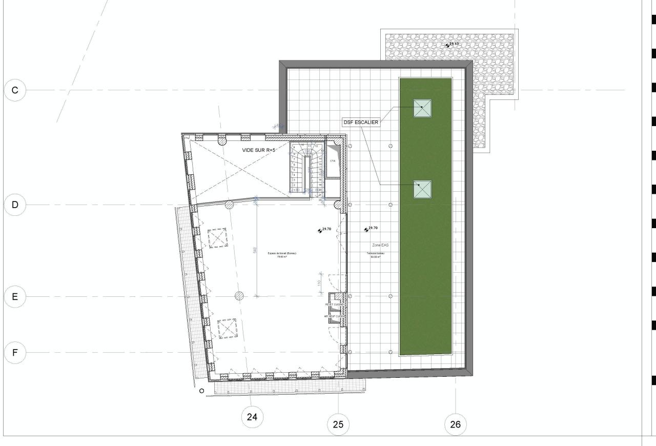
L'immeuble développe des plateaux de bureaux lumineux et modulables, avec une hauteur sous plafond de 3,30 m et des espaces « paysagers non cloisonnés ». Les plateaux sont livrés avec faux planchers, plinthes techniques périphériques, et faux plafonds équipés de luminaires encastrés.
Les bureaux bénéficient d'un système de gestion technique centralisée (GTB), d'un chauffage réversible à gaines 2 tubes, ainsi que d'une distribution électrique performante. L'immeuble est équipé de 2 ascenseurs 630 kg, d'un système d'alarme incendie de type 4, de badges Vigik et d'un interphone vidéo pour un confort et une sécurité optimaux.
Le complexe de salles de réunion, présent à chaque étage (environ 30 % de la surface utile), favorise la collaboration et la flexibilité des modes de travail.
Performances environnementales :
SIGNAL s'inscrit dans une démarche durable avec :
Certification BREEAM Very Good
Label BiodiverCity
Démarche de labellisation EcoQuartier
Ces engagements garantissent un immeuble respectueux de l'environnement et économe en énergie.
Accessibilité :
Gare de Cagnes-sur-Mer à proximité immédiate
Autoroute A8 à quelques minutes
Aéroport Nice Côte d'Azur à environ 7 km
Les + du programme SIGNAL :
Bureaux neufs, lumineux et modulables
Performance énergétique et labels environnementaux reconnus
Espaces verts et terrasses à proximité
Accessibilité rapide depuis Nice et l'aéroport
Environnement tertiaire attractif de la Côte d'Azur
Services & prestations
Aménagements
-
Aménagement des bureaux : : les espaces seront livrés "paysagers" non cloisonnés
-
Complexe Salle de réunion : Pourront présenter à chaque étage 30% de la surface nette
-
Effectif théorique : 1p/12m², soit un total de 32 personnes sur les niveaux
Equipements
-
Ascenseurs : 2 Ascenseurs 630 kg
-
Distribution chauffage : Réversible Système gainable 2 tubes change-over en faux plafond
-
Eclairage Bureaux : Luminaires encastrés est alimenté et commandé par un réseau de distribution.Le niveau d'éclairement moyen est de 300 lux
-
Faux plafond : En dalle 600 x 600 mm sur ossatures apparentes
-
Faux plancher : En béton armé ou prédalle ou DAP
-
Fluides en attente : TGBT : Chaque tableau de lot de bureaux est alimenté par un câble propre à son armoire ou par une colonne montante
-
Gestion technique centralisée : Les nourices et les câbles de raccordement restent à la charge du preneur
-
Plinthes techniques périphériques : En PVC, 3 rangées en périphérie
-
Sol bureaux : Dalle brute ou dalles de moquette plombantes, bouclée 50 x 50
Hauteurs
-
Hauteur sous-plafond : 3,30 m environ
Extérieurs
-
Linéaire de façade : En cours - En attente finalisation étude BE Façade
Normes, Certifications et Labels
-
Catégorie ERP : 4 type W du RDC au R+4, ERP du R+5 et la mezzanine : ERP 4, type d’activité à définir (N, L, X ou W)
-
Certification : BREEAM
Informations complémentaires
-
Effectif sécuritaire (issues de secours et escaliers) : 1 pers/12m² SDP bureaux de l'étage, Poteaux, poutres et voiles en béton armé
-
Raccordements type tarif bleu pour les plateaux de bureaux, Revêtements muraux : Peinture
-
Electricité : Equipements communs de sureté/sécurité/GTB, Système d'alarme incendie de type 4 - Vidéophonie - Badges type Bticino relié au système d'interphonie










