




Vente Bureau 5 692 m²
31500 Toulouse
5 692 m²
22 767 920 €
HT/HD
Disponibilité : 25 mois après accord

Aymeric DE SAINT AULAIRE
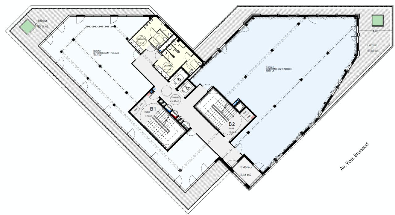
Description
*** TOULOUSE PROCHE GARE & CENTRE-VILLE : BUREAUX A LA VENTE ***
A proximité immédiate des transports, BNP Paribas Real Estate vous propose un bâtiment indépendant à construire à usage mixte de bureaux et commerces, disponible à la vente.
Découvrez "MY JOLIMONT" situé au nord-est de Toulouse, au pied du métro aérien ligne A « Jolimont »
A proximité :
En face du projet : de nombreux commerces et restaurants au sein de l'opération CEAT (Zac Guillaumet).
Sur une parcelle de 14 ha, seront regroupés :
Future cité administrative accueillant 1 640 agents
1 200 logements
8 500 m² de bureaux
9 000 m² d'équipements ouverts aux publics
5 800 m² de commerces
Hyper centre-ville à 2 stations (Jean Jaurès)
Apart hôtel à 100 m
L'intégralité de nos offres sur : https://www.bnppre.fr/toulouse
ZOOM SUR LE CENTRE-VILLE DE TOULOUSE :
Le centre-ville de Toulouse est un pôle économique majeur, offrant un large choix d'opportunités en immobilier d'entreprise. Il séduit autant les grandes entreprises que les startups. Son accessibilité, son dynamisme et la diversité de son offre en font un emplacement privilégié pour y implanter son entreprise.
Le quartier Matabiau, en pleine transformation avec le projet Grand Matabiau Quais d'Oc, est destiné à devenir le nouveau quartier d'Affaires de la Métropole. Grâce à la modernisation de la Gare Toulouse-Matabiau, l'arrivée de la 3ème ligne de métro et des aménagements urbains ambitieux, ce nouveau quartier offrira une offre tertiaire moderne et connectée aux entreprises en quête de centralité et d'accessibilité.
Le quartier Guillaumet, situé à l'est du centre-ville, actuellement en pleine reconversion propose une offre diversifiée de logements, commerces et bureaux. Il est conçu pour favoriser l'innovation et le bien-être au travail et attire déjà de nombreuses entreprises.
Situé à deux pas du centre-ville et du Capitole, la ZAC de Compans Caffarelli est le 1er quartier d'affaire de TOULOUSE regroupant un parc immobilier vieillissant qui nécessitera une remise à niveau et une production d'offres neuves.
Services & prestations
Aménagements
-
Sanitaires : Parties communes
Equipements
-
Ascenseurs
-
Climatisation : Réversible
-
Câblage informatique
-
Distribution chauffage : Réversible
-
Distribution climatisation : Ventilo convecteur en plafonnier
-
Eclairage Bureaux : Luminaires encastrés
-
Faux plafond
-
Plinthes techniques périphériques
-
Production climatisation : Autonome
-
Sol bureaux : Moquette
Prestations de service
-
Sécurité : Contrôle d'accès
Extérieurs
-
Terrasses - jardins
Normes, Certifications et Labels
-
Catégorie ERP : 5 type W
-
Certification : BREEAM
Type / Etat du bâtiment
-
IGH / Code du travail : Code du travail










