




Vente Bureau 564 m²
34830 Clapiers
564 m²
Divisible dès 108 m²
à partir de 335 296 €
HT/HD
Disponibilité : 18 mois après accord

Marie Laure ROLANDO
Description
MONTPELLIER NORD - CLAPIERS - IMPULSE - BUREAUX A VENDRE
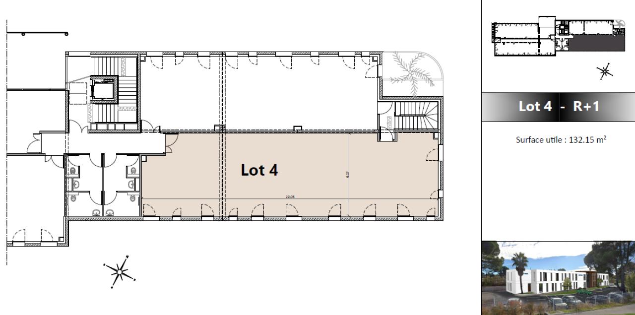
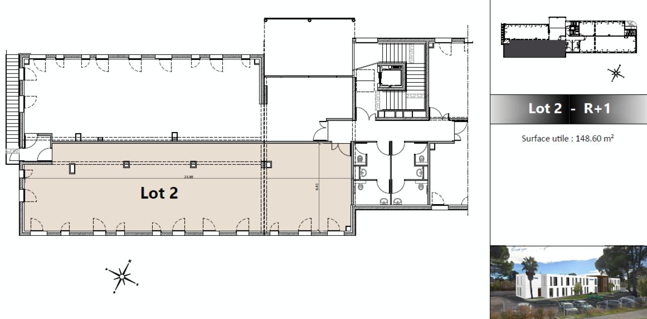
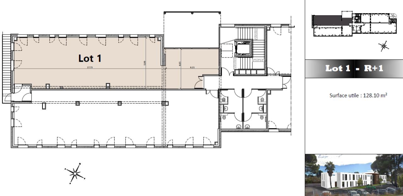
Au nord de Montpellier, au sein de la commune de Clapiers, découvrez au R+1 de l'immeuble IMPULSE, 4 lots de bureaux d'une surface totale de 564 m² divisibles à partir de 108 m².
Les lots seront livrés bruts et bénéficieront tous de 7 places de parking en extérieur.
Bâtiment labelisé RE2020 et bénéficiant d'une capacité ERP 5ème catégorie de type W.
Livraison T3 2027 !
N'hésitez pas à nous contacter pour plus d'informations.
ACCESSIBILITE :
Bus Ligne n°22 arrêt "Pigeonniers" à 8 minutes à pied
Nouvelle ligne de tramway T5 arrêt Clapiers à 7 minutes à pied
Autoroute A9 et A709 à 20 minutes
Aéroport de Montpellier à 25 minutes
Gare Sud de France à 25 minutes
- Gare Saint Roch à 25 minutes
Services & prestations
Aménagements
-
Sanitaires : Parties communes
Equipements
-
Ascenseurs
Prestations de service
-
Parking
Extérieurs
-
Terrasses - jardins
Normes, Certifications et Labels
-
Catégorie ERP : 5 Type W
Informations complémentaires
-
Livraison brute










