




Vente Bureau 7 796 m²
34830 Jacou
7 796 m²
Divisible dès 66 m²
à partir de 3 036 675 €
HT/HD
Disponibilité : 24 mois après accord

Marie Laure ROLANDO
Description
MONTPELLIER NORD - À LOUER - JACOU - ON LIGHT
À louer – à vendre , 3 immeubles mixtes au sein du programme ON LIGHT au cœur de la Med vallée. Le programme ON LIGHT, ce sont des plateaux de bureaux ou par lots et des locaux type atelier sur un ensemble 7 796 m² environ. Belle accessibilité au sein du tissu économique local. Tous services de proximité avec les halles gourmandes "LE 610 " ,voisines de ON LIGHT.
Disponibilité Fin 2026 !
MEDVALLÉE
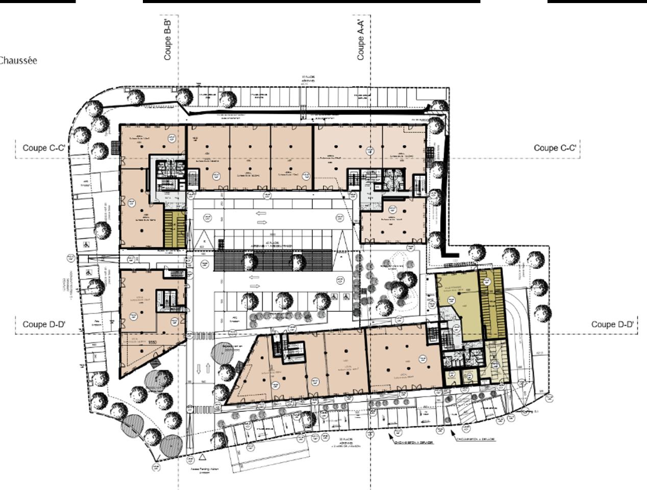
Découvrez ce programme de locaux mixte de 3 bâtiments de 7 796 m² environ répartis en 4 899 m² de bureaux et 2 899 m² de locaux de type atelier divisibles.
La division par lot se fait à partir de 66 m² en bureaux en R+1 et R+2 et 78 m² en locaux d'activité situés en rez-de-chaussée en configuration d'atelier.
Flexible, évolutif et polyvalent, le programme ON LIGHT allie mixité d'usage( Bureaux, Ateliers, Espaces partagés) et conception pour s'adapter aux évolutions constantes de la société.
ON LIGHT incarne une vision audacieuse où innovation, technologie et respect de l'environnement (emprise au sol réduite, augmentation de la pleine terre, végétalisation...Anticipation du PLUi) convergent pour créer un espace de travail unique au nord de Montpellier.
- Une localisation stratégique à Jacou, connectée aux principaux axes de transport.
- Engagement écologique profond avec certifications BREEAM et BiodiverCity, promettant un environnement de travail sain et durable.
- Flexibilité et modernité des espaces, conçus pour répondre aux besoins d'une main-d'oeuvre dynamique et diverse.
- Un écosystème vibrant pour entreprises de haute technologie, startups et industries créatives
Bâtiments mixtes offrant la possibilité de surface de locaux d'activité pour accueillir tous types d'activités de production.
Prestations techniques
- Plateaux modulables et aménageables
- Terrasses végétalisées et espaces verts.
- 3 ascenseurs
- 3 Halls
- Courant fort
- Fibre optique
- Faux plafond fibres
- Parking aériens de 40 places au sein de l'ilot
- Stationnements aériens de 54 places à foisonnement
- Parking en sous sol de 165 places.
- Espace de livraison
- Local deux roues
LOCATION POSSIBLE
MEDVALLÉE EN QUELQUES MOTS
Situé au Nord de Montpellier, la MedVallée a pour ambition de faire de la métropole un pôle mondial d'excellences en matière de santé globale.
L'objectif est de créer une synergie entre les acteurs de la santé, de l'alimentation, de l'agriculture et de l'environnement pour favoriser le développement économique et l'emploi par l'innovation.
Le but est de développer des infrastructures performantes et rééquilibrer l'implantation des entreprises au Nord de Montpellier, notamment via la construction d'un campus de l'innovation de 19 000 m² comprenant des bureaux, un hôtel, un institut de formation, un incubateur, et un food court.
Ce nouveau projet viendra renforcer le rayonnement de la ville, déjà réputée dans le secteur de la médecine et de la recherche médicale.
Situé au Nord de Montpellier, la MedVallée a pour ambition de faire de la métropole un pôle mondial d'excellences en matière de santé globale.
L'objectif est de créer une synergie entre les acteurs de la santé, de l'alimentation, de l'agriculture et de l'environnement pour favoriser le développement économique et l'emploi par l'innovation.
ACCESSIBILITÉS :
- accès direct autoroute A9 et des principaux axes routiers,
- Gare : Montpellier Saint Roch à 20 minutes
- Gare : Sud de France à 25 minutes
- Aéroport(s) : Montpellier Méditerranée à 25 minutes
- Bus : n°22 arrêt « De Bocaud » 4 minutes à pied
- Tramway Ligne 2 - Arret "Jacou" à 7 minutes à pied
Services & prestations
Aménagements
-
Accès Pers. Mobilité Réduite
Equipements
-
Ascenseurs : 3
-
Charge au sol Etage : 350,00 kg/m²
-
Charge au sol Rdc : 500,00 kg/m²
-
Climatisation : Réversible
-
Eclairage Bureaux : Luminaires encastrés Led
-
Faux plafond : Dal. fibres minéral. 60x60, Dal. fibres minéral. 60x60
-
Revêtement mural : Traitement en peinture lisse
-
Sol bureaux : Moquette
-
Sols du bâtiment : Béton
Hauteurs
-
Hauteur sous poutre : RDC : 4 à 4,5m
-
Hauteur sous-plafond : Etages : 2,7 à 3m
Prestations de service
-
Parking : 101 Places 56 en foisonnement et 45 en îlot central, 168 Places en sous-sols
-
Restauration : Halles gourmandes "LE 610" à toute proximité
Extérieurs
-
Terrasses - jardins : Terrasses végétalisées - 2 385 m² d'espaces verts de plein terre
Normes, Certifications et Labels
-
Certification : BREEAM
Type / Etat du bâtiment
-
Etat de l'immeuble : Neuf
-
Immeuble indépendant
Informations complémentaires
-
1 dépose minutes, Faux plafonds en plaques de plâtre, Luminaires Led encastrés dans les faux plafonds
-
5 Aires de livraison, Bornes de rechargement pour véhicules électriques et vélo
-
Local 2 roues et places pour vélo
Accès véhicules
-
Accessibilité type véhicules : Camionnettes










