




Location Bureau 6 642 m²
34170 Castelnau-le-Lez
6 642 m²
Divisible dès 198 m²
à partir de 185 €
HT/HC/m²/an
Disponibilité : 24 mois après accord

Marie Laure ROLANDO
Description
MONTPELLIER EST - INTENS'ITÉ - PARC EUREKA EXTENSION - BUREAUX A LOUER OU A VENDRE
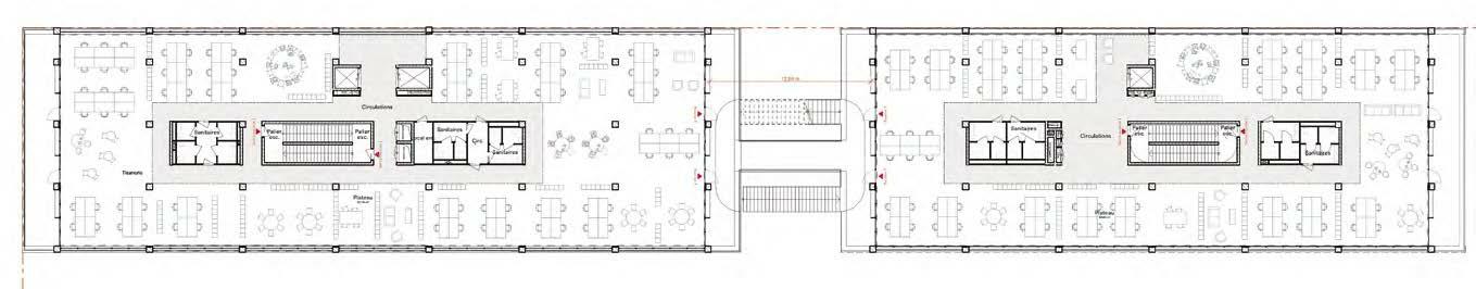
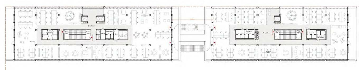
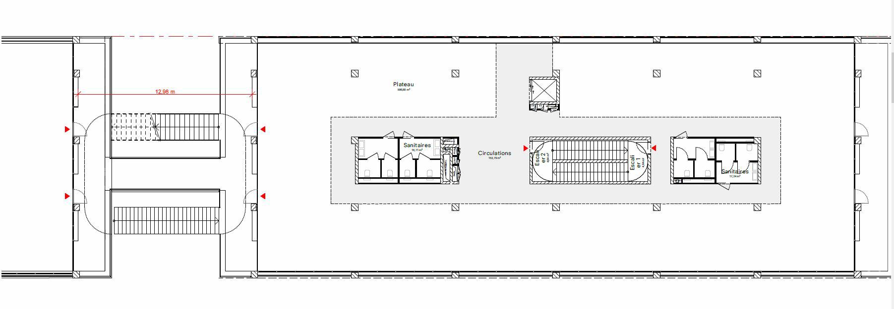
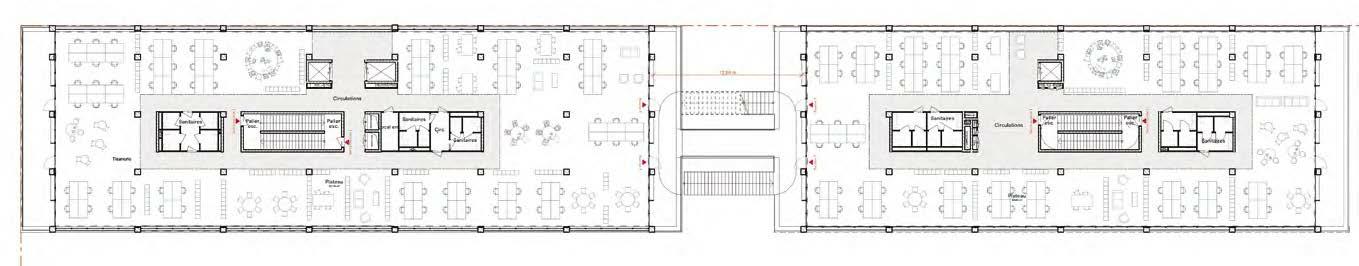
À louer et à vendre, immeubles de bureaux au sein du Parc Eureka Extension. Le programme INTENS'ITÉ, ce sont des plateaux de bureaux en R+4 d'une surface totale de 5 664 m² répartis sur deux bâtiments de 2 619 m² et 3 045 m² dont 314 m² de terrasses privatives.
La divisibilité est possible par demi-plateau. Le Bâtiment B est disponible uniquement à la location.
Espace connecté et adapté aux nouvelles pratiques et aux nouvelles technologies
Espace de commerce, Rofftop et jardin.
Parkings en sous-sol et local vélo.
Au coeur du pôle tertiaire Eurêka, venez découvrir ce projet d'immobilier tertiaire de 5 664 m² divisibles à partir de 198 m², en R+3 et R+4 sur deux bâtiments.
Intens'ité, ce sont des espaces de travail nouvelle génération, des espaces communs généreux et agréables, des services à portée de main et une architecture écoresponsable dôté de bois, verre et béton.
Situé le long de l'avenue Philippe Lamour, axe structurant du quartier, Intens'ITé jouit d'une localisation privilégiée à forte visibilité.
Ce projet immobilier possèdera une construction en anticipation de la RE2020, labellisée Bâtiments Bas Carbone valorisant
la construction raisonnée
la maîtrise des consommations énergétiques
le stockage du carbone
l'économie circulaire
Services & mixité d'usages :
Bureaux
Commerces, restaurants & café avec une offre de restauration complète du matin au soir au sein d'un foodcourt
Parking en sous-sol
Le tout organisé autour d'un jardin partagé de 2000 m²
Rooftop
Disponibilité au T3 2026
Division par demi-plateau
Le lot commerce du R+4 du bâtiment A dispose d'une surface de rooftop de 222 m² au loyer de 77 /m²/n HT/HC.
Accessibilité :
A 2 km du centre-ville
A9 à 10 minutes
Accès direct à la gare Sud de France via la ligne B2 ou à 5 minutes en voiture
Gare Saint-Roch à 15 minutes
Bus-tram au pied du site, B1 & B2, fréquence toutes les 15 minutes
Piste cyclable au pied du site
Aéroport Montpellier Méditerrannée à 15 minutes
Services & prestations
Aménagements
-
Complexe Salle de réunion
-
Effectif théorique : 1/10 m² SU
-
Hall d'accueil
-
Sanitaires
Equipements
-
Ascenseurs : (630 kg)
-
Climatisation
-
Douche : 4 Au RDC à prox. du local vélos extérieur
-
Fenêtres : Menuiseries extérieures en double vitrage et en aluminium
-
Sol bureaux : Moquette ou sol souple
Hauteurs
-
Hauteur sous-plafond : Sous réseaux dans plateaux de bureaux : 2,70 m
Prestations de service
-
Parking
-
Restauration : Restaurant slow-food - Prod. du Verger d'Eureka
Extérieurs
-
Terrasses - jardins
Normes, Certifications et Labels
-
Catégorie ERP : 5 de ERP 5ème à ERP 2 type R - selon demande prospects
Type / Etat du bâtiment
-
Etat de l'immeuble : Neuf
-
Etat des locaux : Neuf
-
Immeuble indépendant
Informations complémentaires
-
Accès direct pour les cyclistes, Rooftop avec restaurant
-
Peinture aux murs et plafond à définir (faux-plafond ou brut)
-
CVC 4 tubes, Jardin ouvert à tous en journée - concept de fôret comestible










