




Vente Bureau 3 597 m²
34170 Castelnau-le-Lez
3 597 m²
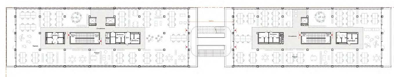
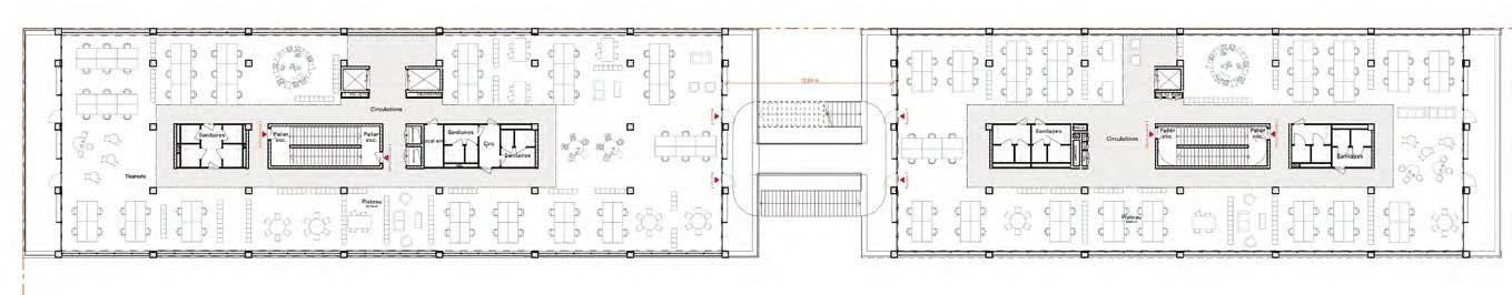
Divisible dès 198 m²
à partir de 592 020 €
HT/HD
Disponibilité : 24 mois après accord

Marie Laure ROLANDO
Description
MONTPELLIER EST - INTENS'ITÉ - PARC EUREKA EXTENSION - BUREAUX - A LOUER ET A VENDRE
Le programme INTENS'ITÉ, ce sont des plateaux de bureaux en R+4 et deux lots de commerce en RDC et R+4.
Espace connecté et adapté aux nouvelles pratiques et aux nouvelles technologies
Roftoop et jardin.
Parkings en sous-sol et local vélo.
Au coeur du pôle tertiaire Eurêka, venez découvrir ce projet d'immobilier tertiaire divisibles à partir de 198 m², en R+4.
Intensi'té, ce sont des espaces de travail nouvelle génération, des espaces commun généreux et agréables, des services à portée de main et une architecture écoresponsable doté de façades en bois, verre et béton.
Situé le long de l'avenue Philippe Lamour, axe structurant du quartier, Intens'ITé jouit d'une localisation privilégiée à forte visibilité.
Ce projet immobilier possédera une construction en anticipation de la RE2020, labellisée Bâtiments Bas Carbone valorisant :
la construction raisonnée
la maîtrise des consommations énergétiques
le stockage du carbone
l'économie circulaire
SERVICES & MIXITÉ D'USAGE
Bureaux
Commerces, restaurants & café avec une offre de restauration complète du matin au soir au sein d'un foodcourt
Parking public de 58 places
Le tout organisé autour d'un jardin partagé de 2000 m²
Rooftop
Disponibilité Juillet 2026
Division possible par demi-plateau.
Le lot de commerce du R+4 dispose d'un Rooftop de 222 m² valorisé au prix de 1 050 /m²/an HT.
ACCESSIBILITÉ :
A 2 km du centre-ville
A9 à 10 minutes
Gare Sud de France à 5 minutes
Bus-tram au pied du site, B1 & B2, fréquence toutes les 15 minutes
Piste cyclable au pied du site
Gare Sud de France à 10 minutes et Gare Saint-Roch à 15 minutes
Aéroport Montpellier Méditerranée à 15 minutes
Accès direct à la gare Sud de France via la ligne B2
Services & prestations
Aménagements
-
Complexe Salle de réunion
-
Effectif théorique : 1/10 m² SU
-
Espaces Co-working
-
Hall d'accueil
-
Sanitaires
Equipements
-
Ascenseurs : (630 kg)
-
Climatisation
-
Douche : 4 Au RDC à prox. du local vélos extérieur
-
Fenêtres : Menuiseries extérieures en double vitrage et en aluminium
-
Sol bureaux : Moquette ou sol souple
Hauteurs
-
Hauteur sous-plafond : Sous réseaux dans plateaux de bureaux : 2,70 m
Prestations de service
-
Parking
-
Restauration : Restaurant slow-food - Prod. du Verger d'Eureka
Extérieurs
-
Terrasses - jardins : 2 terrasses accessibles par niveau
Normes, Certifications et Labels
-
Catégorie ERP : De ERP 5ème à ERP 2 type R - selon demande prospects
Type / Etat du bâtiment
-
Etat de l'immeuble : Neuf
-
Etat des locaux : Neuf
-
Immeuble indépendant
Informations complémentaires
-
Accès direct pour les cyclistes, Rooftop avec restaurant
-
Peinture aux murs et plafond à définir (faux-plafond ou brut)
-
CVC 4 tubes, Jardin ouvert à tous en journée - concept de fôret comestible










