




Vente Bureau 5 893 m²
34070 Montpellier
5 893 m²
Divisible dès 43 m²
à partir de 122 080 €
HT/HD
Disponibilité : 18 mois après accord

Caroline DE BOISGELIN-ABECASSIS
Description
MONTPELLIER CENTRE - CITÉ CRÉATIVE - ASTELLA - BUREAUX NEUFS A VENDRE
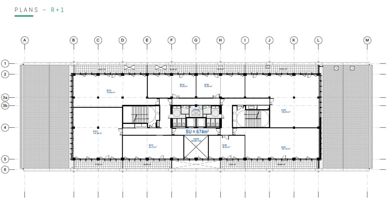
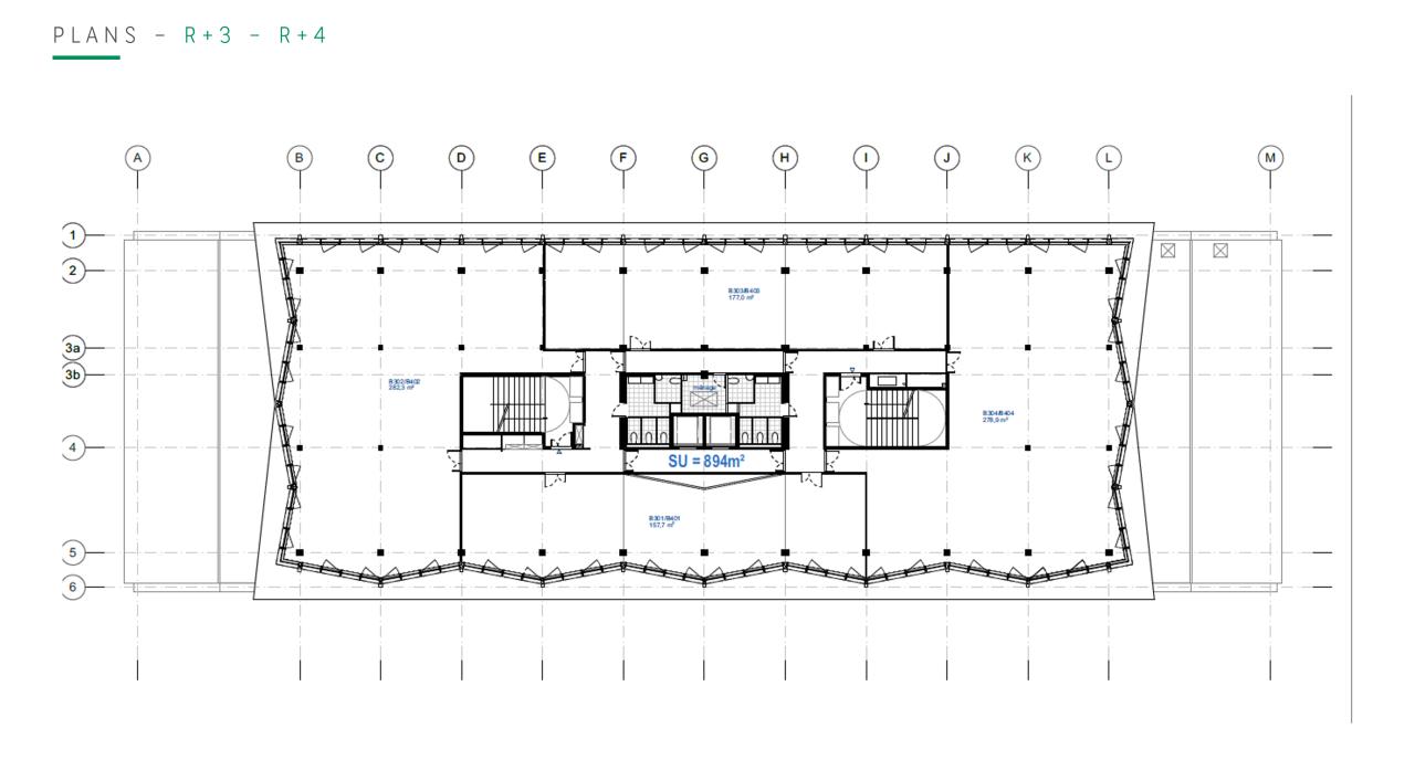
Nous vous proposons à la vente, au cœur de la Cité Créative et à quelques minutes du centre-ville de Montpellier, des surfaces de bureaux sur 5 étages, divisibles en lots de 43 m² à 363 m² pour un total 5 892 m² de bureaux.
Situé aux abords du Parc Montcalm, au coeur de la Cité Créative et à quelques minutes du centre-ville, l'immeuble Astella est composé d'environ 6 110 m² de bureaux, d'espaces partagés et d'extérieurs, au sein d'anciens chaix réhabilités du rez-de-chaussée.
Ces bureaux tout équipés et modulables se développent sur 5 étages au-dessus du bâtiment existant conservé.
Les surfaces à la vente sont situées du RDC au R+5 et divisibles en lots de 43 m² à 363 m² pour un total de 6 110 m² dont 5 892 m² de bureaux.
Ce projet bénéficiant des normes RE2020 et aux labels BREEAM VERY GOOD et PEMD 360 s'inscrit dans une volonté de construction durable avec une utilisation du béton bas carbone, le ré emploi de matériaux existants et la récupération et le stockage des eaux de pluie pour alimenter le bâtiment.
PC obtenu, en cours de purge.
Disponibilité prévue au T4 2026.
CARACTERISTIQUES ET PRESTATIONS
Bâtiment ERP5
Ancien chaix restauré en rez-de-chaussée
200 m² de terrasse belvédère partagée au dernier étage
2 salles de réunion réservable pour l'ensemble des usagers
100 m² de local vélo intérieurs sécurisés
Contrôle d'accès des lots se fait à l'aide d'un système de visiophonie
Nouveau quartier mixte au centre de Montpellier, la Cité Créative allie logements, commerces, bureaux, équipements publics, ainsi que le coeur de l'industries de la culture et de la créativité.
Afin de donner une nouvelle vie au site, l'ambition est de créer un quartier urbain où il fait bon vivre, travailler, étudier, faire du sport à proximité immédiate du centre-ville. La future ligne 5 de tramway desservira ce nouveau quartier. Ce tiers-lieu innovant permettra de créer de nouveaux espaces de rencontre et de création.
Ce projet de 40 hectares représente 23 hectares de Parc Paysager, 35 000 m² d'activités économiques dédiées au ICC et de commerces de proximité.
ACCESSIBILITÉ :
Tramway Futur Ligne 5 en 2025 - Arrêt Niki de Saint Phalle
Autoroute A9 à 7 minutes
Gare Sud de France à 12 minutes
Aéroport Montpellier Méditerrannée à 16 minutes
Services & prestations
Aménagements
-
Aménagement des bureaux : Espaces Ouverts
-
Complexe Salle de réunion : 2 salle(s) Salles de réunion partagées
Equipements
-
Climatisation : Pompe à chaleur
-
Câblage informatique : Pré-cablage téléphonie, transmission d'images
-
Distribution chauffage : Par réseau urbain
-
Eclairage Bureaux : Luminaires suspendus Led
-
Sol bureaux : Moquette ou PVC dans les plateaux de bureaux
Hauteurs
-
Hauteur sous-plafond : 2,80 mètre(s) Belle hauteur sous plafond
Prestations de service
-
Parking : 40 dans l’ESMA, Extérieurs sécurisés de 100 m²
-
Sécurité : Contrôle d'accès
Normes, Certifications et Labels
-
Catégorie ERP : 5
-
Certification : BREEAM
Type / Etat du bâtiment
-
Etat de l'immeuble : Neuf
Informations complémentaires
-
Fibre optique, Terrasse ombragée en RDC
-
Chauffage par ventilo-convecteurs réversibles
-
Brises soleil et stores intérieurs, Utilisation béton bas carbone - Ré emploi matériaux existants










