




Location Bureau 662 m²
34000 Montpellier
662 m²
Divisible dès 271 m²
à partir de 150 €
HT/HC/m²/an
Disponibilité : Immédiate

Caroline DE BOISGELIN-ABECASSIS
Description
MONTPELLIER CENTRE - GAMBETTA - SAINT DENIS - BUREAUX - A LOUER
Vous recherchez une surface de bureaux au centre de Montpellier ?
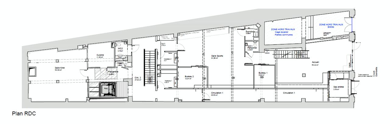
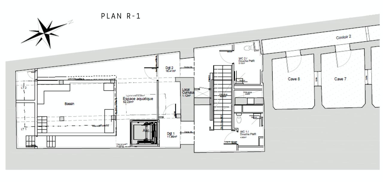
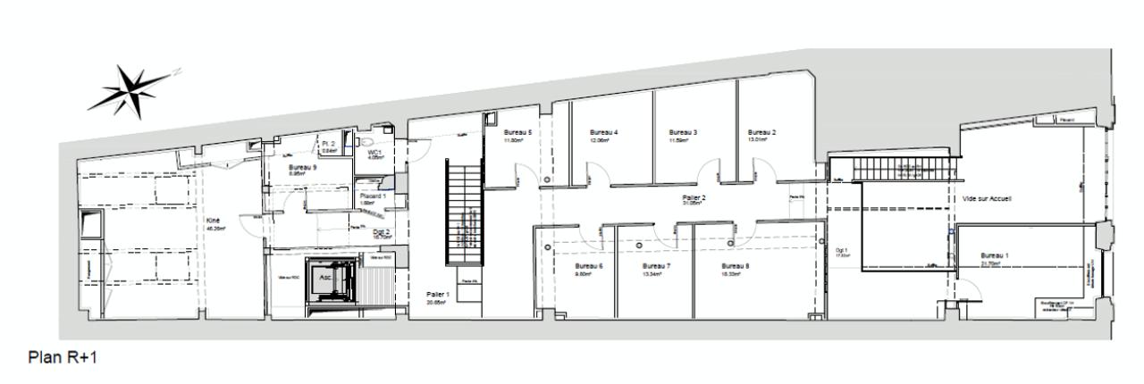
Nous vous proposons à la location une surface de locaux commerciaux et de bureaux de 641 m² environ divisibles à partir de 271 m² environ, composés d'un lot au rez-de-chaussée de 306 m² et au R-1 de 84,5 m² et d'un lot au R+1 de 271 m² de bureaux.
L'espace du rez-de-chaussée est constitué d'un grand hall d'accueil utilisable en open space, d'un espace cuisine et d'une salle de motricité. Le R-1 dispose d'un bassin de d'eau, d'une vaste douche et d'une salle aménagée en cloison amovible vitrée. Le R+1 est configuré en bureaux cloisonnés.
Ces locaux à la configuration atypique sont idéals pour une profession médicale, un centre de bien-être grâce à ses équipements de bassin de rééducation et d'espace aquatique. Ils peuvent également convenir pour tout autre corps de métier tout comme à une activité commerciale.
Les locaux ont été entièrement rénovés avec des matériaux de qualité.
Ils sont idéalement situés en coeur de ville, dans le quartier Gambetta Saint Denis Clémenceau un secteur en plein renouveau à Montpellier et bénéficient du tramway ligne 3 en pied de l'immeuble, tout comme le parking public Gambetta et de nombreux services de proximité.
En complément, vous profiterez de la nouvelle ligne de Tramway Ligne 5, opérationnelle en décembre 2025 vous facilitant un accès rapide aux autres quartiers de la ville en mobilité douce.
Accessibilité :
Tramway : Ligne 3 - Arrêt "Saint Denis" au pied de l'immeuble, Arrêt "Observatoire" à moins de 5 min à pied
Gare Saint Roch à 5 min à pied
Gare Sud de France à 16 min
Dessertes routières : Accès A9 à 12 m
Aéroport : Montpellier Méditerranée à 20 min
N'attendez plus, contactez-nous dès maintenant pour visiter cet immeuble situé à Montpellier Centre !
Services & prestations
Aménagements
-
Accès Pers. Mobilité Réduite
-
Aménagement des bureaux : Cloisonnés
-
Espace bien-être : Bassin d'eau/Balnéo/Spa
-
Sanitaires : Parties communes
Equipements
-
Ascenseurs : Ascenseur PMR
-
Climatisation : Réversible gainable
-
Production climatisation : Autonome
-
Sol bureaux : Dls.thermoplastiques et parquet
Hauteurs
-
Hauteur sous-plafond : Grande hauteur sous plafond en rez-de-chaussée
Prestations de service
-
Parking : Parking Gambetta en pied d'immeuble
Normes, Certifications et Labels
-
Catégorie ERP : 5
Type / Etat du bâtiment
-
Etat de l'immeuble : Seconde main Immeuble de cachet
Informations complémentaires
-
Cloisonnement vitré, amovible, Pierre apparentes
-
Grande hauteur sous plafond










