




Vente Bureau 655 m²
35136 Saint-Jacques-de-la-Lande
655 m²
Divisible dès 249 m²
à partir de 851 109 €
HT/HD
Disponibilité : Immédiate

Geoffrey BELFORT
Description
CAP COURROUZE - Immeuble récent de standing au pied du métro
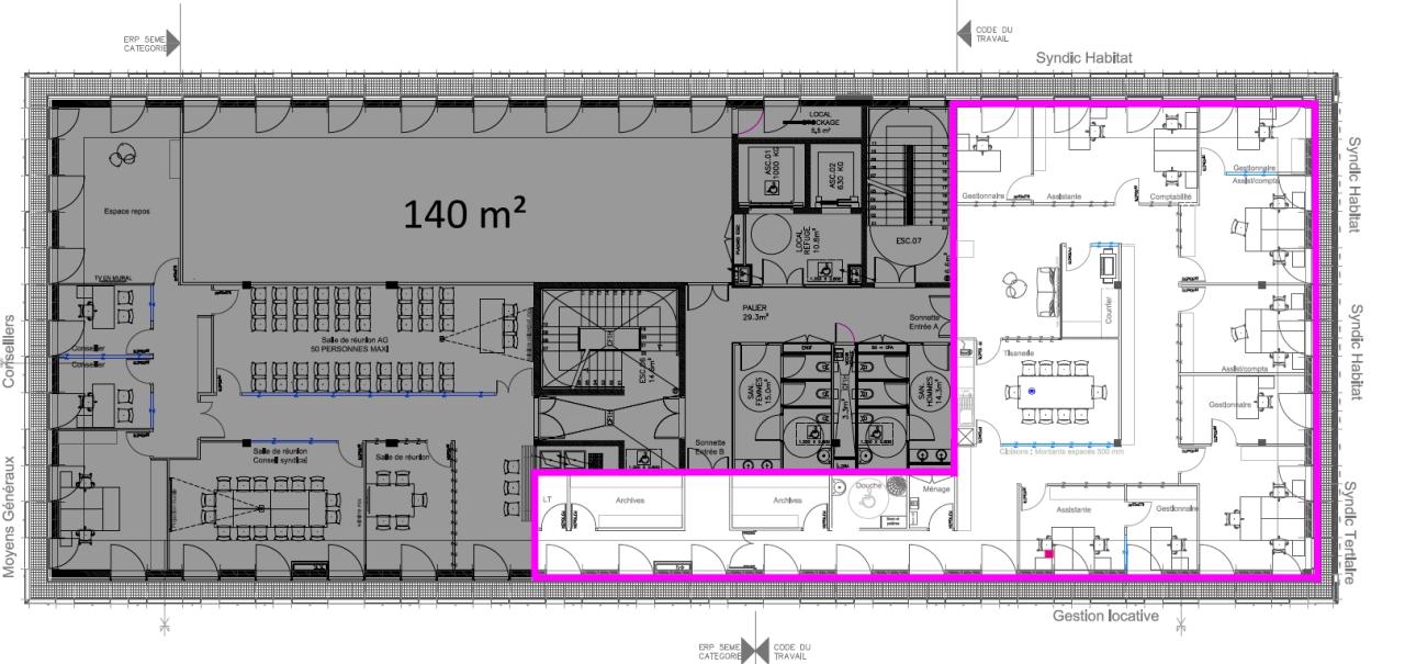
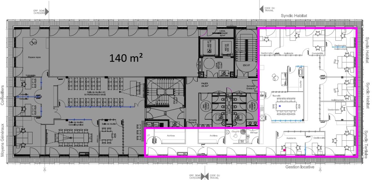
Nous vous proposons à la vente un plateau d'environ 769 m² QPPCI au 3ème étage de l'immeuble de standing CAP COURROUZE au pied du métro "Saint Jacques Gaîté".
Le plateau bénéficie d'un aménagement qualitatif réalisé par le précédent exploitant des locaux. Cela représente une belle opportunité pour le futur acquéreur qui disposera ainsi d'un plateau clé en main. Les locaux disposent de nombreux bureaux cloisonnés mais également de nombreuses salles de réunion.
Le lot 18 immédiatement disponible représente une surface de 477,28 m² (carrez 406,3 m² + 70,98 m² de quote part de parties communes) et le lot 20 d'une surface de 292,03 m² (248,6 m² de surface privative + 43,43 m² de quote part de parties communes).
Les locaux comprennent également 12 emplacements de parkings.
Services & prestations
Aménagements
-
Accès Pers. Mobilité Réduite
-
Bureaux cloisonnés : Et salles de réunion
-
Sanitaires : Privatif(s)
Equipements
-
Ascenseurs
-
Climatisation : Réversible
-
Câblage informatique : RJ45
-
Eclairage Bureaux : Luminaires encastrés
-
Faux plafond : Dal. fibres minéral.
-
Plinthes techniques périphériques
-
Sol bureaux : Moquette
-
Source chauffage : Electrique
-
Type de chauffage : Individuel
Prestations de service
-
Restauration : Au pied de l'immeuble
-
Sécurité : Contrôle d'accès
Type / Etat du bâtiment
-
Etat de l'immeuble : Etat d'usage
-
Etat des locaux : Etat d'usage
Informations complémentaires
-
Fibre optique










