




Vente Bureau 746 m²
54500 Vandoeuvre-lès-Nancy
746 m²
Divisible dès 373 m²
à partir de 1 200 000 €
HT/HD
Disponibilité : Immédiate

Florine DEVEAUX
Description
A VENDRE (location possible) - BUREAUX
TECHNOPOLE BRABOIS - ref OVBUR2532541
BNPPRE Real Estate vous propose à la vente deux plateaux de bureaux dans un immeuble indépendant et en copropriété situé sur le Technopôle de Brabois à Vandoeuvre-Lès-Nancy.
33 emplacements de stationnement sont alloués à ce plateau.
Son emplacement, en plein cœur du Technopôle de Nancy-Brabois, site économique de référence de la métropole, en façade de l'axe principale vous assurerons une visibilité exceptionnelle ! Environnement agréable, jardin et parking privatif au pied de l'immeuble sont les atouts incontournables de cette offre. Disponible immédiatement
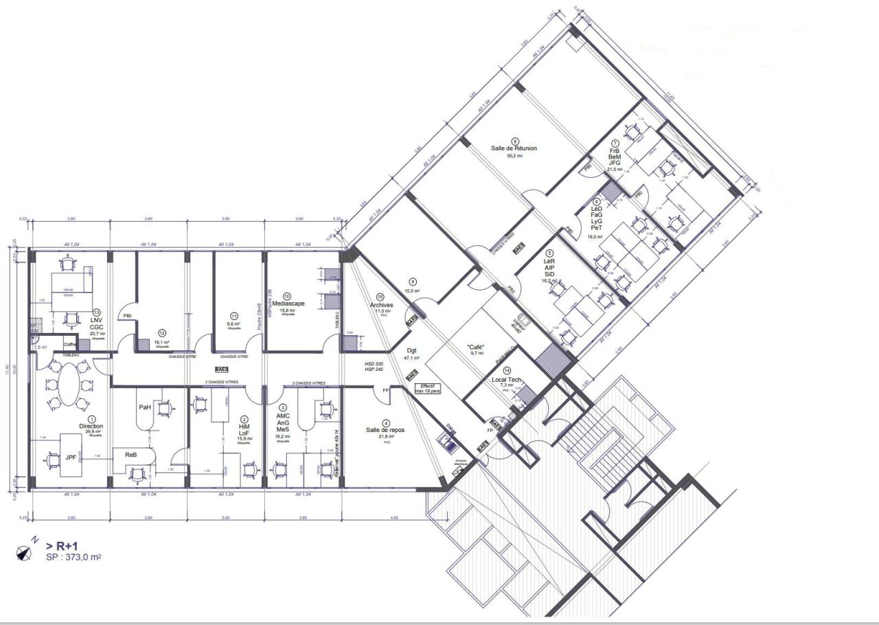
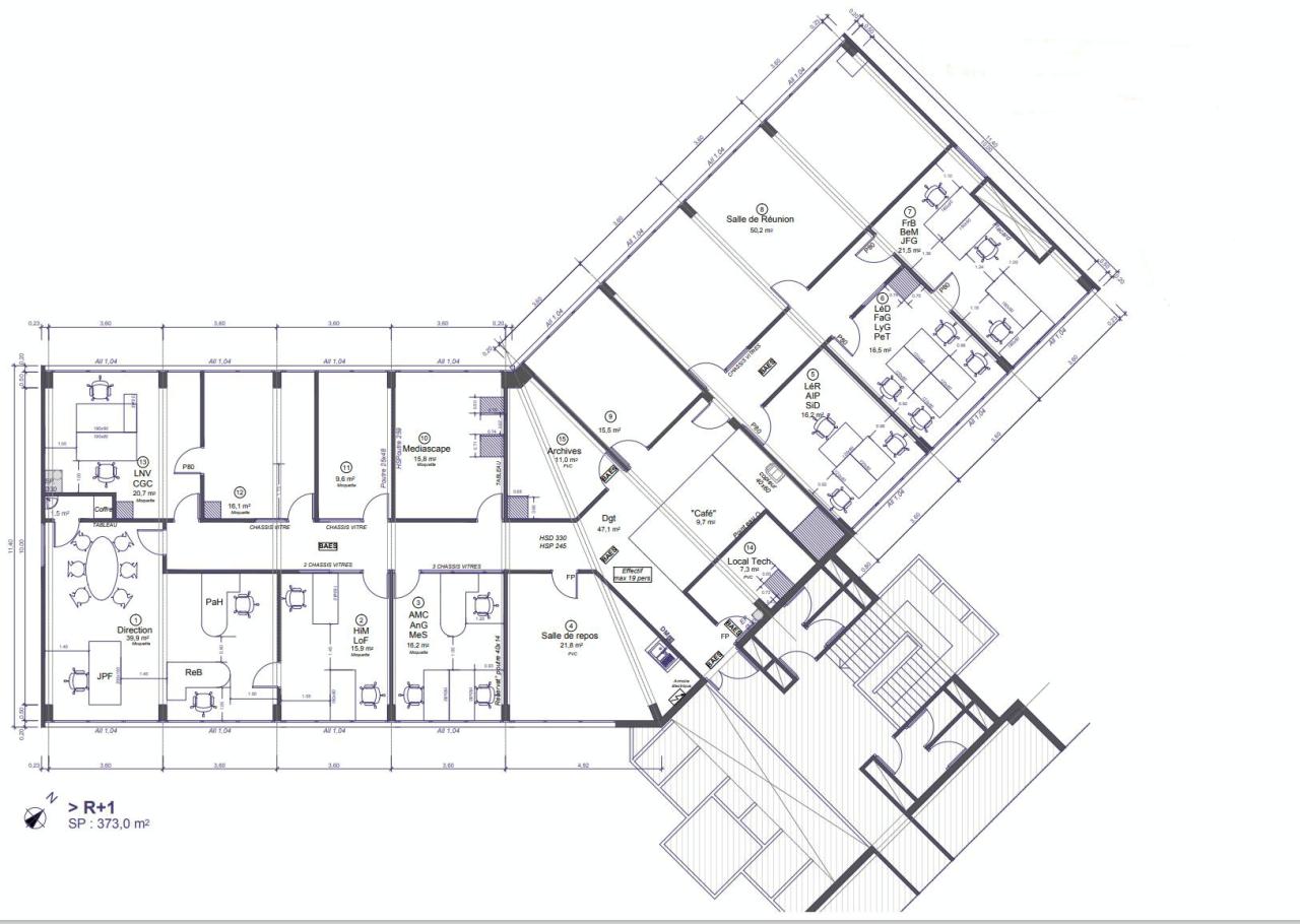
VENTE - BUREAUX - 373 m² - TECHNOPOLE DE BRABOIS - VANDOEUVRE LES NANCY (54)
Bnppre vous propose à la vente (location possible), une surface de bureau de 750 m² environ sur deux plateaux (divisible à partir de 373m²) dans un immeuble en copropriété.
Atouts de l'offre :
Immeuble indépendant
En copropriété
10 bureaux avec accueil
3 salles de réunion
1 salle de pause
Archives
33 emplacements de stationnements
Localisation :
À cheval sur les communes de Vandoeuvre-lès-Nancy et Villers-lès-Nancy, le Technopôle de Nancy Brabois est l'un des premiers PARC CLUB de France et le site tertiaire de référence de l'agglomération nancéienne. Il bénéficie d'un cadre naturel de qualité puisqu'il se situe dans un grand parc verdoyant, à proximité du CHRU et de l'hippodrome. Il est directement connecté aux grands axes autoroutiers.
C'est un lieu privilégié d'accueil pour les entreprises de différents domaines, de la santé à l'innovation en passant par l'informatique.
Le Technopôle bénéficie de multiples services et infrastructures :
- Plusieurs services de restauration : Dubble, Class'croute, Restaurabelle, Burger King, Buffalo Grill
- Commerces : Intermarché, Norma
- Centres de formation : Stan Santé Formasup, Centre National de Formation ONF, M2i Formation
- Des hôtels : Ibis, Kyriad, Logis Cottage
- Une crèche
Accessibilité :
- Gare de Nancy à 15 min
- Connecté à tous les axes autoroutiers (A33/A330/A31)
- Très bien desservi par les transports en commun : Tram T1 et lignes de bus n°10 et 16
- Nombreuses places de stationnement
Par ailleurs, le Technopôle dispose d'une l'association dynamique : Nancy Brabois Technologie (NBTECH), qui a pour but d'organiser et promouvoir les entreprises, associations et organismes publics et privés qui se trouvent sur le site du Technopôle de Nancy. (www.nb-tech.fr)
Conseiller en Immobilier d'Entreprise, BNP PARIBAS REAL ESTATE TRANSACTION vous accompagne dans votre recherche de bureaux, locaux d'activité et entrepôts logistiques en Meurthe et Moselle, à la location et à la vente.
Services & prestations
Aménagements
-
Accueil
-
Sanitaires : Parties communes pour ceux dans le Hall d'accueil
Prestations de service
-
Parking : 33 Places privatif
Type / Etat du bâtiment
-
Etat de l'immeuble : Rénové
-
Immeuble copropriété
-
Immeuble indépendant : En R+1
Informations complémentaires
-
Foncier de 7 600 m² avec parking, Panneaux photovoltaïques










