




Vente Bureau 329 m²
73000 Bassens
329 m²
956 141 €
HT/HD
Disponibilité : 18 mois après accord

Marianne ARTHAUD
Description
RARE A BASSENS - AXE PRINCIPAL - BUREAUX ET COMMERCE A VENDRE
Nouveau projet immobilier - Bassens 73
Découvrez un programme immobilier neuf idéalement situé au coeur de la zone commerciale de Bassens, sur l'axe principal : l'avenue du Turin, offrant une visibilité exceptionnelle et un accès privilégié à toutes les commodités.
Ce programme vous sera accessible fin 2027/début 2028.
Ce projet mixte allie habitation, commerces et bureaux dans un cadre moderne et fonctionnel :
Commerce en RDC emplacement stratégique à fort passage
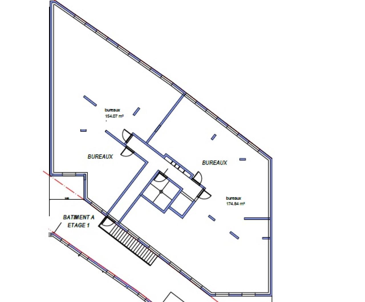
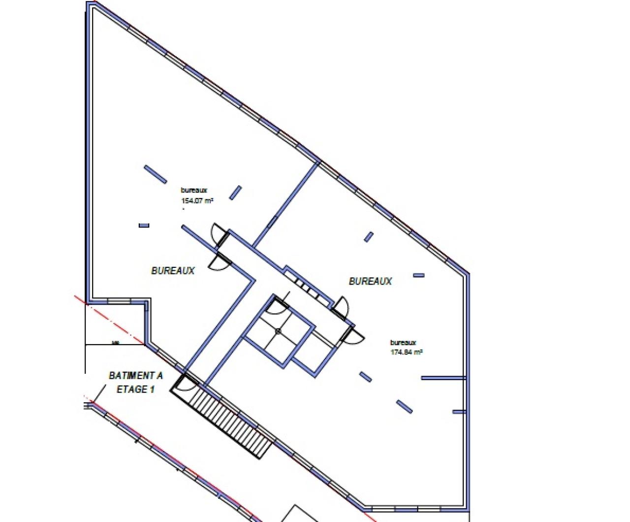
Bureaux en R+1 - espaces lumineux et modulables
Parking en sous-sol
Espaces verts paysagers
Local à vélos
Accès direct aux transports en commun et à la voie rapide
Conditions financières : prix HT frais d'agence inclus
2 397 / m² pour le commerce
2 907 /m² pour les bureaux
12 000 l'unité de parking
Charges estimatives : 20 / m²
frais d'acte en sus à la charge du l'acquéreur
N'attendez plus pour demander un complément d'information.
Services & prestations
Aménagements
-
Aménagement des bureaux : Cloisonnés/Ouverts
Equipements
-
Ascenseurs
-
Câblage informatique
-
Faux plafond : Dal. fibres minéral.
-
Plinthes techniques périphériques
-
Sol bureaux : Moquette
Prestations de service
-
Parking : Oui, Sous sol
Structure du bâtiment
-
Travaux à réaliser : Fluide en attente










