




85 Avenue du Mont Riboudet
76000 Rouen
4 111 m²
à partir de 13 362 371 €
HT/HD
Disponibilité : 27 mois après travaux

Maxime LETHUILLIER
Description
Avenue du Mont Riboudet
ROUEN RIVE DROITE
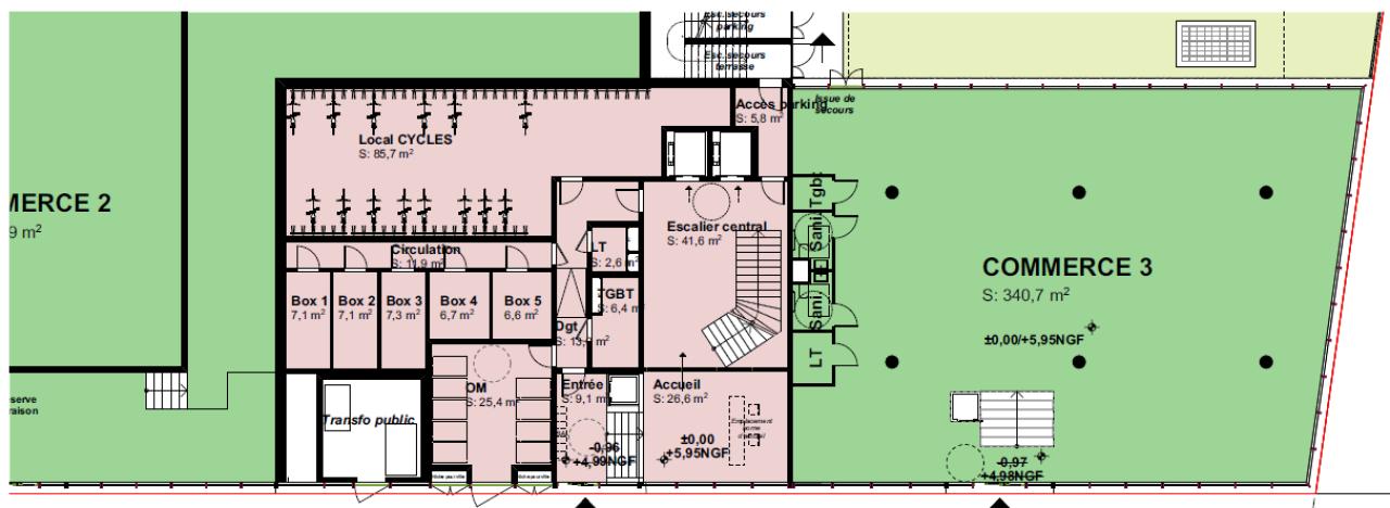
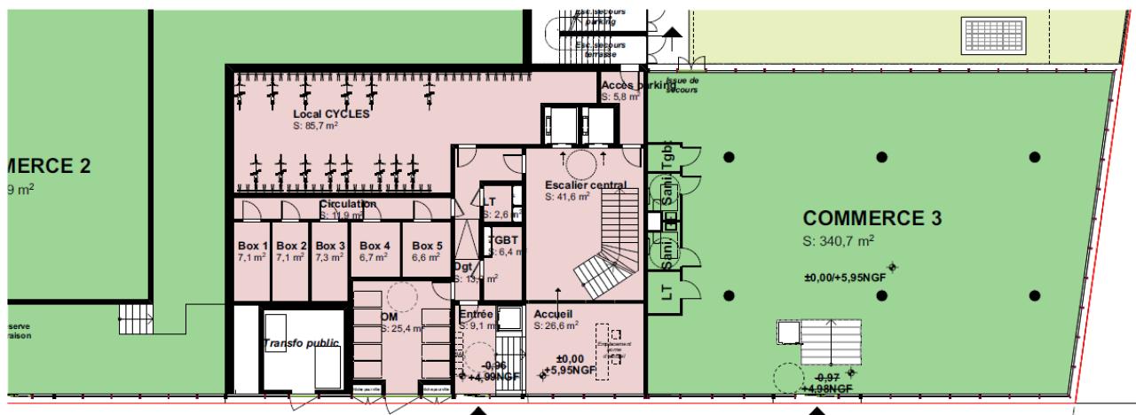
A vendre / Location possible, immeuble de bureaux indépendant de 4111 m², au sein d'un programme de 3 immeubles composé en sus d'un bâtiment de bureau d'environ 1250 m2 et d'un hôtel dans l'angle de l'avenue du Mont Riboudet.
Bureaux livrés en 2027-2028, parkings en sous-sol.
Architecture moderne, immeuble ERP 5, jardin suspendu en terrasse.
Magnifique immeuble moderne RT 2012-20 à vendre (location possible, nous contacter) sur la rive droite de Rouen.
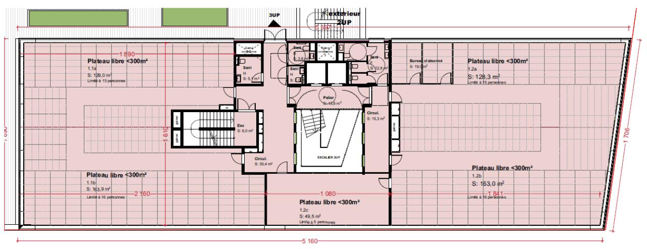
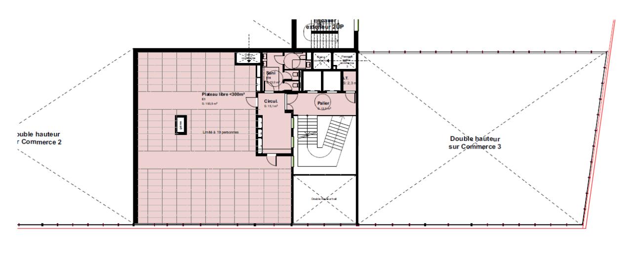
Les plateaux de bureaux sont livrés paysagés : revêtement de sol, murs peints, faux plafond réalisé avec dalles led encastrées et système de chauffage / rafraichissement par pompe à chaleur.
Bâtiment HQE très performant 5*
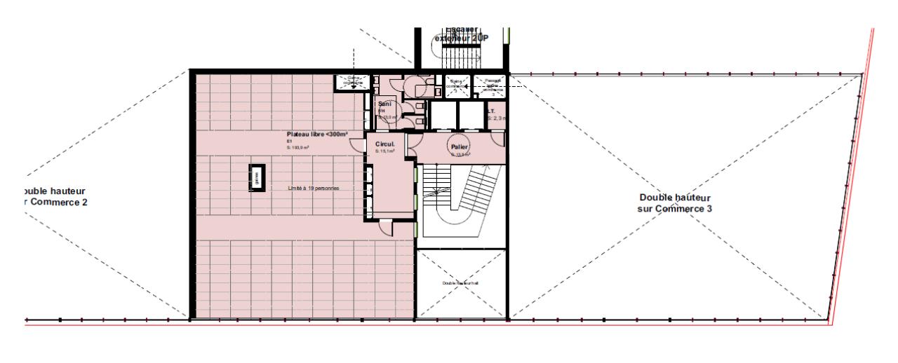
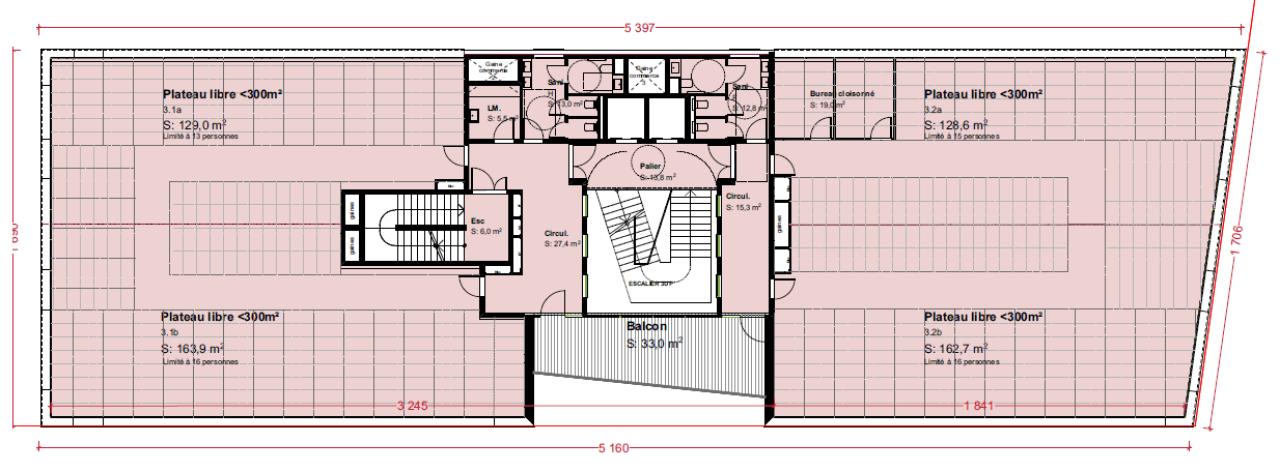
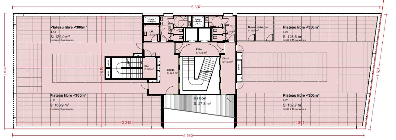
Immeuble élevé en R+6 très lumineux avec des espaces divisibles et des volumes facilement adaptables à tout type d'activité de bureaux.
60 Places de stationnement privatives en sous-sol, et proximité immédiate du parking du Mont Riboudet et des Docks 76 !
Immeuble avec une belle visibilité, au coeur du quartier Luciline, à proximité immédiate du centre commercial des Docks 76.
Bureaux livrés plateau nu, à cloisonner en fonction du besoin du preneur.
Livraison 2027-2028
Services & prestations
Aménagements
-
Accès Pers. Mobilité Réduite
-
Aménagement des bureaux : Espaces Ouverts
-
Sanitaires : Privatif(s)
Equipements
-
Ascenseurs
-
Climatisation : Air rafraîchi
-
Distribution chauffage : Réversible
-
Eclairage Bureaux : Luminaires encastrés LED
-
Faux plafond : Dal. fibres minéral.
-
Production climatisation : Autonome
Prestations de service
-
Parking : Parking public
-
Sécurité : Contrôle d'accès
Normes, Certifications et Labels
-
Catégorie ERP : 5
-
Label cible : HQE
Type / Etat du bâtiment
-
Etat de l'immeuble : Neuf
Informations complémentaires
-
Jardin suspendu










