



Location Bureau 837 m²
76000 Rouen
837 m²
176 €
HT/HC/m²/an
Disponibilité : 24 mois après travaux

Maxime LETHUILLIER
Description
ROUEN - centre ville / Université
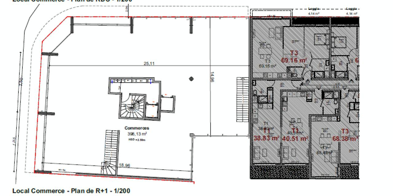
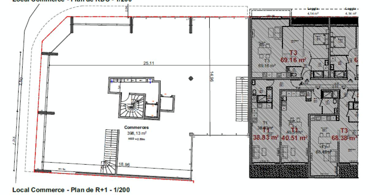
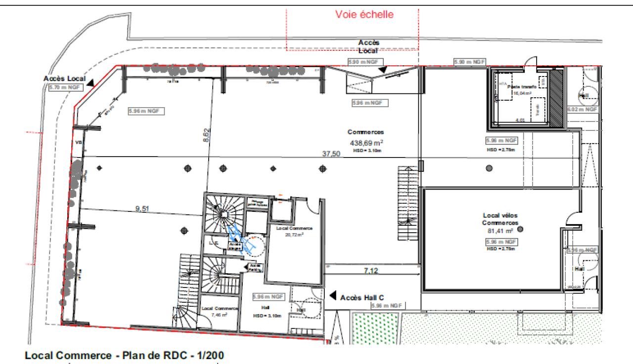
Local commercial reparti sur 2 niveaux, offrant une superficie totale d'environ 836m² sur un axe passant du centre ville de Rouen.
Au pied des arrêts TEOR, ce local est idéal pour une activité commerciale, une activité médicale, ou un centre de formation.
BNP PARIBAS REAL ESTATE vous propose à la location un local commercial d'une superficie totale d'environ 836 m², idéalement situé sur un axe stratégique à fort passage, offrant une excellente visibilité pour tous types d'activités recevant du public (ERP).
Le local est livré brut de béton, fluides en attente, vitrines posées. Idéal pour aménager votre projet selon votre besoin !
Possibilité d'accompagnement pour des aménagements personnalisés, en fonction des spécificités de votre activité.










