




93 Avenue Pasteur
76000 Rouen
634 m²
Divisible dès 117 m²
à partir de 386 760 €
HT/HD
Disponibilité : 18 mois après accord

Maxime LETHUILLIER
Description
Rouen centre
Bureaux neufs à vendre
Programme neuf de bureau situé au pied de la préfecture et de l'université.
Immeuble indépendant, pas de copropriété.
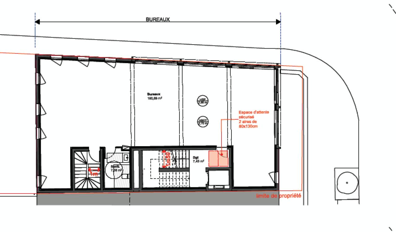
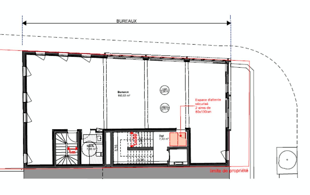
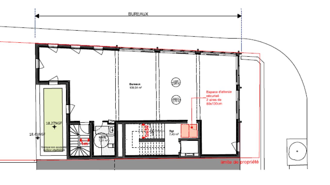
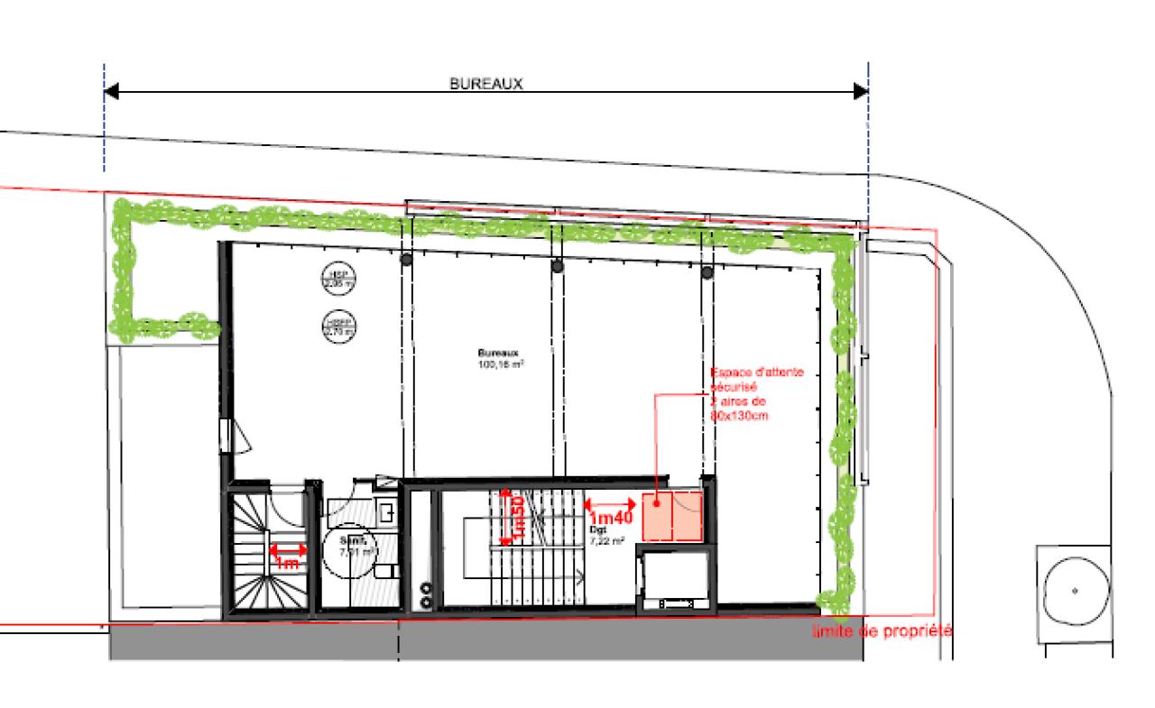
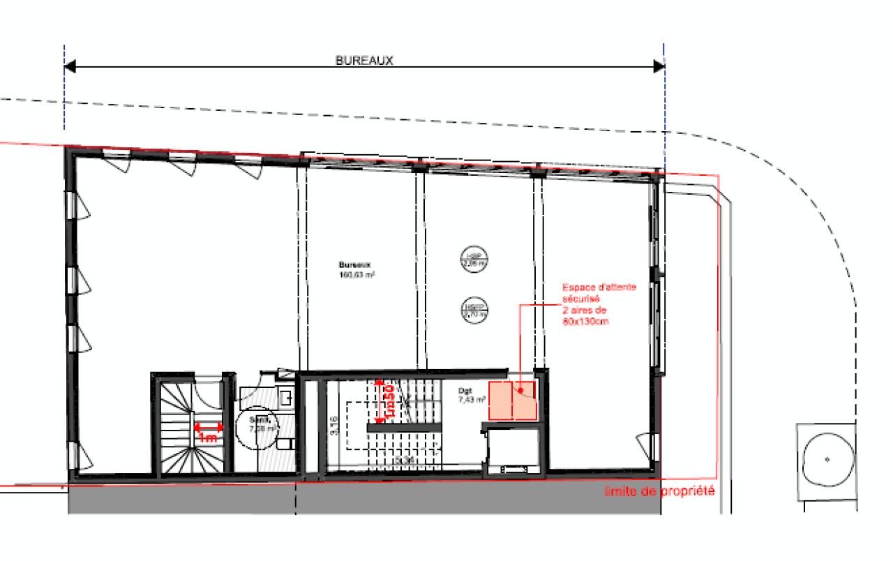
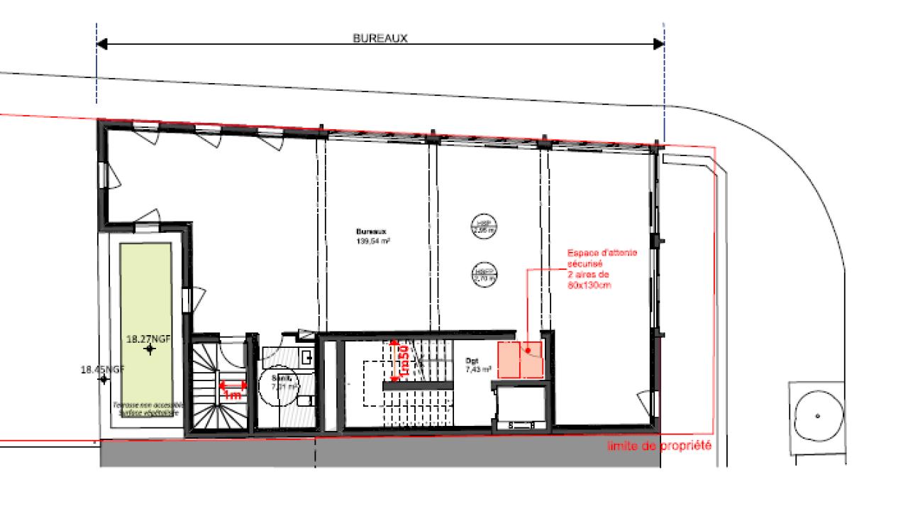
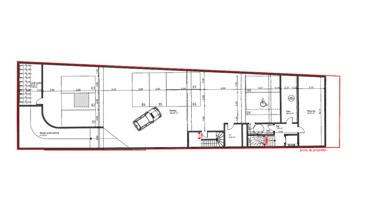
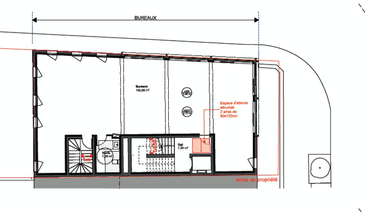
Immeuble indépendant tertaire à vendre, d'une superficie totale d'environ 633 m2 en R+4, avec 7 places de stationnement privatives en sous-sol (sécurisé).
Idéal profession libéral, ce bâtiment sera livré paysagé : revêtement de sol, murs périphériques isolés et peints, faux plafond réalisé avec édclairage dalles led encastrées, et système de chaud/froid réversible par PAC (pompe à chaleur).
Sanitaire réalisé à chaque étage.
Terrasse privative au dernier étage.
Bâtiment basse consommation, idéalement situé dans le centre ville de Rouen, au pied de tous les services.
Possibilité de division par étage, à partir de 117,20 m2.
Nous contacter pour tout complément d'information.
Services & prestations
Aménagements
-
Accueil : Hall d'accueil
-
Accès Pers. Mobilité Réduite : Ascenseur
-
Sanitaires : Privatif(s) Sanitaire à chaque étage
Equipements
-
Ascenseurs
-
Climatisation : Réversible
-
Eclairage Bureaux : Luminaires encastrés Dalles LED
-
Faux plafond
-
Sol bureaux : Moquette Moquette au sol (autre possible)
Prestations de service
-
Parking : 7 Places Parking en sous-sol sécurisé
Extérieurs
-
Terrasses - jardins : Terrasse au dernier niveau










