




Vente Local d'activité 2 399 m²
31120 Portet-sur-Garonne
2 399 m²
Divisible dès 283 m²
à partir de 441 109 €
HT/HD
Disponibilité : 31/12/2025

Franck SANCHEZ
Description
NOUVEAU PROGRAMME IMMOBILIER A LA VENTE - CENTRE COMMERCIAL PORTET/GARONNE
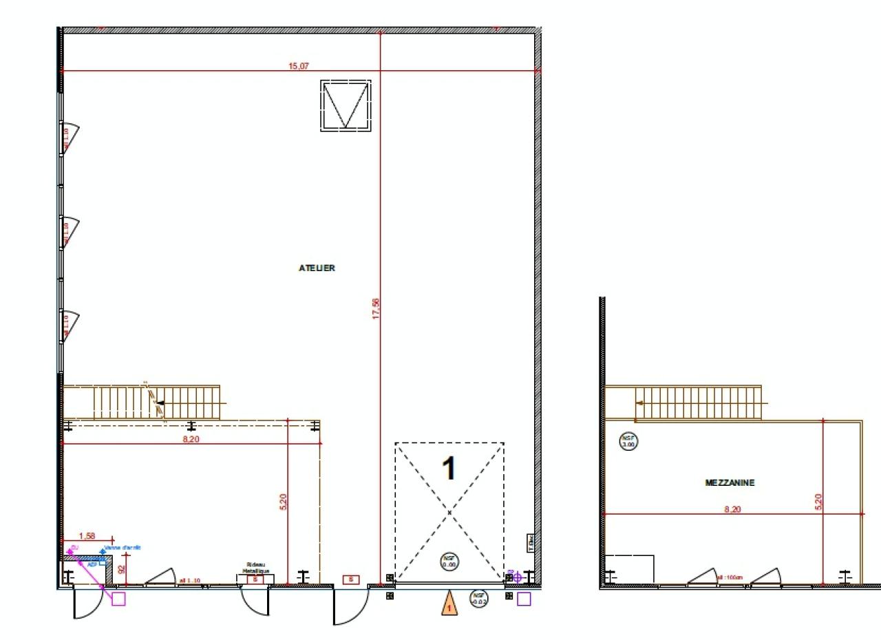
Bénéficiant d'un emplacement exceptionnel à proximité immédiate du centre commercial Carrefour de Portet-sur-garonne, nous vous proposons à la vente des locaux d'activités neufs à partir de 282 m². Toutes les cellules bénéficient d'un accès livraison par porte sectionnelle, d'une belle hauteur libre et d'un accès piéton avec une mezzanine aménageable en bureaux.
Livraison fin 2025.
*** TOULOUSE SUD-OUEST - PORTET/GARONNE : PARC D'ACTIVITES NEUF A L'ACQUISITION ***
BNP PARIBAS REAL ESTATE vous invite à découvrir ce nouveau programme en construction proposant environ 3 400 m² environ de locaux neufs à vendre, divisibles à partir de 280 m² environ.
L'ensemble immobilier disponible à la vente bénéficie d'un emplacement exceptionnel à proximité immédiate du centre commercial "Carrefour" de Portet-sur-Garonne,
Toutes les cellules bénéficient d'un accès livraison par porte sectionnelle, d'une belle hauteur libre et d'un accès piéton avec une mezzanine aménageable en bureaux.
Chantier en cours : livraison prévue fin 2025.
PRESTATIONS ACTIVITE / ENTREPOT :
- Charge au sol RDC : 3,5 tonnes / m²
- Charge au sol étage : 250 kg / m²
Porte d'accès plain-pied : 1 par lot
Puissance électrique : Tarif Bleu , 36 KW
Hauteur sous porte plain-pied : 4,5 mètres x 3,5 mètres de large
Hauteur libre : 6 mètres
Panneaux photovoltaïques en toiture (autoconsommation)
Site clôturé
Accessibilité type(s) véhicule(s) : Moyen(s) porteur(s)
Murs : Bardage double peau
Structure : Métallique
Charpente : Métallique
Couverture : Bac acier isolé
Sol du bâtiment : Béton
DESCRIPTIFS & SERVICES :
Parkings : Voiture extérieur , 4 par cellule
Immeuble copropriété
Fluides en attente
Fibre optique
Bus : Ligne 5 au pied de l'immeuble
Desserte routière : A64 à 4 minutes
Pour visiter, contactez-nous au 05 61 23 56 56.
Toutes nos offres sur : https://www.bnppre.fr/toulouse
Services & prestations
Hauteurs
-
Hauteur libre : 6,00 mètre(s)
-
Hauteur sous porte plain-pied : 4,50 mètre(s) x 3,5 mètres de large
Accès véhicules
-
Accessibilité type véhicules : Moyens porteurs
Equipements
-
Charge au sol Etage : 250,00 kg/m²
-
Charge au sol Rdc : 3,50 tonne(s)/m²
-
Fluides en attente
-
Porte d'accès plain-pied : 1 par lot
-
Puissance électrique : Tarif Bleu 36,00
-
Sols du bâtiment : Béton
Type / Etat du bâtiment
-
Etat de l'immeuble : Neuf
-
Immeuble copropriété
Structure du bâtiment
-
Charpente : Métallique
-
Couverture : Bac acier isolé
-
Murs : Bardage double peau
Prestations de service
-
Parking : 4 par cellule
Aménagements
-
Accès Pers. Mobilité Réduite
Informations complémentaires
-
Panneaux photovoltaïques en toiture (autoconsommation)










