




Vente Local d'activité 2 979 m²
54180 Heillecourt
2 979 m²
2 300 000 €
HT/HD
Disponibilité : 01/06/2026

Vincent BLASZCZAK
Description
A VENDRE - LOCAUX D'ACTIVITE
NANCY SUD HEILLECOURT - OVACT2640013
VENTE - 2979m² - BÂTIMENT D'ACTIVITE - HEILLECOURT(54)
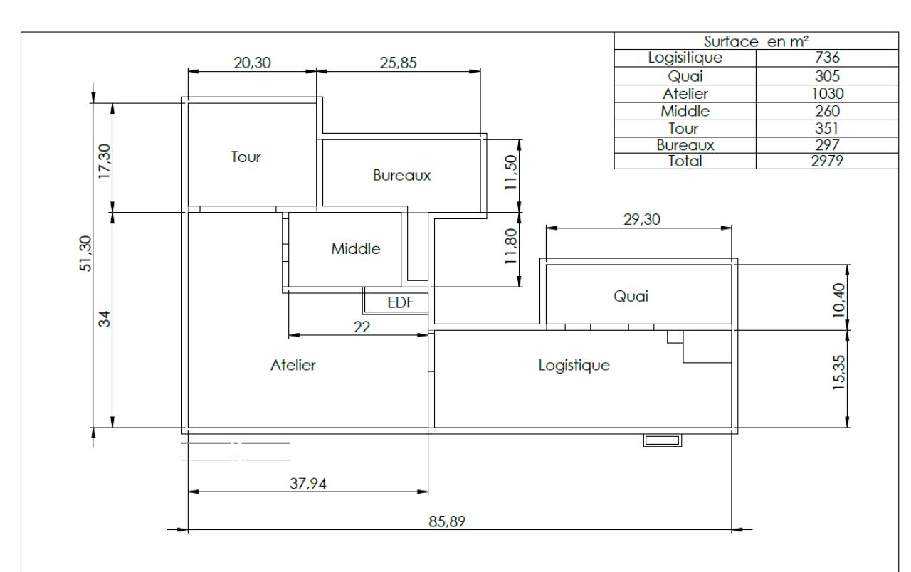
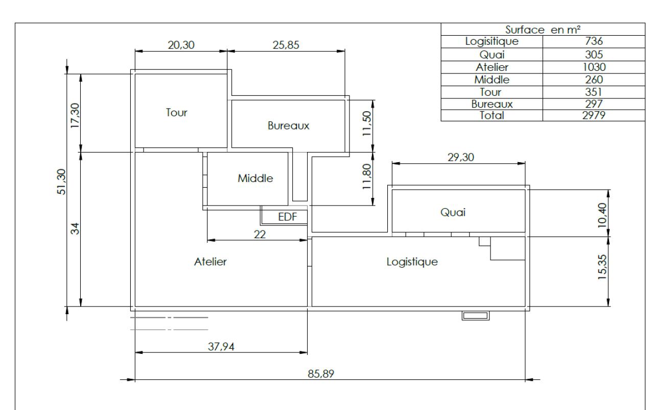
Surface totale : 2979,00 m²
2 656 m² environ de locaux d'activité en rez-de-chaussée
148 m² environ de bureaux en rez-de-chaussée
148 m² environ de bureaux en R+1
Prix de vente : 2 300 000,00 HT
Caractéristiques principales de l'offre :
1 porte sectionnelle
Chauffage/Climatisation réversible
Parking VL et PL
Bail commercial 3/6/9
Localisation : La commune de HEILLECOURT est située à l'entrée SUD de l'agglomération nancéienne.
A33
A31
Conseiller en Immobilier d'Entreprise, BNP PARIBAS REAL ESTATE ADVISORY, vous accompagne dans vos recherches de bureaux, locaux d'activité et entrepôts logistiques en Meurthe et Moselle / Vosges.
Services & prestations
Hauteurs
-
Hauteur libre : 6,00 mètre(s) Jusqu'à 8 m
Equipements
-
Eclairage intérieur : LED
-
Porte d'accès à quai : 6 Buttoirs
-
Puissance électrique : Tarif Jaune 250,00
-
Zone de béquillage
Structure du bâtiment
-
Charpente : Métallique
-
Couverture : Bac acier isolé
Extérieurs
-
Aire de manoeuvre
-
Aire de stockage extérieure
Informations complémentaires
-
Dalle isolée compatible avec une activité frigorifique










