




Vente Local d'activité 480 m²
94200 Ivry-sur-Seine
480 m²
730 000 €
HT/HD
Disponibilité : Immédiate

Paul SCHAMING
Description
IVRY SUR SEINE (94)
A VENDRE
BNP PARIBAS Real Estate vous propose un bien rare à vendre au coeur d'Ivry sur Seine sur une parcelle de 259 m²
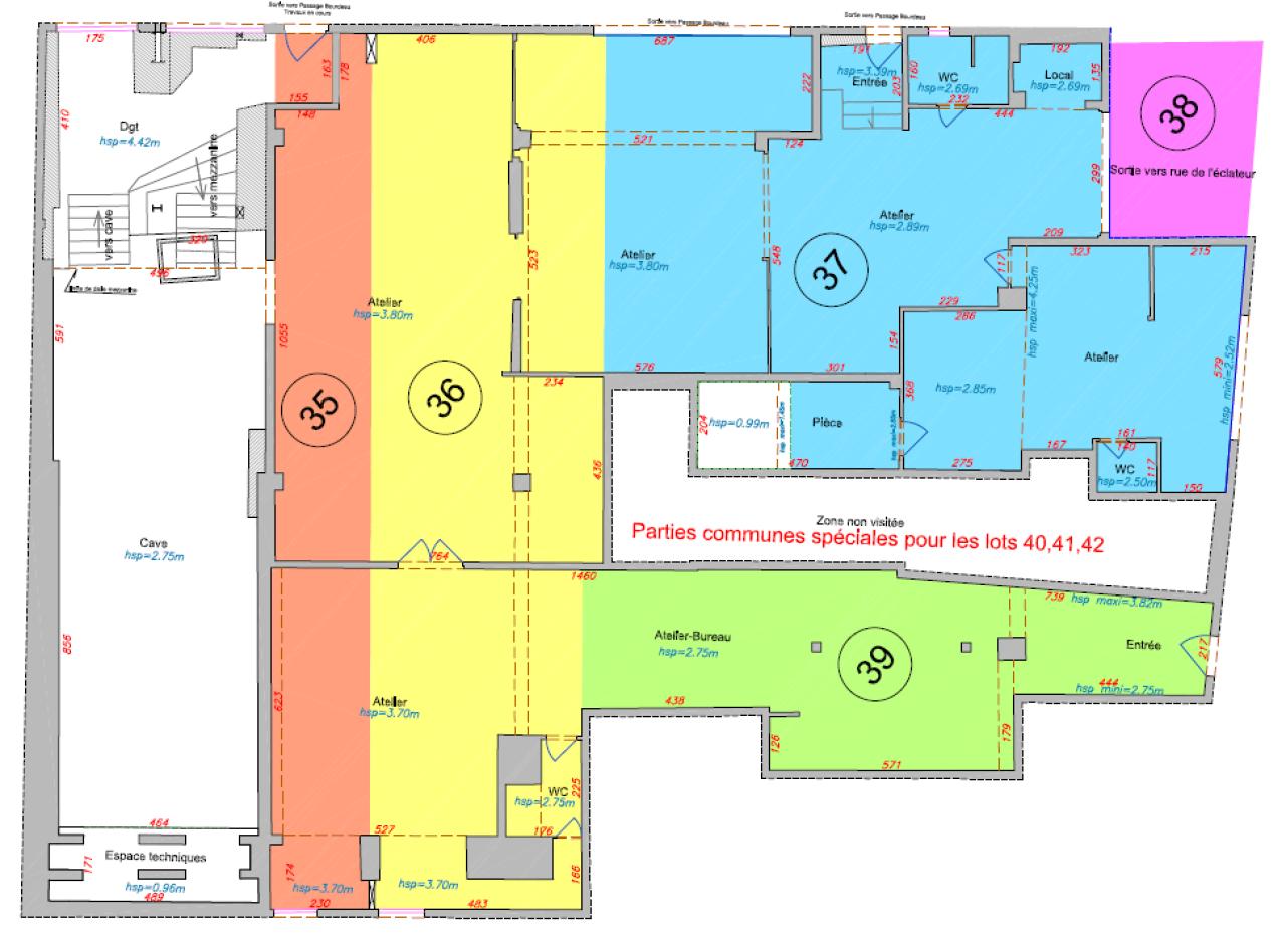
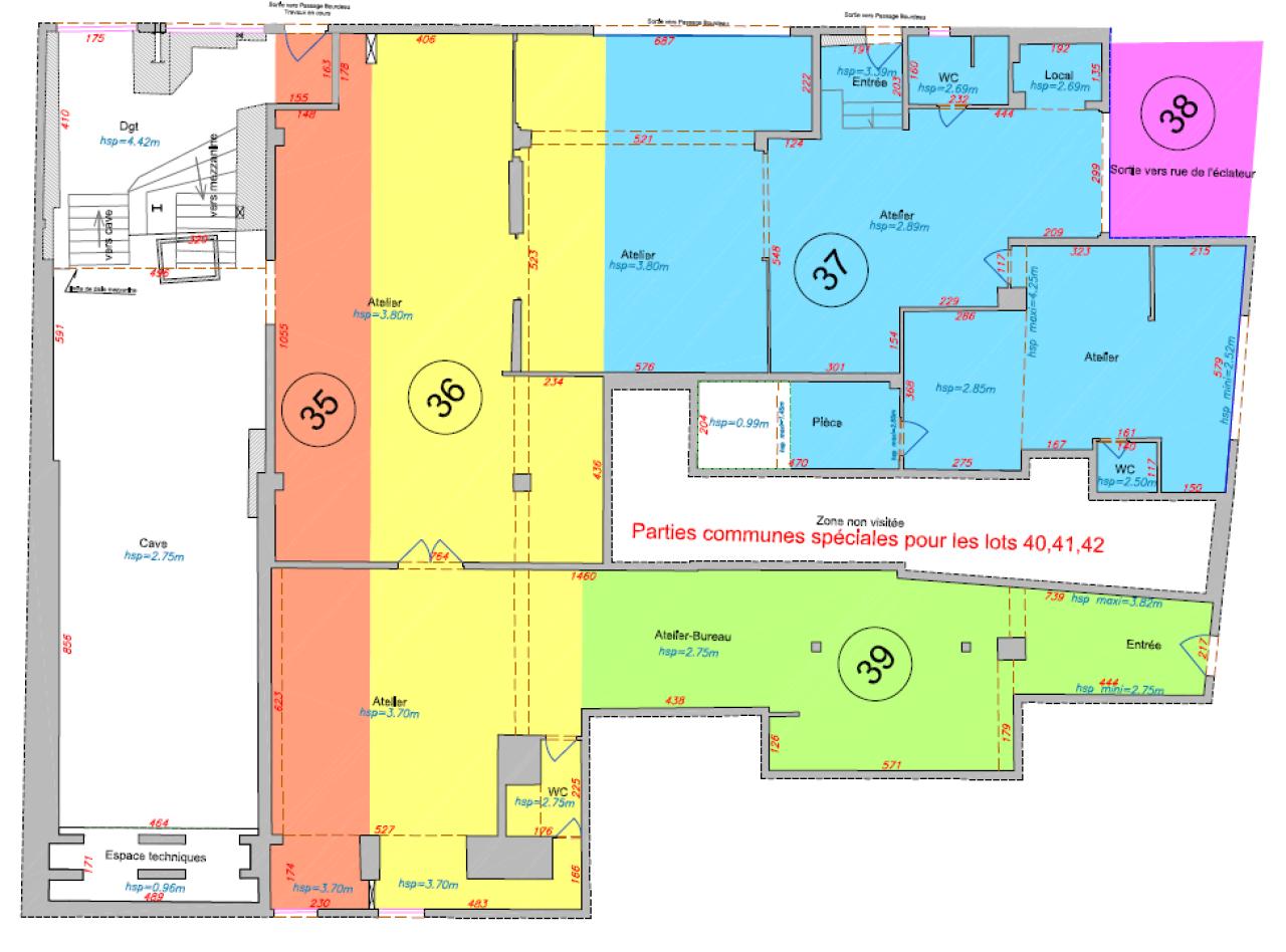
BNP PARIBAS REAL ESTATE vous propose, à l'acquisition, des locaux d’activité avec bureaux d’accompagnement d’une surface de 480 m² environ.
Le bâtiment offre de grands plateaux permettant une grande flexibilité d'aménagement, un accès aux véhicules légers/lourds et de nombreuses autres services et prestations techniques. Ces locaux bénéficient d’une accessibilité remarquable dans un environnement tertiaire et dynamique.
Accessibilité :
- Accès routier : A4; Boulevard Périphérique
- Métro 7 - Mairie d'Ivry
- RER C : Ivry sur Seine
Services / Prestations :
- Hauteur libre : 3,80m
- Hauteur sous porte plain pied : 3m
- Charge au sol RDC : 3t/m²
- Porte d'accès plain pied :
- Accessibilité type véhicules : tous porteurs
- Sécurité :Contrôle d'accès
- Locaux sociaux : douches/vestiaires
- Bureaux cloisonnés
- Hall d'accueil
Pour toute information complémentaire, n'hésitez pas à prendre contact avec nos consultants BNP PARIBAS REAL ESTATE.
Services & prestations
Hauteurs
-
Hauteur libre : 3,80 mètre(s)
-
Hauteur sous porte plain-pied : 3,00 mètre(s)
Accès véhicules
-
Accessibilité type véhicules : Tous porteurs
Equipements
-
Charge au sol Rdc : 3,00 tonne(s)/m²
-
Eclairage Bureaux : Luminaires encastrés
-
Porte d'accès plain-pied
-
Puissance électrique : 380,00 KWA
-
Sol bureaux : Carrelage
-
Sols du bâtiment : Béton
Type / Etat du bâtiment
-
Etat des locaux : Rénové
-
Etat du terrain : Bétonné, Voirie lourde
Structure du bâtiment
-
Murs : Parpaings
Aménagements
-
Bureaux cloisonnés : 1
-
Locaux sociaux : Douches/Vestiaires, Sanitaires










