




Location Bureau 110 m²
67000 Strasbourg
110 m²
210 €
HT/HC/m²/an
Disponibilité : Immédiate

Nalan KOLAT
Description
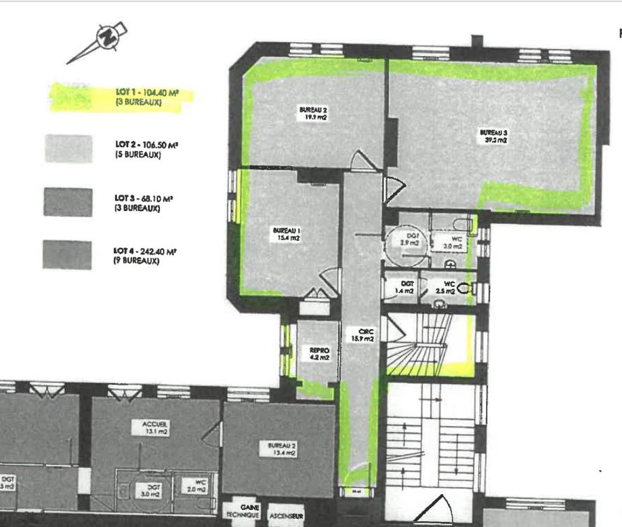
BUREAUX A LOUER - L'ORANGERIE A STRASBOURG
Réf OLBUR2533581
À LOUER : dans un ensemble immobilier de bon standing, au R+3, des bureaux d’une superficie d'environ 110,40 m² PCI. Accessibles PMR par ascenseur, l'immeuble est accordé à la fibre optique, très soigné et niché proche des Institutions Européennes et du Parc de l'Orangerie. Les bureaux sont rénovés, lumineux, climatisés. Se composant de 3 bureaux, une salle de réunion, une jolie petite kitchenette, deux sanitaires privatifs, sortie secours. Parquet au sol, hauts plafonds. Possibilité de louer 11/2025 ou avant. Etat impeccable afin de démarrer votre activité rapidement et sans travaux.
Services & prestations
Aménagements
-
Accès Pers. Mobilité Réduite : Ascenseur
-
Aménagement des bureaux : Cloisonnés/Ouverts 3 bureaux, salle de réunion, kitchenette, 2 WC
-
Bureaux cloisonnés
Equipements
-
Ascenseurs : Aux normes d'accessibilité PMR
-
Climatisation
-
Câblage informatique
-
Eclairage Bureaux : Luminaires encastrés en leds
-
Faux plafond
-
Plinthes techniques périphériques
-
Sol bureaux : Parquet
-
Type de chauffage : Collectif au gaz avec répartiteurs
Prestations de service
-
Sécurité : Contrôle d'accès Visio- et/ou Interphone
Type / Etat du bâtiment
-
Etat de l'immeuble : Rénové
Informations complémentaires
-
Kitchenette moderne, Sortie secours










