




46-48 Rue du Faubourg-de-Saverne
67000 Strasbourg
1 336 m²
Divisible dès 86 m²
à partir de 175 €
HT/HC/m²/an
Disponibilité : immédiate

Nalan KOLAT
Description
STRASBOURG CENTRE - QUARTIER GARE- BUREAUX A LOUER
L'AVANCEE - REF. OLBUR2535713
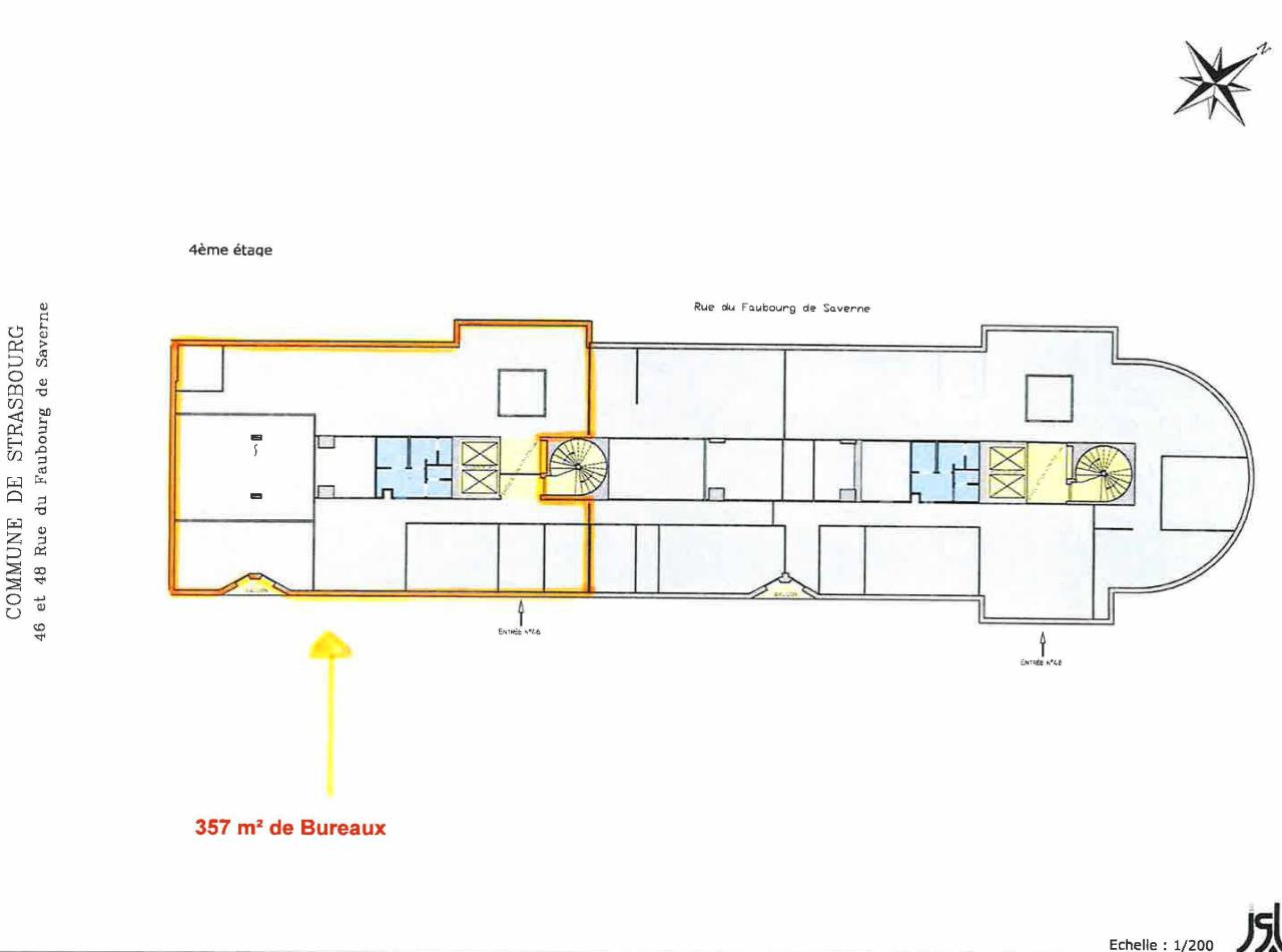
A LOUER : Au sein d'un immeuble parfaitement bien situé au Centre-Ville de STRASBOURG : Différents lots à usage de bureaux, d'une surface de 357 m² PCI situés en R+4, 140 m² PCI, ou encore 86 m² PCI situés en rdc plain-pied.
L'immeuble est rénové, accessible PMR, et il est situé à proximité immédiate de la Gare.
Les bureaux sont climatisés, fibrés, disposant d'un point d'eau selon les lots, et doubles sanitaires privatifs. Accès sécurisé, arcs à vélo dans la cour, places de parking en sous-sol réservées pour les bureaux. Emplacement exceptionnel. Disponibilité à la location.
En plein coeur du CENTRE-VILLE de STRASBOURG, l'immeuble l'AVANCEE, se composant de surfaces en RDC et des BUREAUX de grand standing en étage. Il bénéficie de places de PARKING privatives en sous-sol. Les BUREAUX en étages sont accessibles par deux ASCENSEURS aux normes PMR. L'immeuble bénéficie d'un emplacement optimal, à proximité immédiate de la GARE TGV de STRASBOURG et proche de nombreuses commodités, RESTAURANTS, CRECHE, salle de sport et du CENTRE - COMMERCIAL Les Halles.
Accès autoroutier immédiat par les autoroutes :
A4/A35 sortie GARE/Les Halles/Centre-Ville.
Desserte par les transports en commun:
Tram Lignes C, arrêt "Faubourg de Saverne" à deux pas
les Bus lignes 4 et 6, arrêt "Pont de Paris"
ligne 71, arrêt "Les Halles"
lignes 2, 6 et 10, arrêt "Wilson" à 1 minute
ligne de bus BHNS ( Bus à haut niveau de Service) Ligne G
Les informations sur les risques auxquels ce bien est exposé sont disponibles sur le site Géorisques : www.georisques.gouv.fr
Consultez BNP PARIBAS REAL ESTATE pour plus d'informations et planifiez votre visite dès à présent !
Services & prestations
Aménagements
-
Accueil : Espace d'attente
-
Accès Pers. Mobilité Réduite : Ascenseur
-
Hall d'accueil : Collectif
-
Sanitaires : 2 Privatif(s) deux double
Equipements
-
Ascenseurs : Aux normes PMR
-
Climatisation : Réversible
-
Faux plafond : Dal. fibres minéral.
-
Fenêtres : Double vitrage avec stores
-
Plinthes techniques périphériques
-
Sol bureaux : Moquette neuf
Prestations de service
-
Parking
-
Sécurité : Contrôle d'accès
Type / Etat du bâtiment
-
Etat de l'immeuble : Etat d'usage
-
Etat des locaux : Etat d'usage
-
IGH / Code du travail : Code du travail
Informations complémentaires
-
Bâtiment raccordé à la fibre optique, Hôtels et Restaurants à proximité
-
Arrivée et évacuation d'eau pour installation d'une kitchenette










