




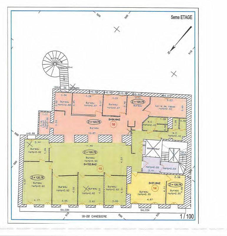
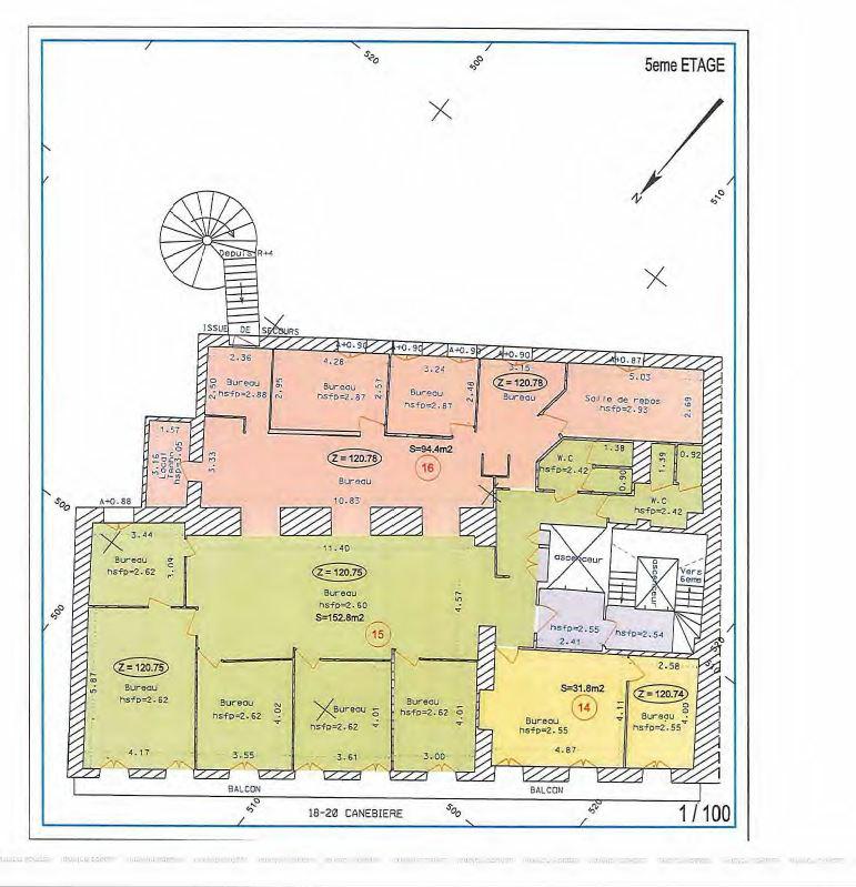
Location Bureau 250 m²
13001 Marseille
250 m²
170 €
HT/HC/m²/an
Disponibilité : Immédiate

Anthony GARCIA
Description
MARSEILLE 13001 - BUREAUX A LOUER divisibles
Cet immeuble de caractère à proximité immédiate du Vieux Port vous propose des surfaces de bureaux de 250 m² environ. Commerces, restaurants et transports en commun agrémenteront votre quotidien dans ces locaux en bon état.
MARSEILLE 13001 - BUREAUX A LOUER divisibles
BNP Paribas Real Estate vous propose des bureaux à louer. Ils sont situés au coeur de Marseille :
- À deux pas du Vieux-Port
- Immeuble de standing
- Accès optimal en transports en commun
1er arrondissement :
Le 1er arrondissement, quartier central de Marseille, regroupe certains des plus anciens édifices de Marseille ainsi que des immeubles à l'architecture et aux couleurs typiquement provençales. À proximité de l'emblématique Vieux-Port, profitez de ses nombreux commerces et restaurants.
Une accessibilité optimale:
- Métro ligne 1
- Tramway ligne 3
- Nombreuses lignes de bus à proximité
À proximité :
- Autoroutes A55 et A7
- Aéroport Marseille Provence à 20 min
- Gare TGV St-Charles à 5 min en métro
Services & prestations
Aménagements
-
Aménagement des bureaux : Espaces Ouverts
Equipements
-
Ascenseurs
-
Climatisation : Réversible
-
Fenêtres : Double vitrage
-
Plinthes techniques périphériques
-
Sol bureaux : Parquet flottant
Prestations de service
-
Parking
Type / Etat du bâtiment
-
Etat de l'immeuble : Etat d'usage
-
Etat des locaux : Etat d'usage
Informations complémentaires
-
Assurance : 1,29 €/m²










