




VERDAUJA
2 Avenue de Galilée
31130 Balma
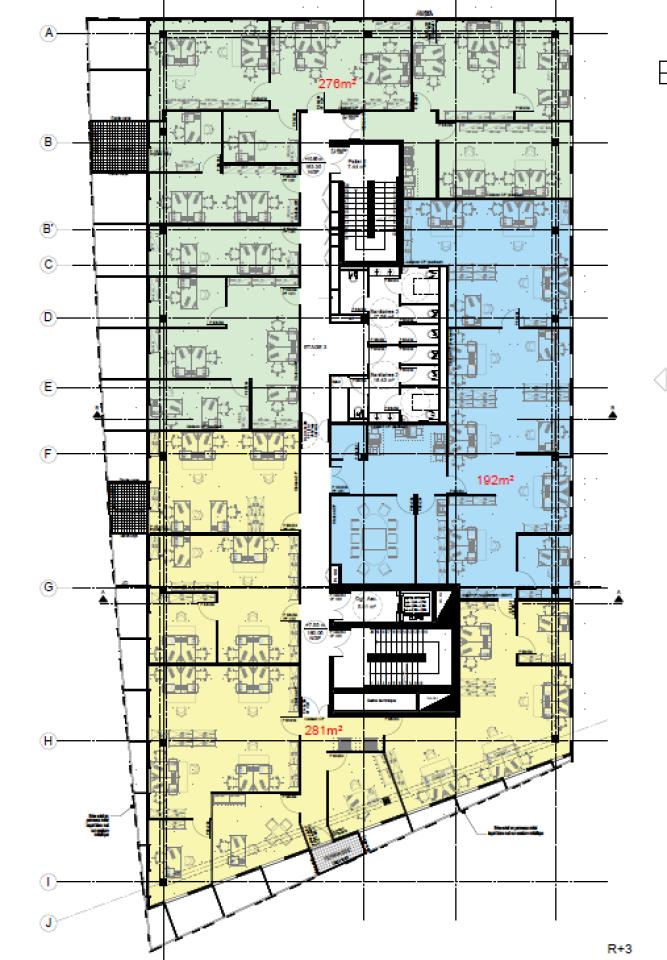
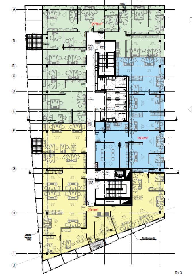
1 527 m²
Divisible dès 265 m²
120 €
HT/HC/m²/an
Disponibilité : Immédiate

Sophie MIZRAHI
Description
*** TOULOUSE EST / BALMA VIDAILHAN : BUREAUX A LOUER ***
BNP Paribas Real Estate vous propose plusieurs surfaces à usage de bureaux disponibles à la location, en très bon état d'usage.
BNP Paribas Real Estate vous propose VERDAUJA, un immeuble tertiaire moderne situé à Balma, à proximité immédiate du métro ligne A, du centre commercial Occitania et de la rocade Est. Plusieurs surfaces de bureaux à partir de 265 m² sont disponibles à la location dès maintenant.
Le loyer est progressif :
120/m²/an HT HC la première année
130/m²/an HT HC la deuxième année
140/m²/an HT HC la troisième année
Caractéristiques principales :
Disponibilité : Immédiate
Aménagements : Douches et espace cuisine pour le bien-être des utilisateurs
Stationnement : 43 places de parking disponibles
Prestations de qualité :
Climatisation réversible par ventilo-convecteur en plafonnier
Contrôle d'accès sécurisé
Câblage informatique
Faux plafonds en dalles de fibre minérale
Plinthes techniques périphériques
Baie de brassage
Ascenseurs
Éclairage des bureaux par luminaires encastrés
Sol en moquette
Sanitaires en parties communes
Accessibilité et transports :
Métro : Ligne A, station Balma-Gramont à 1 km
Bus : Arrêt à 250 mètres
Rocade : Accès à 2 km
Aéroport Toulouse-Blagnac : À 17 km
Pourquoi choisir Balma ?
Située à l'est de l'agglomération toulousaine, Balma est à seulement 15 minutes en voiture et 10 minutes en métro du centre-ville de Toulouse et du Capitole. La commune bénéficie de nombreux atouts, notamment le terminus du métro ligne A, la station Balma-Gramont, le Centre Commercial Occitanie avec de nombreuses enseignes nationales, et un accès direct via la rocade sortie n°15 Roseraie, Jolimont, gare Matabiau.
Balma accueille de nombreuses délégations régionales en banques, assurances, mutuelles, et est en plein essor avec le développement de la ZAC Balma-Gramont, qui comprend l'écoquartier Vidailhan. Cette zone de 106 hectares est dédiée pour deux tiers à l'activité économique et pour un tiers à l'habitat. Elle offre 14 hectares de parcs, des équipements publics (groupe scolaire, crèche, maison de quartier, etc.) et propose du transport à la demande (TAD).
Contactez-nous pour une visite :
Pour découvrir ces bureaux, contactez BNP Paribas Real Estate.
Retrouvez l'intégralité de nos offres sur : https://www.bnppre.fr/toulouse
Services & prestations
Aménagements
-
Sanitaires : Parties communes
Equipements
-
Ascenseurs
-
Climatisation : Réversible
-
Câblage informatique
-
Distribution chauffage : Réversible
-
Distribution climatisation : Ventilo convecteur en plafonnier
-
Douche
-
Eclairage Bureaux : Luminaires encastrés
-
Faux plafond : Dal. fibres minéral.
-
Plinthes techniques périphériques
-
Production climatisation : Autonome
-
Sol bureaux : Moquette
Prestations de service
-
Sécurité : Contrôle d'accès
Type / Etat du bâtiment
-
Etat des locaux : Très bon état
-
IGH / Code du travail : Code du travail
Informations complémentaires
-
Baie de brassage, Cuisine selon les lots










