




116 Route d'Espagne
31100 Toulouse
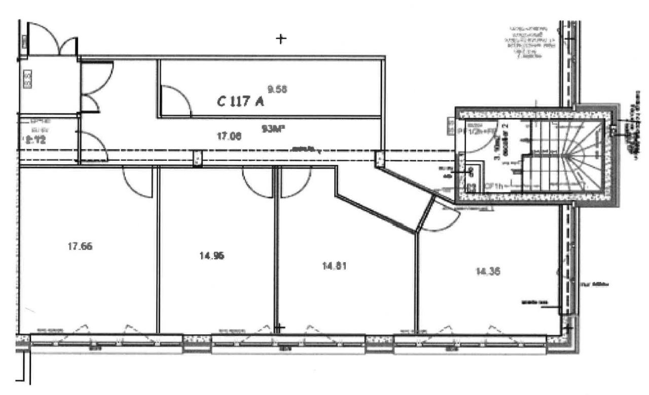
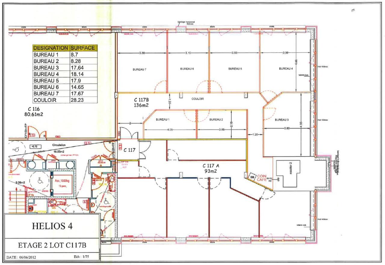
436 m²
Divisible dès 93 m²
120 €
HT/HC/m²/an
Disponibilité : Immédiate

Louise BOURRIERES
Description
*** TOULOUSE ROUTE D'ESPAGNE : BUREAUX A LOUER ***
A proximité immédiate de la sortie 25 « Langlade » du périphérique Ouest Toulousain, BNP Paribas Real Estate vous propose plusieurs surfaces de bureaux allant de 93 m² à 137 m², disponibles à la location.
PRESTATIONS :
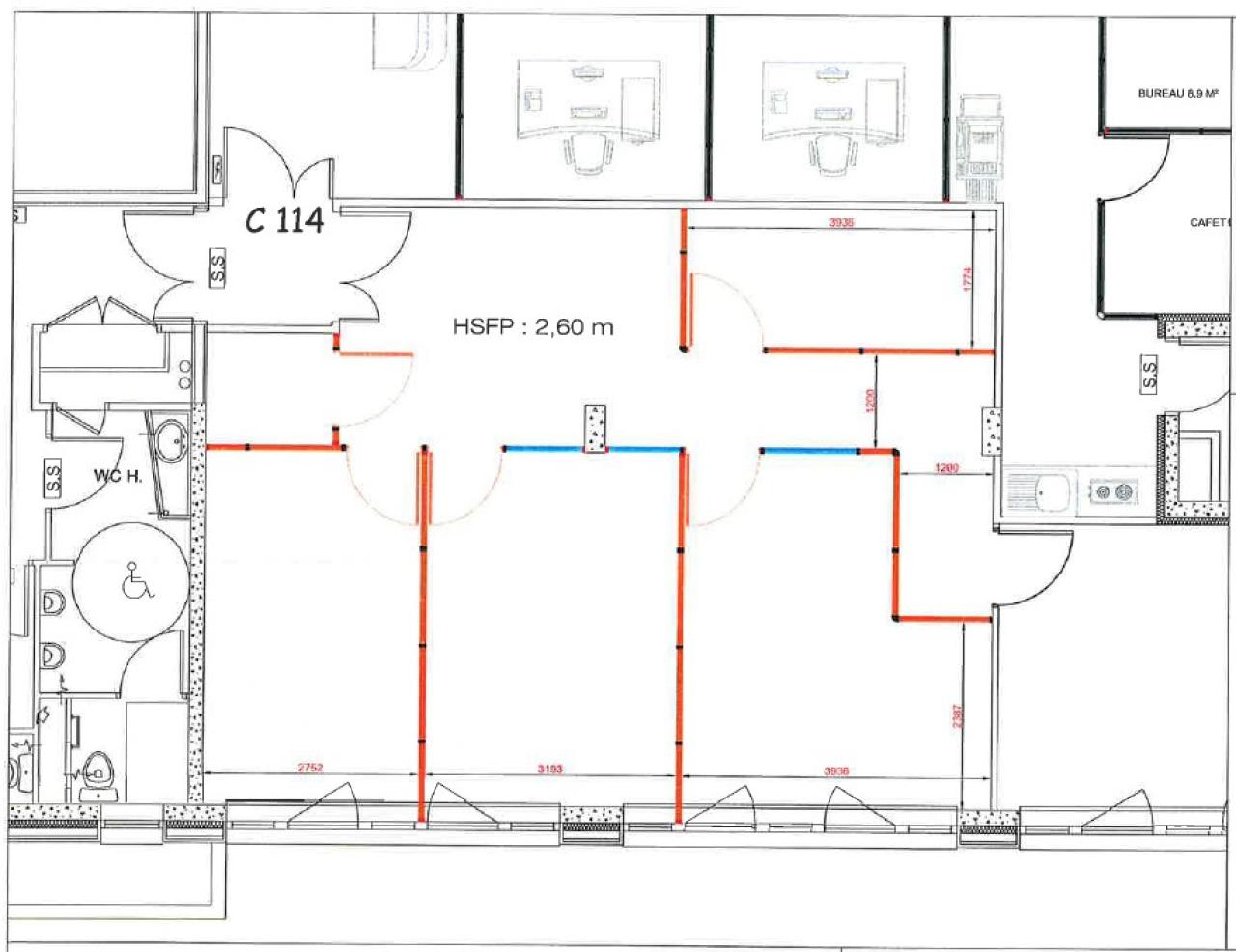
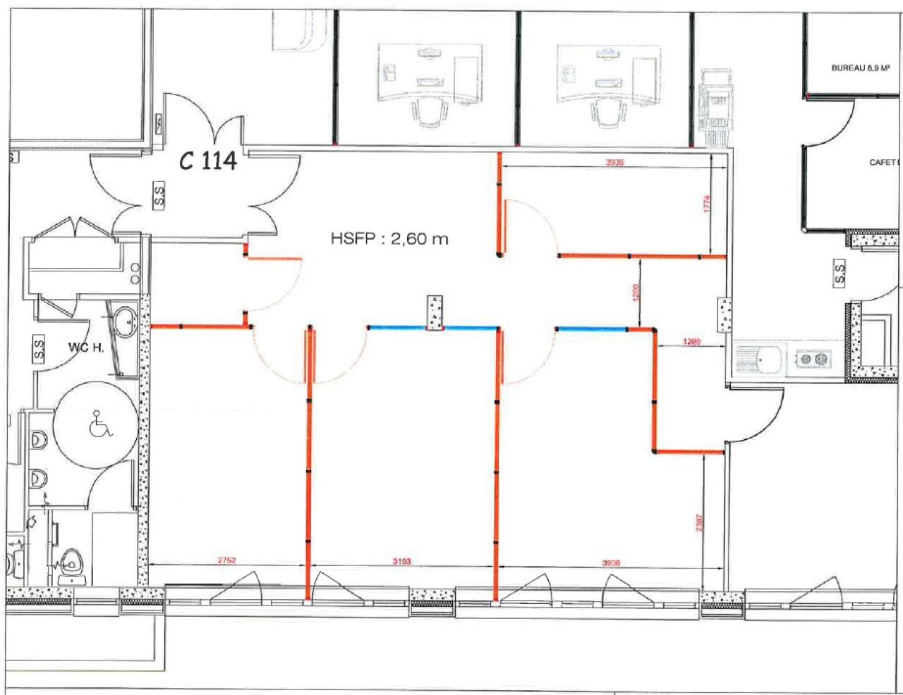
bureaux lumineux et fonctionnels
climatisation double flux chaud / froid
faux plafonds : dalle en fibre minérale
Sols : moquette à l'étage
plinthes techniques en périphérie : câblage RJ 45 selon les lots
éclairage des bureaux par luminaires encastrés
sanitaires communs
places de parking extérieures
site clos / contrôle d'accès
1 place de parking par lot
ACCESSIBILITE :
Arrêt de bus Langlade lignes L5 et et 152 à 1 min
Accès immédiat périphérique extérieur
Gare TER Gallieni à 5 min à pied
Zoom du Basso Cambo :
Cette vaste zone d'activités de la métropole accueille des acteurs majeurs de l'aéronautique, du spatial et de l'industrie. Bien desservie par le métro et la rocade, elle évolue d'un site industriel vers un pôle mixte dynamique. Des projets structurants sont en cours, dont un centre commercial avec cinéma et espace de loisirs. L'offre immobilière comprend des bureaux attractifs et des locaux adaptés à l'industrie, avec une volonté affirmée de modernisation et de diversification.
Services & prestations
Aménagements
-
Accès Pers. Mobilité Réduite
-
Aménagement des bureaux : Cloisonnés
-
Sanitaires : Parties communes
Equipements
-
Ascenseurs
-
Climatisation : Réversible
-
Câblage informatique
-
Distribution chauffage : Réversible
-
Distribution climatisation : Ventilo convecteur en plafonnier
-
Eclairage Bureaux : Luminaires encastrés
-
Faux plafond : Dal. fibres minéral.
-
Plinthes techniques périphériques
-
Production climatisation : Autonome
-
Sol bureaux : Moquette
Prestations de service
-
Sécurité : Contrôle d'accès
Type / Etat du bâtiment
-
Etat de l'immeuble : Etat d'usage
-
Etat des locaux : Etat d'usage
-
IGH / Code du travail : Code du travail










