




4-8 Rue d'Austerlitz
31000 Toulouse
971 m²
265 €
HT/HC/m²/an
Disponibilité : 01/09/2026

Louise BOURRIERES
Description
"LES VARIETES" : BUREAUX NEUFS A LOUER - TOULOUSE HYPER CENTRE
*** AU PIED DU METRO JEAN JAURES ***
OPPORTUNITE RARE
BNP PARIBAS REAL ESTATE vous propose cette belle opportunité de bureaux neufs disponible à la location dans l'hyper centre de la ville rose.
L'immeuble accueillera un commerce dans les étages en dessous des bureaux ainsi qu'un restaurant avec un rooftop au dernier étage.
Profitez d'un emplacement prime avec tous les avantages, services & commodités qu'offrent le centre-ville : restauration, commerces, salles de sport, etc.
Prestations :
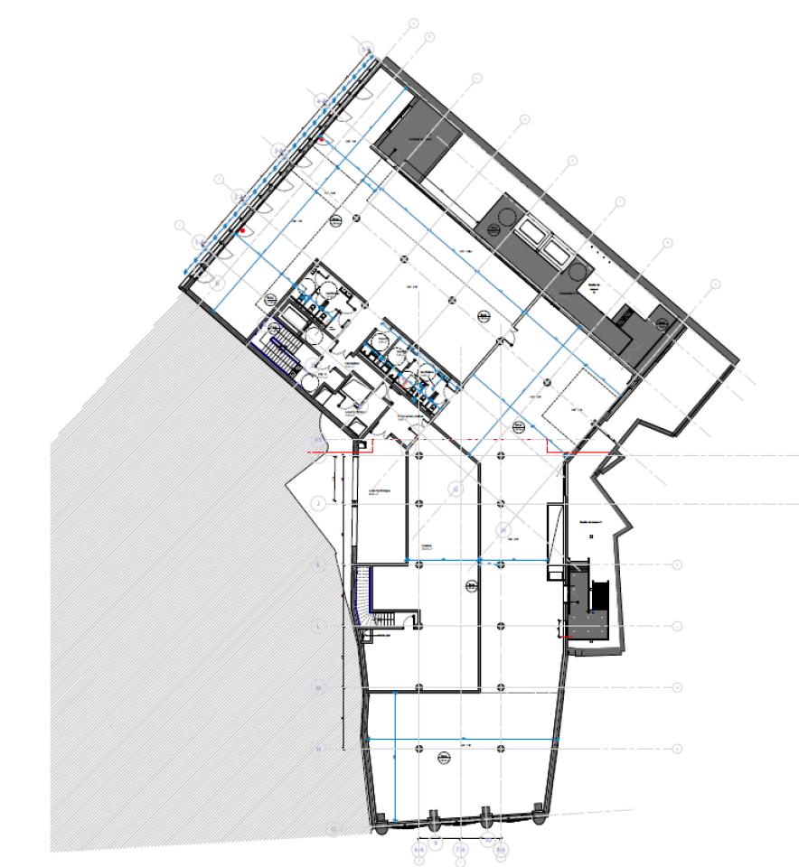
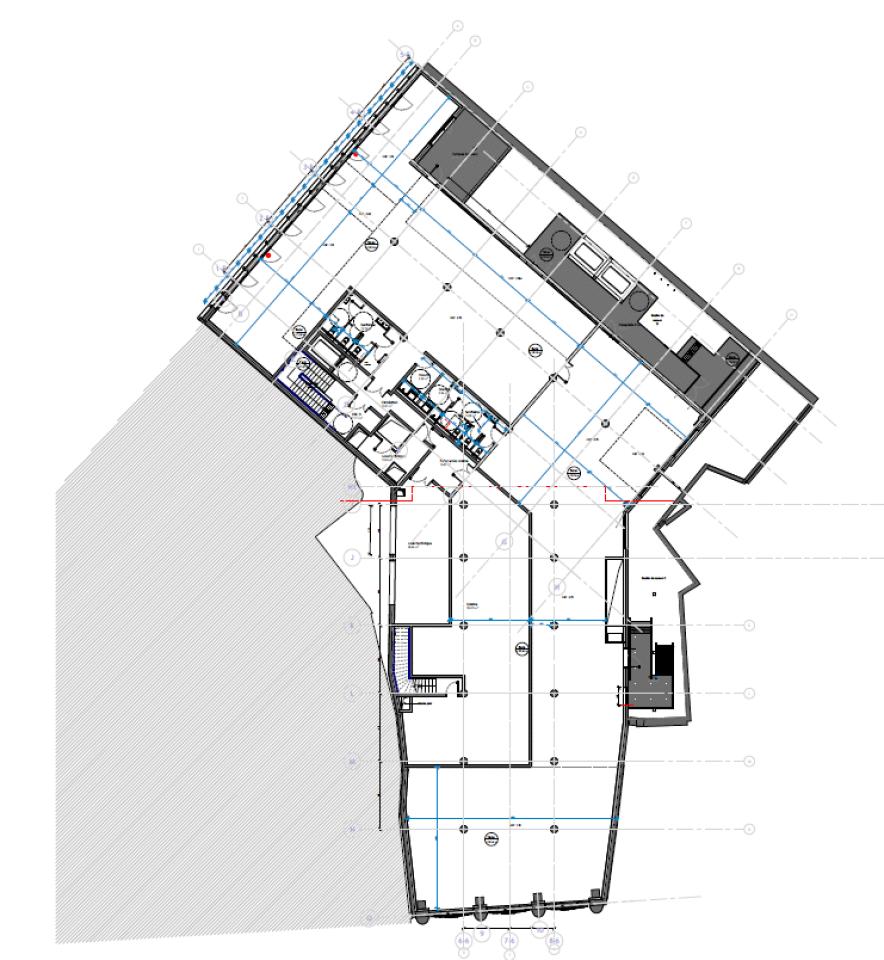
Bureaux en R+3
Climatisation : Réversible
Distribution climatisation : Ventilo convecteur en plafonnier
Sécurité : Contrôle d'accès
Distribution chauffage : Réversible
Production climatisation : Autonome
Terrasse de 27 m²
Douche
Desserte & transports :
Métro lignes A et B "Jean-Jaurès" à 190 mètres
Bus à 200 mètres
Vélos partagés à 50 mètres
Gare Toulouse Matabiau à 1 km
Desserte routière : accès rocade à 2,9 kilomètres sortie n°31 "Ponts Jumeaux"
Aéroport de Toulouse-Blagnac à 8,7 kilomètres.
Bail commercial 3/6/9 années
ZOOM SUR TOULOUSE CENTRE :
Le centre-ville de Toulouse est un pôle économique majeur, offrant un large choix d'opportunités en immobilier d'entreprise. Il séduit autant les grandes entreprises que les startups. Son accessibilité, son dynamisme et la diversité de son offre en font un emplacement privilégié pour y implanter son entreprise.
Le quartier Matabiau, en pleine transformation avec le projet Grand Matabiau Quais d'Oc, est destiné à devenir le nouveau quartier d'Affaires de la Métropole. Grâce à la modernisation de la Gare Toulouse-Matabiau, l'arrivée de la 3ème ligne de métro et des aménagements urbains ambitieux, ce nouveau quartier offrira une offre tertiaire moderne et connectée aux entreprises en quête de centralité et d'accessibilité.
Le quartier Guillaumet, situé à l'est du centre-ville, actuellement en pleine reconversion propose une offre diversifiée de logements, commerces et bureaux. Il est conçu pour favoriser l'innovation et le bien-être au travail et attire déjà de nombreuses entreprises.
Situé à deux pas du centre-ville et du Capitole, la ZAC de Compans Caffarelli est le 1er quartier d'affaire de TOULOUSE regroupant un parc immobilier vieillissant qui nécessitera une remise à niveau et une production d'offres neuves.
Services & prestations
Aménagements
-
Aménagement des bureaux : Espaces Ouverts
-
Sanitaires : Parties communes
Equipements
-
Ascenseurs
-
Climatisation : Réversible
-
Câblage informatique
-
Distribution chauffage : Réversible
-
Distribution climatisation : Ventilo convecteur en plafonnier
-
Douche
-
Eclairage Bureaux : Luminaires encastrés
-
Faux plafond : Dal. fibres minéral.
-
Faux plancher
-
Production climatisation : Autonome
-
Sol bureaux : Moquette
Prestations de service
-
Sécurité : Contrôle d'accès
Extérieurs
-
Terrasses - jardins : De 27 m²
Type / Etat du bâtiment
-
IGH / Code du travail : Code du travail
Informations complémentaires
-
Les honoraires de gestion technique de l'immeuble sont exprimés TTC










