




Location Bureau 470 m²
35131 Chartres-de-Bretagne
470 m²
90 €
HT/HC/m²/an
Disponibilité : Immédiate

Delphine BARON
Description
CHARTRES-DE-BRETAGNE - ZA de la Métairie
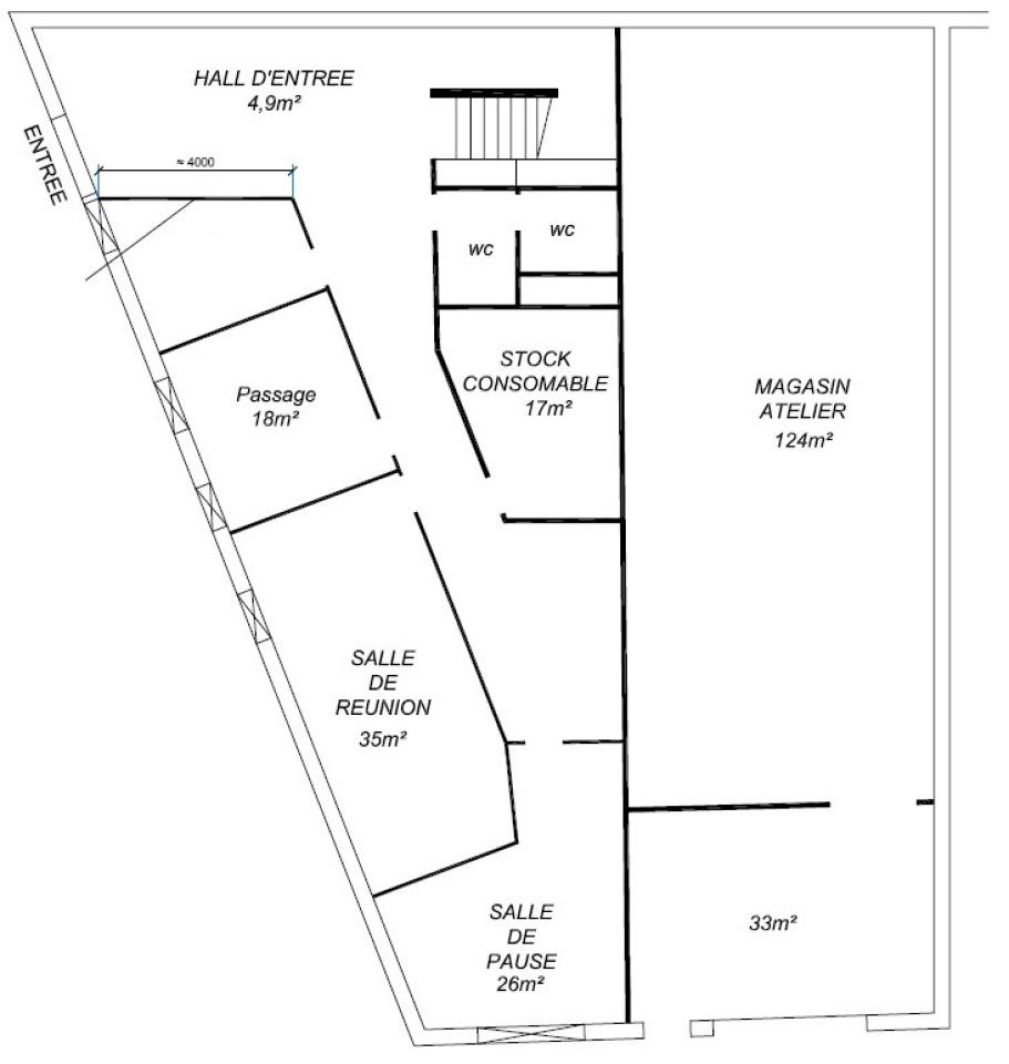
BNP PARIBAS REAL ESTATE vous propose une surface de bureaux disponible à la location sur la commune de Chartres-de-Bretagne, au sud de Rennes.
Au sein d'un ensemble immobilier, devenez locataire de cette cellule d'environ 450 m² répartie sur deux niveaux :
360 m² de bureaux individuels et open-space, ainsi qu'une salle de pause ;
110 m² de stockage accessible par une porte sectionnelle de plain-pied.
Cet actif à la location comprend des places de parking privatives.
Vous pourrez accéder à cette cellule par la rocade sud de Rennes, à 5min.
Services & prestations
Aménagements
-
Aménagement des bureaux : Cloisonnés
-
Bureaux cloisonnés : 9 + Bureaux Cloisons Vitrées à l'étage
-
Hall d'accueil : Indépendant
-
Salle informatique
-
Sanitaires : 3 Privatif(s) dont 1 PMR
Equipements
-
Câblage informatique
-
Eclairage Bureaux : Luminaires encastrés
-
Eclairage intérieur : Rampes tubes fluo.
-
Faux plafond : Dal. fibres minéral.
-
Fenêtres
-
Plinthes techniques périphériques
-
Porte d'accès plain-pied : 1
-
Puissance électrique : Tarif Bleu 36,00 Triphasé
-
Sol bureaux : Carrelage
-
Sols du bâtiment : Carrelage
Hauteurs
-
Hauteur libre : 2,50 mètre(s)
-
Hauteur sous porte plain-pied : 2,50 mètre(s) x 3,00 mètre(s) de Largeur
Prestations de service
-
Parking : 4 Places
Structure du bâtiment
-
Charpente : Métallique
-
Couverture : Bac acier isolé
Type / Etat du bâtiment
-
Etat de l'immeuble : Seconde main
-
Etat du terrain : Voirie lourde
-
Immeuble copropriété
Accès véhicules
-
Accessibilité type véhicules : Moyens porteurs










