




Location Bureau 125 m²
35700 Rennes
125 m²
172 €
HT/HC/m²/an
Disponibilité : Immédiate

Geoffroy JOSSEAUME
Description
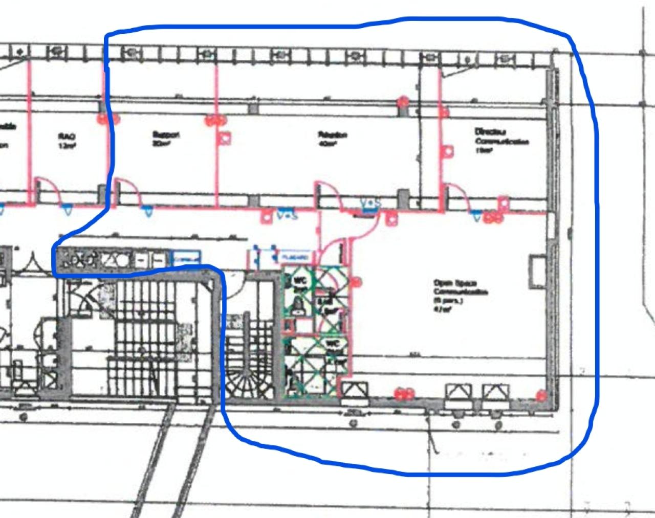
Bureaux à louer au sein de l'immeuble ENERGIS 2 - RENNES
Nous vous proposons une belle surface de bureaux en sous-location, avec une entrée indépendante.
Les locaux sont en très bon état général, bénéficient d'une belle luminosité, en étage élevé. Les bureaux sont principalement de grande taille dont un espace ouvert.
Les sanitaires sont privatifs, le local est câblé, fibré et climatisé.
4 parkings en sous sol, inclus dans le loyer.
Situé sur le boulevard d'Armorique, l'ensemble immobilier ENERGIS, composé de 2 bâtiments tertiaires de 2.560 m², 3.624 m² vous propose qualité d'aménagement et performances énergétiques.
Immeuble BBC avec patio intérieur.
Services & prestations
Aménagements
-
Aménagement des bureaux : Cloisonnés/Ouverts 1 grand espace ouvert , 1 bureau individuel, 2 grands bureaux
-
Sanitaires : 2 Privatif(s)
Equipements
-
Climatisation : Réversible
-
Câblage informatique
-
Distribution chauffage : Réversible
-
Eclairage Bureaux : Luminaires encastrés
-
Plinthes techniques périphériques
-
Sol bureaux : Moquette
-
Source chauffage : Electrique
Prestations de service
-
Sécurité : Contrôle d'accès
Type / Etat du bâtiment
-
Etat de l'immeuble : Récent










