




Location Bureau 740 m²
35700 Rennes
740 m²
Divisible dès 184 m²
Loyer sur demande
Disponibilité : Immédiate

Geoffroy JOSSEAUME
Description
BUREAUX À LOUER - ENERGIS 2 - RENNES
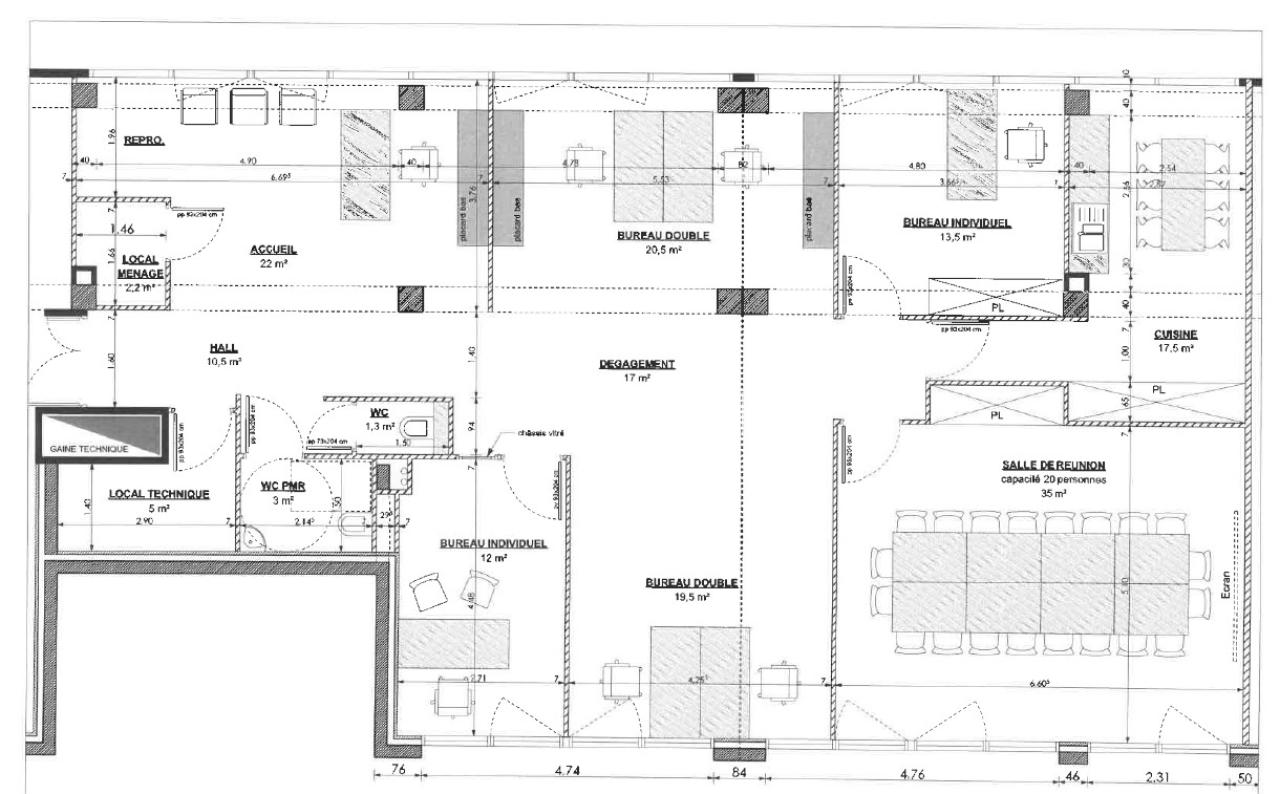
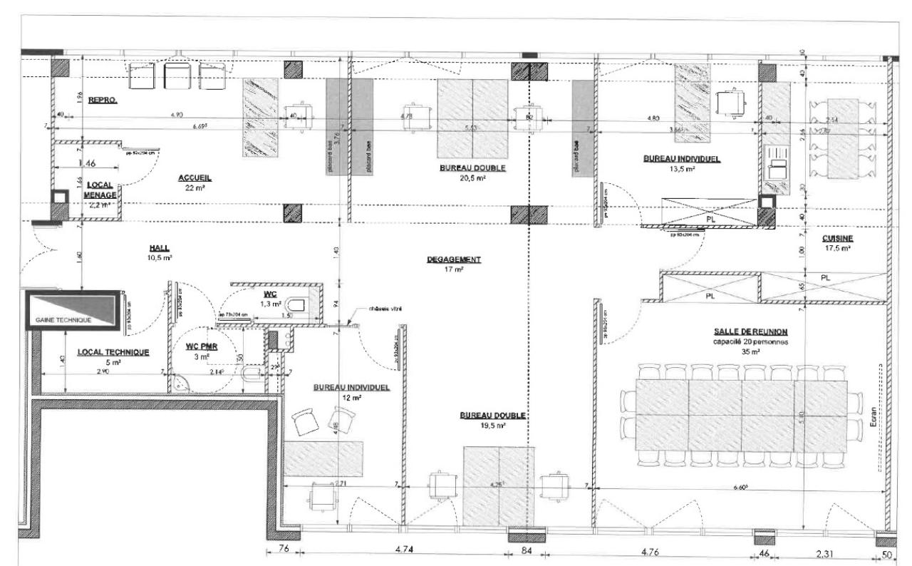
Nous vous proposons à la location une surface totale de 740 m² divisibles en 3 lots à partir de 184 m² au RDC, dans un immeuble récent.
Les locaux sont en très bon état général, bénéficiant d'une climatisation réversible, câblés et cloisonnés. Chaque lot possède de nombreux bureaux de différentes tailles, d'un point d'eau cuisine et des sanitaires privatifs.
Des parkings complètent ce bien en sous-sol du bâtiment.
Situé sur le boulevard d'Armorique, l'ensemble immobilier ENERGIS, composé de 2 bâtiments tertiaires de 2.560 m², 3.624 m² vous propose qualité d'aménagement et performances énergétiques.
Immeuble BBC avec patio intérieur. Bureaux livrés aménagés cloisonnés climatisés.
Cette offre est disponible à la location ainsi qu'à la vente.
Services & prestations
Aménagements
-
Aménagement des bureaux : Cloisonnés/Ouverts
-
Salle informatique
-
Sanitaires : Privatif(s)
Equipements
-
Climatisation : Réversible
-
Câblage informatique
-
Distribution chauffage : Réversible
-
Eclairage Bureaux : Luminaires encastrés
-
Plinthes techniques périphériques
-
Sol bureaux : Moquette
-
Source chauffage : Electrique
Prestations de service
-
Sécurité : Contrôle d'accès
Type / Etat du bâtiment
-
Etat de l'immeuble : Récent
Informations complémentaires
-
Cuisines










