




Location Bureau 406 m²
35000 Rennes
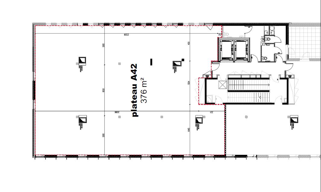
406 m²
Divisible dès 203 m²
140 €
HT/HC/m²/an
Disponibilité : Immédiate

Geoffroy JOSSEAUME
Description
RENNES
ATALANTE CHAMPEAUX
Situé au sein de la dynamique zone tertiaire Atalante Champeaux, à l'ouest de Rennes et bénéficiant d'un visuel fort sur la rocade, très belle surface de bureaux neuve d'environ 405 m². Locaux à la location, divisibles, livrés aménagés non cloisonnés et climatisés.
10 emplacements de parkings complètent ce bien, inclus dans le loyer.
La ZAC Atalante Champeaux (30 ha), à l'ouest de Rennes, est située à quelques minutes de l'aéroport et de la gare du TGV Atlantique et regroupe un ensemble d'activités telles qu'un pôle de recherche, un complexe hospitalo-universitaire, des entreprises oeuvrant en relation avec l'école d'agronomie, des activités économiques, des équipements et des services.
Restaurants, hôtels, salles de sports, desserte en bus, et station de métro à proximité.
Services & prestations
Aménagements
-
Accueil
-
Accès Pers. Mobilité Réduite : Ascenseur
-
Aménagement des bureaux : Aménagés et équipés
-
Hall d'accueil
-
Sanitaires : Parties communes
Equipements
-
Ascenseurs : 2
-
Climatisation : Réversible 3 tubes
-
Distribution chauffage : Réversible
-
Distribution climatisation : Cassettes plafonnières avec commande individuelle par bureau
-
Eclairage Bureaux : Luminaires encastrés LED, par détection de présence et gradation
-
Faux plafond : Dal. fibres minéral. 60x60
-
Fenêtres : Menuiseries alu laqué
-
Plinthes techniques périphériques : 3 prises tous les 2.60ml
-
Production climatisation : Autonome
-
Revêtement mural : Type toile de verre
-
Sol bureaux : Moquette
-
Source chauffage : Pompes à chaleur
-
Type de chauffage : Individuel
Prestations de service
-
Parking : 156 Places dont 108 en sous sol
-
Restauration : A proximité
-
Sécurité : Contrôle d'accès
Extérieurs
-
Terrasses - jardins
Type / Etat du bâtiment
-
Etat de l'immeuble : Neuf
-
Etat des locaux : Neuf
-
IGH / Code du travail : Code du travail
Informations complémentaires
-
Brise soleil orientables et motorisés (façades sud et ouest)










