




Location Bureau 973 m²
35700 Rennes
973 m²
Divisible dès 200 m²
à partir de 160 €
HT/HC/m²/an
Disponibilité : Immédiate

Geoffroy JOSSEAUME
Description
RENNES
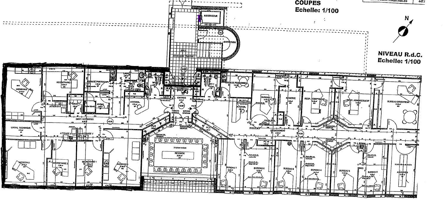
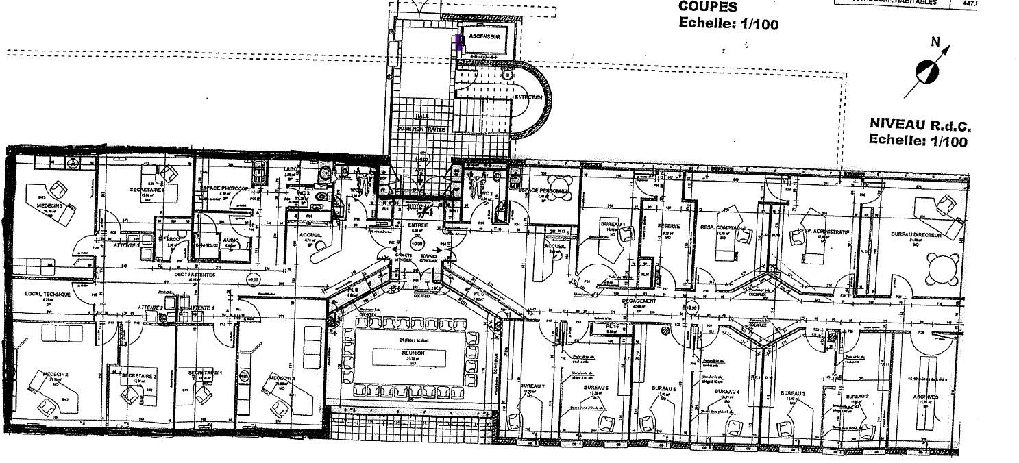
Nous vous proposons à la location deux surfaces de 973m² au rdc et au 2e étage divisibles à partir d'environ 200m².
Les Locaux modulables sont avec 15 bureaux fermés, PMR, double sanitaires privatifs et une grande salle de réunion au second étage. Lot climatisé en réversible.
Au RDC le local sera refait à neuf en espace ouvert principalement avec sanitaires. le local possède 1 Porte de sortie.
Parfait pour une profession libérale.
29 parkings complètent les biens.
En Bordure de la route de fougères au nord-est (axe Rennes-Caen) de la métropole, le Parc Tertiaire de Saint Sulpice s’inscrit dans le prolongement d’Atalante Beaulieu et de Via Silva.
Ce parc tertiaire est composé de plusieurs Immeubles de type R+2 et R+3 et accueille majoritairement des entreprises des nouvelles technologies de l’information et communication en synergie avec les zones d’activités voisines.
Le Parc bénéficie également d’un environnement agréable avec la proximité immédiate du Parc de Loisirs des Gayeulles et d’un pôle commercial et de services « LES LONGS CHAMPS » offrant restauration, hôtels, commerces et salles de sport.
Services & prestations
Aménagements
-
Accès Pers. Mobilité Réduite
-
Aménagement des bureaux : Cloisonnés 15 bureaux cloisonnés
-
Salle informatique
-
Sanitaires : 2 Privatif(s) par étage
Equipements
-
Câblage informatique
-
Eclairage Bureaux : Luminaires encastrés
-
Faux plafond : Dal. fibres minéral.
-
Fenêtres : Double vitrage
-
Plinthes techniques périphériques
-
Sol bureaux : Moquette
Type / Etat du bâtiment
-
Etat des locaux : Très bon état
Informations complémentaires
-
1 grande salle de réunion au 2e étage










