




Location Bureau 127 m²
44800 Saint-Herblain
127 m²
à partir de 155 €
HT/HC/m²/an
Disponibilité : Immédiate

Damien ROBERT
Description
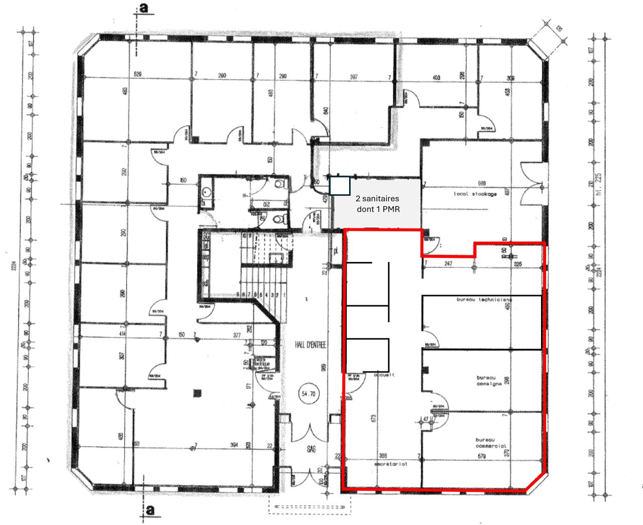
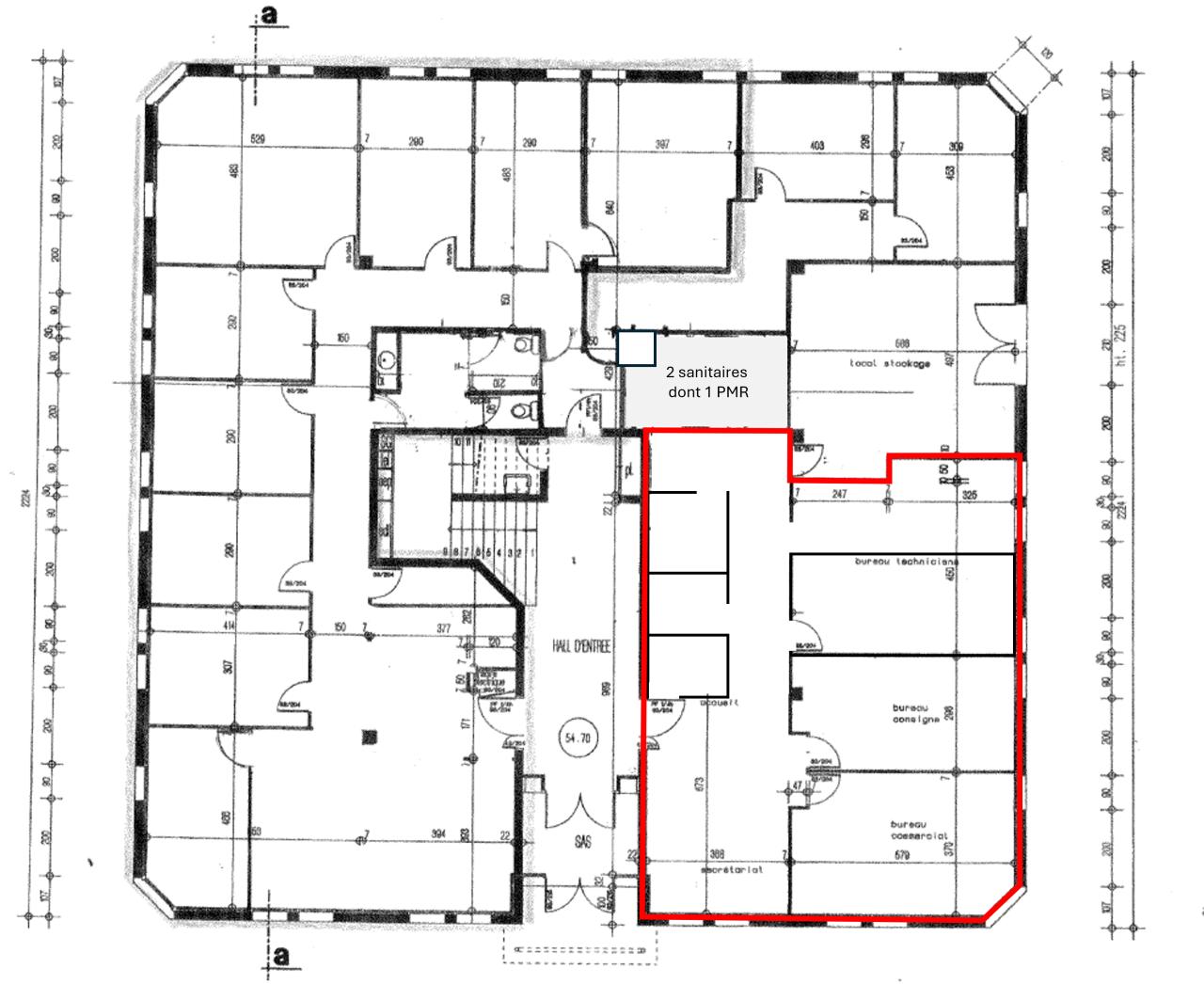
ST HERBLAIN - PETIT IMMEUBLE INDEPENDANT - SURFACE EN RDC
BUREAUX A LOUER
BNP Paribas Real Estate vous propose une surface de bureaux à louer en rezdechaussée au sein d'un petit immeuble indépendant, en excellent état et déjà cloisonné.
Les locaux bénéficient de
Une climatisation réversible
Sanitaires en parties communes
5 places privatives dont une équipée d'une borne électrique
Un local vélos sécurisés
Situé à proximité immédiate de l'axe N444, l'ensemble immobilier Berlioz offre un environnement tertiaire soigné, un très bon ratio parking et une accessibilité rapide vers les principaux axes de SaintHerblain.
Une solution fonctionnelle et prête à l'emploi pour une entreprise recherchant des bureaux à louer dans un secteur pratique, visible et qualitatif.
Services & prestations
Aménagements
-
Accès Pers. Mobilité Réduite
-
Aménagement des bureaux : Cloisonnés
-
Sanitaires : 3 Privatif(s)
Equipements
-
Climatisation : Air rafraîchi
-
Câblage informatique
-
Eclairage Bureaux : Luminaires encastrés
-
Plinthes techniques périphériques
-
Sol bureaux : Moquette
-
Type de chauffage : Individuel
Prestations de service
-
Sécurité : Contrôle d'accès badge
Type / Etat du bâtiment
-
Etat de l'immeuble : Etat d'usage
-
Etat des locaux : Etat d'usage, Très bon état
Informations complémentaires
-
Local vélos sécurisé










