




Location Bureau 201 m²
44800 Saint-Herblain
201 m²
à partir de 145 €
HT/HC/m²/an
Disponibilité : Immédiate

Anne-Charlotte ZABEL
Description
SAINT HERBLAIN BAGATELLE
GREEN PARK 3- A LOUER / A VENDRE
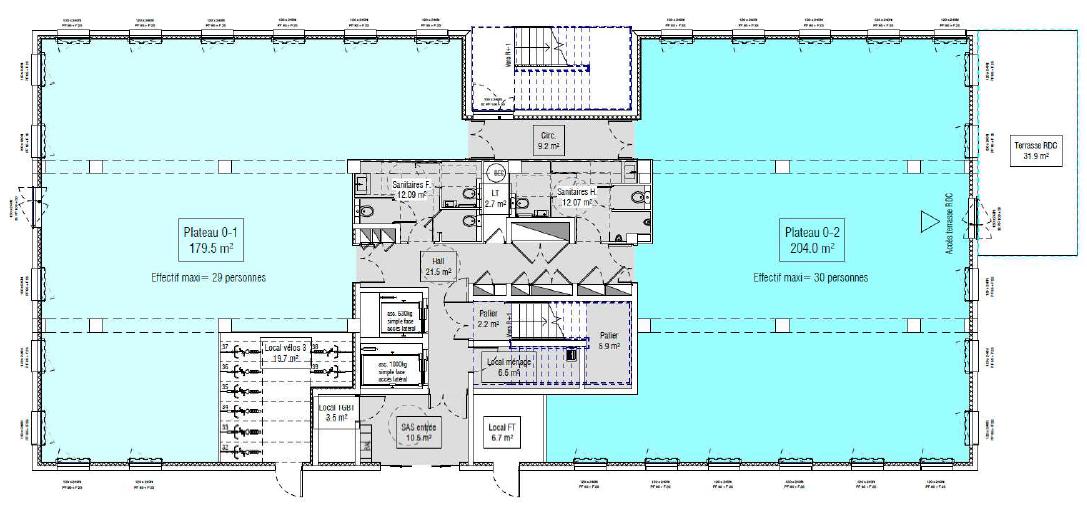
A Saint-Herblain, dans le nouveau quartier tertiaire "Bagatelle", dernière surface disponible de 201 m² au RDC d'un immeuble labellisé Bâtiment Basse Consommation.
BNP Paribas Real Estate vous propose à la location cet espace de bureaux livré aménagé non cloisonné.
Excellent ratio de parking : 5 places privatives, dont 1 place avec borne de recharge pour véhicule électrique.
Installez votre entreprise dans ce nouvel écoquartier au Nord de Saint-Herblain, à seulement 15 minutes du centre-ville de Nantes.
A toute proximité du terminus du tramway ligne 3 (arrêt : Marcel Paul) et des accès périphériques Ouest et Nord, de nombreuses entreprises et groupes d'enseignements supérieurs ont déjà choisi ce parc tertiaire.
Services & prestations
Aménagements
-
Accès Pers. Mobilité Réduite : Ascenseur
-
Aménagement des bureaux : Espaces Ouverts
-
Sanitaires : Parties communes
Equipements
-
Ascenseurs : 2
-
Climatisation : Réversible
-
Eclairage Bureaux : Luminaires encastrés
-
Faux plafond : Dal. fibres minéral.
-
Plinthes techniques périphériques
-
Sol bureaux : Moquette
Hauteurs
-
Hauteur sous-plafond : 2,70 mètre(s)
Prestations de service
-
Parking
Extérieurs
-
Terrasses - jardins
-
Trame de façade : 16,00 mètre(s)
Normes, Certifications et Labels
-
Label actuel : BBC & RT 2012
Type / Etat du bâtiment
-
Etat de l'immeuble : Neuf
-
Etat des locaux : Neuf










