




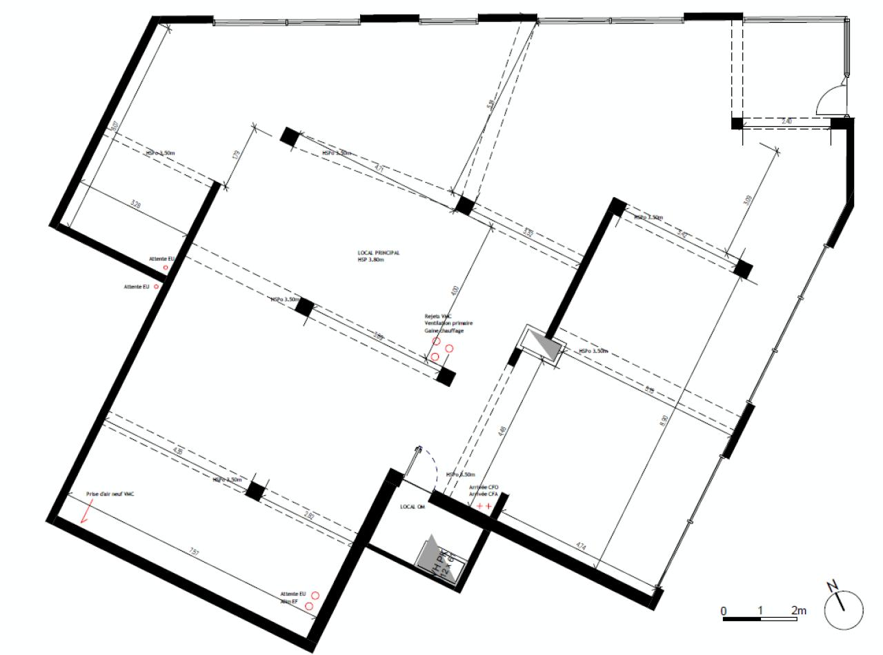
Location Bureau 269 m²
44800 Saint-Herblain
269 m²
215 €
HT/HC/m²/an
Disponibilité : Immédiate

Damien ROBERT
Description
IMMEUBLE NEUF - RDC - BELLE VISIBILITÉ
BUREAUX AVEC VITRINE À LOUER
BNP PARIBAS RE vous propose une surface PMR de 269 m² SUBL en RDC avec accès direct depuis la rue. Les locaux livrés brut de béton pourront s'adapter à tout type de projet.
Son emplacement lui offre une belle visibilité sur le boulevard, le place à 15 minutes seulement de l'aéroport, et vous permet de relier très rapidement le périphérique nord, ou d'accéder au centre ville en 15 minutes grâce au Chronobus (arrêt en pied d'immeuble).
--- Honoraires commercialisation HT charge preneur : 30 % du loyer annuel HT HC ---
Services & prestations
Aménagements
-
Accès Pers. Mobilité Réduite
Type / Etat du bâtiment
-
Etat des locaux : Brut de béton
Informations complémentaires
-
Livré brut de béton










