




Location Bureau 147 m²
45000 Orléans
147 m²
137 €
HT/HC/m²/an
Disponibilité : Immédiate

Severine PRO
Description
ORLEANS FAUBOURG BANNIER
BUREAUX À LOUER
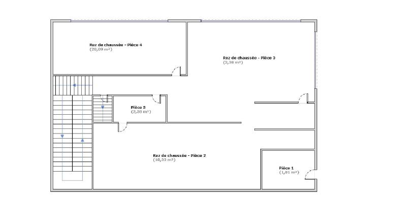
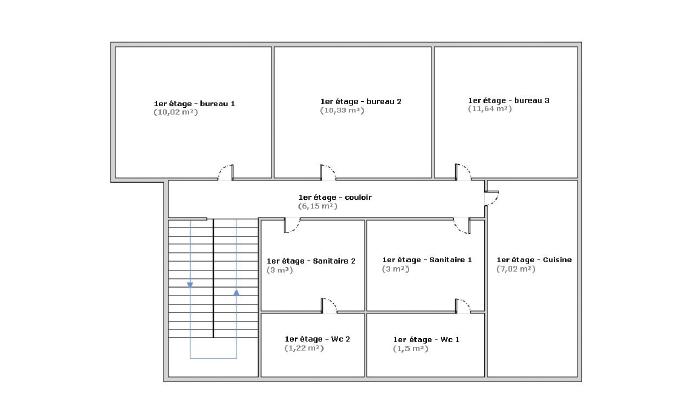
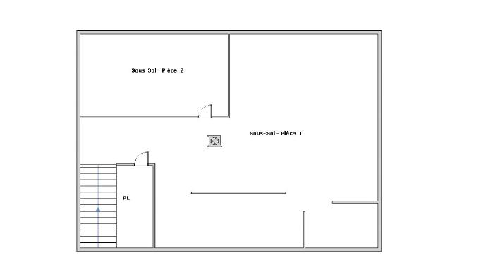
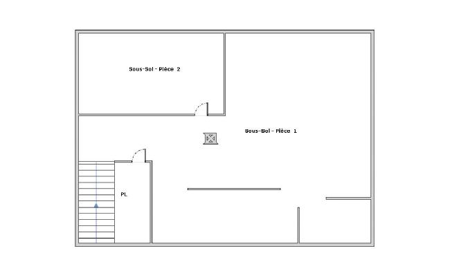
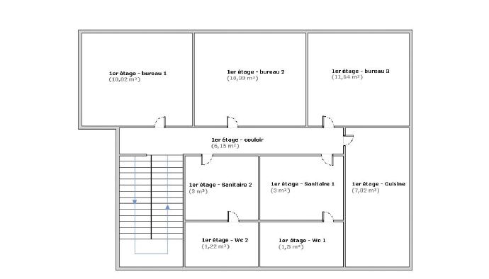
Bureaux commerciaux d'angle, baies vitrées donnant sur les deux rues se composant de la façon suivante, en RDC, un accueil et un bureau, en R+1, deux bureaux, un double sanitaire, espace pause, en sous sol, une grande réserve.
Sur axe passager, bureaux en rdc et 1er étage.
Proche cité administrative Coligny.
Accessible en bus
Proximité de la Cité Administrative Coligny.
Contactez nous pour plus de renseignements complémentaires
Services & prestations
Aménagements
-
Accueil
-
Accès Pers. Mobilité Réduite
-
Aménagement des bureaux : Cloisonnés/Ouverts
-
Bureaux cloisonnés : 4
-
Sanitaires
Equipements
-
Climatisation
-
Câblage informatique
-
Distribution chauffage : Réversible
-
Eclairage Bureaux : Luminaires encastrés LED
-
Faux plafond : Dal. fibres minéral.
-
Sol bureaux : Carrelage et Parquet en R+1
Type / Etat du bâtiment
-
Etat de l'immeuble : Seconde main
-
Immeuble indépendant










