




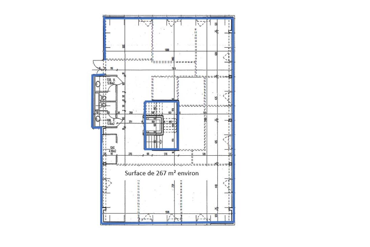
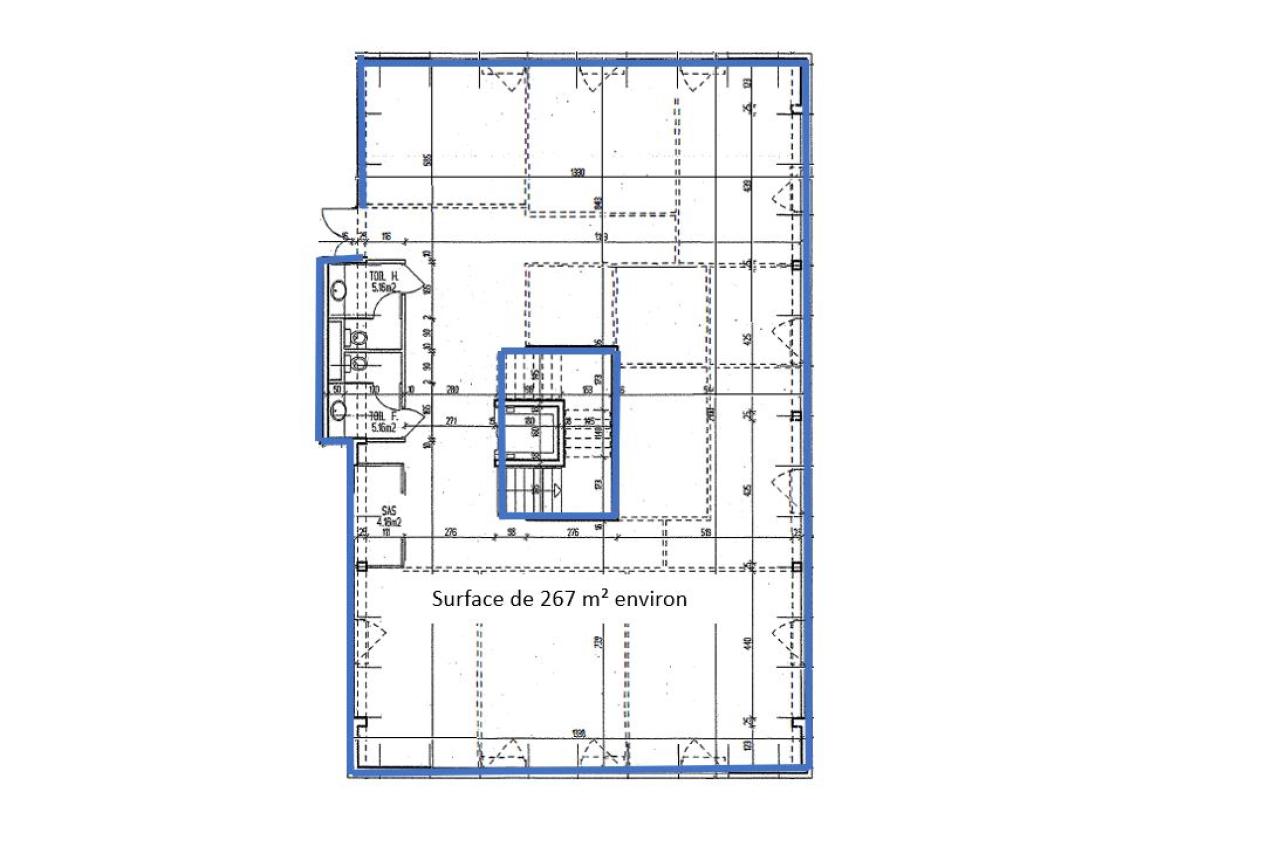
Location Bureau 267 m²
54320 Maxéville
267 m²
130 €
HT/HC/m²/an
Disponibilité : Immédiate

Florine DEVEAUX
Description
A LOUER - BUREAUX
Site Saint-Jacques II réf OLBUR2111844
Une surface de bureaux d'environ 270 m², cloisonnée et climatisée proposée à la location, dans un immeuble moderne du Site Saint-Jacques II. Parking. Accès direct A31.
LOCATION - BUREAUX - 270 m² - MAXÉVILLE
Site tertiaire dynamique et récent, situé au nord ouest de l'agglomération, le site d'activités Saint-Jacques II est très apprécié par les entreprises.
Le lot bénéficie d'un aménagement de qualité et il est entièrement câblé. Idéal pour recevoir des clients, il dispose d'une entrée privative, accessible par une porte automatique.
La zone d'activités Saint Jacques II se situe au Nord-Ouest de l'agglomération de Nancy, à Maxéville. C'est un site tertiaire récent qui regroupe plus de 170 entreprises, ce qui en fait une des zones les plus dynamiques de Nancy. Elle bénéficie d'une desserte routière efficace en étant directement connectée à l'échangeur autoroutier reliant Metz, Luxembourg, Paris et Strasbourg.
À proximité de la zone d'activités se trouvent plusieurs commerces et points de restauration (entre 5 et 10 min en voiture) : Lidl, Action, Boulangerie Ange, Grill Steakhouse, Grand Frais, McDonald's, Domino's Pizza, etc.
Accessibilité :
-Autoroutes A31 et A33 (relient Metz en 50 min, Luxembourg et Strasbourg en 2, Paris en 4h)
-Lignes de bus n°13 et Tempo 2
-Gare de Nancy : à 15 min en voiture
-Gare Lorraine TGV : à 30 min en voiture
Services & prestations
Aménagements
-
Accès Pers. Mobilité Réduite
-
Aménagement des bureaux : Cloisonnés
-
Salle informatique
-
Sanitaires : Privatif(s)
Equipements
-
Climatisation : Réversible
-
Distribution climatisation : Encastrés
-
Eclairage Bureaux : Luminaires encastrés
-
Faux plafond
-
Sol bureaux : Moquette
-
Source chauffage : Electrique
-
Type de chauffage : Individuel
Type / Etat du bâtiment
-
Etat des locaux : Etat d'usage
Informations complémentaires
-
SAS Entrée










