




Location Bureau 200 m²
54000 Nancy
200 m²
170 €
HT/HC/m²/an
Disponibilité : Immédiate

Florine DEVEAUX
Description
A LOUER - BUREAUX
NANCY CENTRE-VILLE - OLBUR2640045
LOCATION - BUREAUX - 200 m² - CENTRE VILLE - NANCY (54)
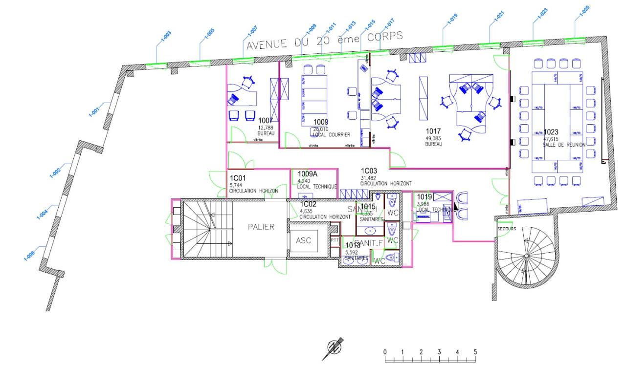
Bnp Paribas Real Estate vous propose à la location, une surface de bureaux de 200 m² environ, au 1er étage d'un immeuble à l'angle d'un quartier passant :
Surface : 200 m²
Loyer annuel : 34 000 HT soit 170,00 /m²/an
Charges annuelles : 10 000,00 HT
Paiement du loyer : Trimestriel et d'avance
Dépôt de garantie : 3 mois de loyer HT
Bail commercial 3/6/9 ans
Taxe foncière : 4 000,00 à la charge du preneur
Localisation :
Au 1er étage d'un immeuble de standing, une surface de bureaux de 450 m² environ proposé à la location. Idéal pour le tertiaire, cet emplacement, aménagé, cloisonné et climatisé se situe dans le prolongement de la rue Saint Jean.
Profitez de cette proximité et laissez vous guider vers la place Stanislas et la vieille ville à 5 min à pied, ou encore de son centre-ville et son marché couvert, ses commerces mais aussi ses nombreux restaurants. A deux pas du quartier « Ile de Corse » et des quais Sainte Catherine, choisissez un emplacement idéal pour votre activité.
Accessibilité :
Axes autoroutiers A31 et A33 à proximité
Transports en commun :
Arrêts Saint-Georges, Division de Fer, et Place Charles III - Point Central desservis par plusieurs lignes de bus et le tram (T1)
Gare Nancy (env. 1km) accessible à pieds et en transports
Services et commodités :
Restauration :
Fast-food : Berliner, Food'Lab, Koboon, Tizi et d'autres
Restaurants / brasseries : Bistrot Georgette, Brasserie Saint-George, Crok & Rock, L'Escapade,
Place Stanislas et Place Carnot accessibles à pied
Salles de sport : Basic Fit / Keepcool Nancy
Nombreuses enseignes à proximité immédiate au centre-ville
Services & prestations
Aménagements
-
Accès Pers. Mobilité Réduite : Ascenseur
-
Bureaux cloisonnés
-
Sanitaires
Equipements
-
Climatisation : Air rafraîchi
-
Câblage informatique
-
Eclairage Bureaux : Luminaires encastrés
-
Faux plafond : Dal. fibres minéral.
-
Fenêtres : Double vitrage / ouveture à la française
-
Plinthes techniques périphériques
-
Sol bureaux : Moquette/Parquet
-
Source chauffage : Gaz
-
Type de chauffage : Collectif
Type / Etat du bâtiment
-
Etat de l'immeuble : Etat d'usage
-
Etat des locaux : Etat d'usage
Informations complémentaires
-
Kitchenette, Vitrine
-
3 façades visibles, Placards encastrés
-
Banque d'accueil










