




NOUVELLE ERE
1 Rue de la Performance
59650 Villeneuve-d'Ascq
265 m²
190 €
HT/HC/m²/an
Disponibilité : Immédiate

Etienne DARTOIS
Description
Location de bureaux sur Villeneuve d'Ascq.
Véritable bâtiment « signal », Nouvelle Ère bénéficie d’une visibilité stratégique en bordant le rond-point des performeurs, face au Campus Décathlon.
Son architecture avant-gardiste apporte une nouvelle identité à l’environnement tout en s’y intégrant parfaitement. Un bâtiment « symbole », mais surtout contributeur d’un nouvel élan urbain au site.
Mixité des matériaux, terrasses végétalisées et traitement paysager contribuent ainsi à créer un lieu inédit.
NOUVELLE ERE - VILLENEUVE D'ASCQ
L'immeuble NOUVELLE ERE bénéficie d'une situation géographique idéale permettant aux utilisateurs d'avoir accès à une offre de services riche et diversifiée.
Nous vous proposons une surface de bureaux à louer.
Accessibilités :
TGV de Lille à 7 min en métro (5 stations)
Gare « Lille Flandres » à 8 min en métro (6 stations)
Station métro « Les Pres» à 14 min à pied (M2)
Accès routiers à proximité immédiate (VRU, A1, A22, A23, A25, A27)
Arrêt de bus « Campus » en pied d'immeuble (Ligne 13 direction Lille Fives <--> V. d'Ascq HDV)
Aéroport « Lille-Lesquin » à 14 min en voiture
Prestations :
Bâtiment bois
Climatisation réversible
Ascenseur
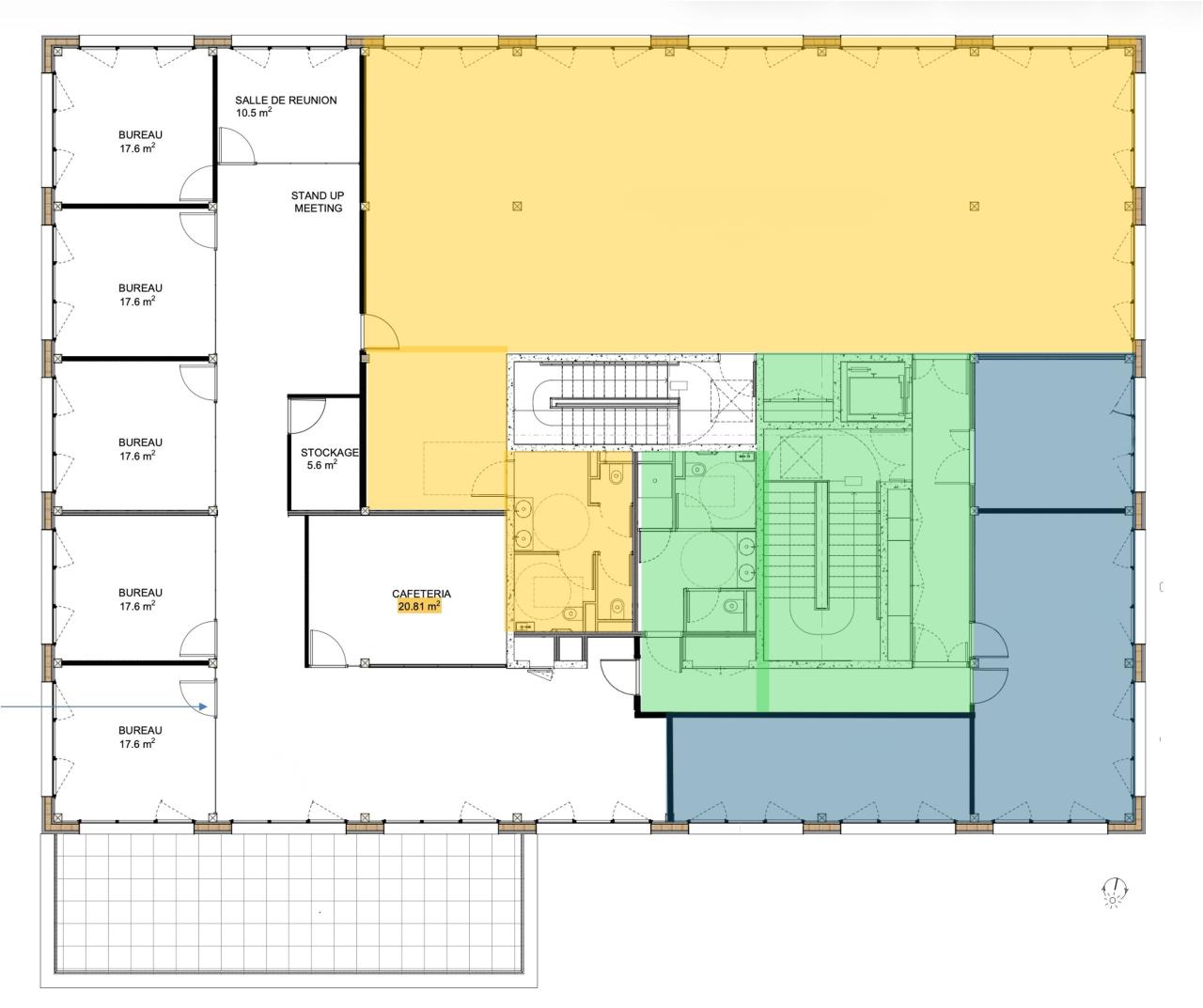
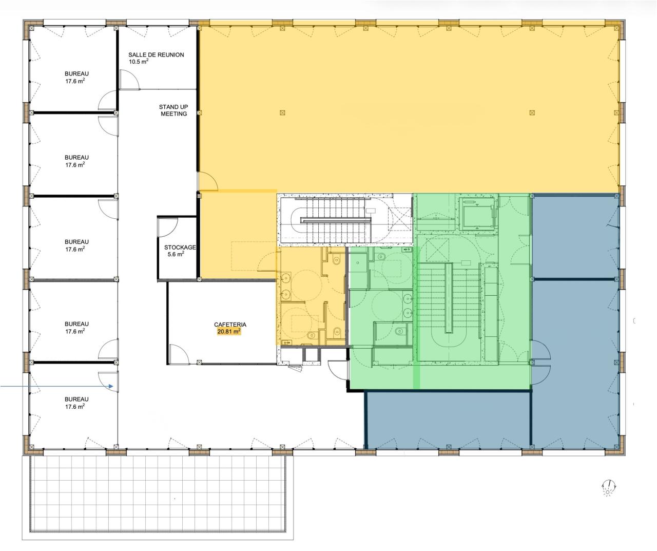
Plateau aménagé : salle de fitness, salles de réunion, open space, cuisine, bureaux, accueil, douche, etc..
Fenêtre en aluminium
Borne de recharge pour véhicules électriques
Accès PMR
Toutes nos offres de bureaux sur https://www.bnppre.fr/bureau/nord-59/
Services & prestations
Equipements
-
Climatisation : Ventilation double flux
-
Sol bureaux : Moquette
Type / Etat du bâtiment
-
Etat de l'immeuble : Neuf
-
Etat des locaux : Neuf, Très bon état
-
Immeuble indépendant
Informations complémentaires
-
Plancher technique, Pompe à chaleur réversible, Structure bois
-
Bâtiment en bois, Cloisons iso-phoniques, Fenêtres en aluminium
-
Bornes de recharge pour véhicules électriques










