




Location Bureau 1 691 m²
69760 Limonest
1 691 m²
Divisible dès 336 m²
à partir de 125 €
HT/HC/m²/an
Disponibilité : Immédiate

Odine KLEIN
Description
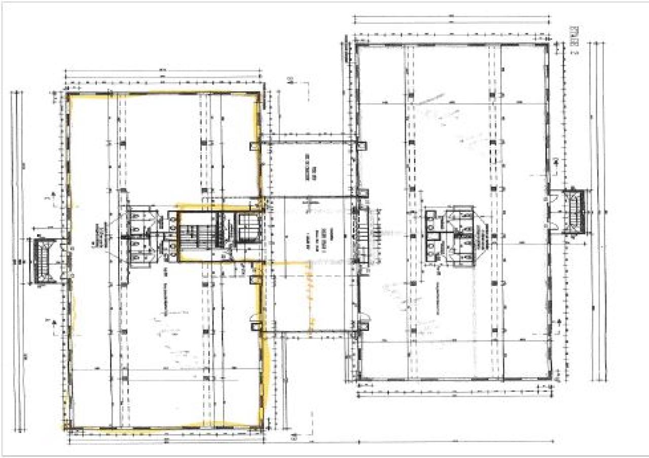
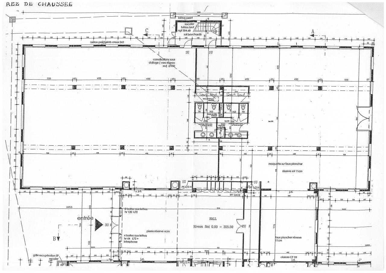
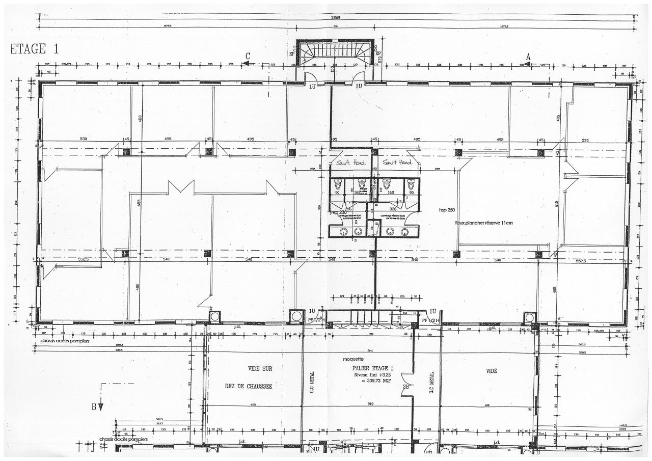
LE BOIS DES COTES 1
69 - LIMONEST
Au coeur de la TECHLID, dans un bel immeuble de bureaux récent dans un parc arboré et clos, nous vous proposons une surface de bureaux avec parkings extérieurs. Hall-atrium sous verrière. Prestations haut de gamme.
Le pôle économique ouest de la métropole lyonnaise comprend 14 communes: Champagne-au-Mont-d'Or, Charbonnières-les-Bains, Craponne, Dardilly, Ecully, Francheville, Marcy-l'Etoile, La Tour de Salvagny, Limonest, Lissieu, Saint- Cyr-au-Mont-d'Or, Saint-Didier-au-Mont-d'Or, Saint-Genis-les-Ollières, Tassin-la-Demi-Lune. L’ensemble de ces communes comptent près de 120 000 habitants.
Proche des Monts d'Or et des Monts du Lyonnais, ce territoire offre un cadre de vie et de travail de qualité, tout en étant au cœur d'une infrastructure de transport performante. Le secteur est parfaitement desservi par les grands axes de communication tels que la nouvelle route Métropolitaine M6, la liaison A89-M6, la rocade nord et les routes RD 306 et 307. Les transports en commun vous permettent également de rejoindre différents pôles d'activités via de nombreuses lignes de bus, notamment depuis la station de métro Gare de Vaise.
A forte domination tertiaire, la structure économique de Techlid se distingue par une variété de tailles d’entreprises et de secteurs d'activité. Des groupes leaders sur le marché, des start-up à la croissance exponentielle, de jeunes pépites en devenir, des entreprises traditionnelles au savoir-faire reconnu ... trouvent un terreau fertile pour leur développement et décident de se développer dans cette région. Environ 12 000 sociétés comptant 64 000 emplois sont implantées sur Techlid, dont notamment le Groupe SEB, Blédina, Materne, LDLC, Sève, Manitowoc, Bureau Veritas, Crédit Agricole….
Parmi les domaines d’activité les plus dynamiques, on trouve :
- l’informatique et le numérique avec la présence de Visiativ, Sopra Steria, LDLC, Dimo Software, ADP, Sword, DC For Data, Carl Software, NC2…
- l’ingénierie et les bureaux d’études avec la présence de Bureau Veritas, Apave, Okeenea, Adetel, BVQI, Sun Power, Acoem, Archigroup, Groupe Zebra, I-Ten, Piman, Algoé consultants, Byblos…
- l’alimentaire avec la présence de Blédina, Materne, Brake, Nutrisens, Sève et son Musée du Chocolat « le Musco », Mille et Un Repas, Duvel, Karen Chocolat, Wanimo…
- les biotechnologies, la chimie et les produits médicaux avec la présence de Sanofi Pasteur, bioMérieux, Belchim, Magnisense, Charles River, Antagène, Spineway, Arthrex, Thermo-Fisher, Cair LGL, GM Cosmetics…
- les machines, équipements et biens de consommation avec la présence de Mixel, Dinak, Barrière Automatique, VDI Group, Cup Services…
- le BTP avec la présence de Manitowoc, Neolife, Porcelanosa, Spie,…
De nombreuses entreprises évoluant dans des horizons différents créent également cette ressource vivante: TFMO, Boldoduc, Huttopia, Tesla, Emalec, Amoena, Monabee, Agripousse, Baguette Academy, Tilkee, in2Bones ... Et aussi les grands comptes: Sanofi, Biomérieux, Groupe SEB, le siège du Crédit Agricole, les start-ups, les pépites et de nombreuses petites entreprises.
Les entreprises de ce secteur privilégient également les établissements d’enseignement supérieur, les organisations scientifiques et techniques et les instituts de recherche. Ces structures peuvent les accompagner dans des projets innovants et constituer un vivier de talents pour leur recrutement. L'école centrale de Lyon, le Centre des hautes études industrielles, l'Institut technique et chimique, l'ISO Osteo School of Osteopathy, l'Institut Paul Bocuse, l'Institut français du textile et de l'habillement, l'EKLYA Company School, le campus Vet'Agro Sup ... contribuent à l'influence et au dynamisme économique de le Techlid.
Le marché de l'immobilier d’entreprise est dynamique sur Techlid puisque la demande des entreprises souhaitant s’établir s’additionne aux mouvements endogènes des entreprises en croissance. Chaque année, environ 30 000 m2 de bureaux sont placés, établissant Techlid un secteur tertiaire de référence de l'agglomération lyonnaise. Si le marché des bureaux est très actif, les ressources de la construction comprennent également de nombreux secteurs d'activités pour les petites et moyennes entreprises industrielles et artisanales, ainsi que des zones commerciales offrant des services aux résidents et aux employés. Le parc immobilier s'élève à 1 200 000 m2 au total, dont 45% de bureaux, 35% de locaux d’activités et 20% de commerces.
Dans un environnement paysager et verdoyant, une attention particulière est portée à l'architecture des bâtiments pour permettre leur une bonne intégration et offrir un réel confort de travail: lignes sobres, terrasses et balcons accueillants, jardins paysagers, espaces intérieurs bénéficiant de la lumière du jour… De plus, cette l'offre qualitative est accessible à un prix moyen bien inférieur à celui de la métropole. Pour illustrer à merveille ce cadre de travail, nous pouvons parler du Parc des Puy d’Or. Situé sur la commune de Limonest, il est le dernier développement tertiaire réalisé sur Techlid. Il regroupe de nombreuses sociétés s’étant fait construire leur propre bâtiment comme, Carl Software, LDLC, Sopra, Arcoba, Le Pôle économique Ouest du Grand Lyon. Ces entreprises s’étendent sur 13 hectares de terrain.
Voici quatre bonnes raisons pour s’implanter sur l’Ouest Lyonnais :
- la qualité du secteur et de l’habitat résidentiel
- la compétitivité des entreprises et le bien-être des salariés
- la bonne desserte en infrastructures de communication (routes, rails, télécommunications)
- la présence d’une main d’œuvre qualifiée, en adéquation avec les emplois proposés
Services & prestations
Equipements
-
Ascenseurs : 2
-
Climatisation : Air rafraîchi
-
Eclairage Bureaux : Luminaires encastrés
-
Faux plafond : Dal. fibres minéral.
-
Faux plancher
-
Gestion technique centralisée
-
Sol bureaux : Moquette
-
Type de chauffage : Collectif
Prestations de service
-
Sécurité : Contrôle d'accès
Type / Etat du bâtiment
-
Etat de l'immeuble
-
Etat des locaux : Etat d'usage










