




Location Entrepôt Classe B 5 347 m²
69380 Civrieux-d'Azergues
5 347 m²
Loyer sur demande
Disponibilité : Immédiate

Nicolas MASERO
Description
CIVRIEUX-D'AZERGUES (69) - ZA DES PRÉS SECS
ENTREPÔT LOGISTIQUE - CLASSE B - À LOUER
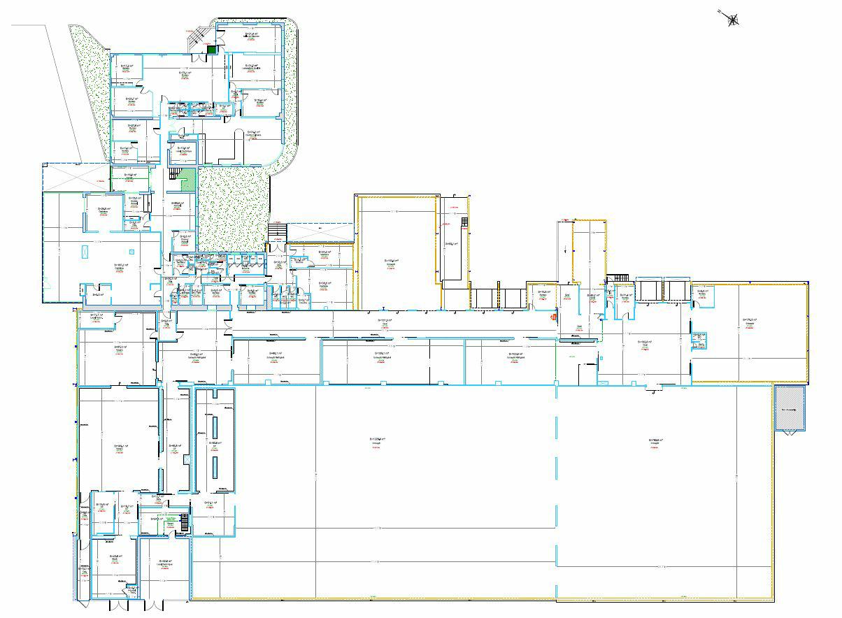
Nous vous proposons à la location un entrepôt logistique Classe B d'une superficie d'environ 5 346,80 m². Celui-ci est composé d'environ 3 655,10 m² répartis sur plusieurs cellules de stockage, et 117,70 m² de locaux techniques. Des bureaux et locaux sociaux d'environ 1 292,5 m² sont répartis sur deux niveaux et 281,5 m² de dégagement/issues de secours complètent l'ensemble. Situé aux portes des grandes agglomérations, l'entrepôt est idéalement situé : à seulement 18km des portes de Lyon et 16km de celles de Villefranche-Sur-Saône. Entrepôt racké (sol +3)
BNP PARIBAS REAL ESTATE vous propose à la location un entrepôt logistique Classe B, d'une surface totale d'environ 5 346,80 m². Le bâtiment est situé à Civrieux-d'Azergues (69) à proximité des axes routiers D385 / A89 / A6.
Disponibilité : immédiate
Caractéristiques techniques
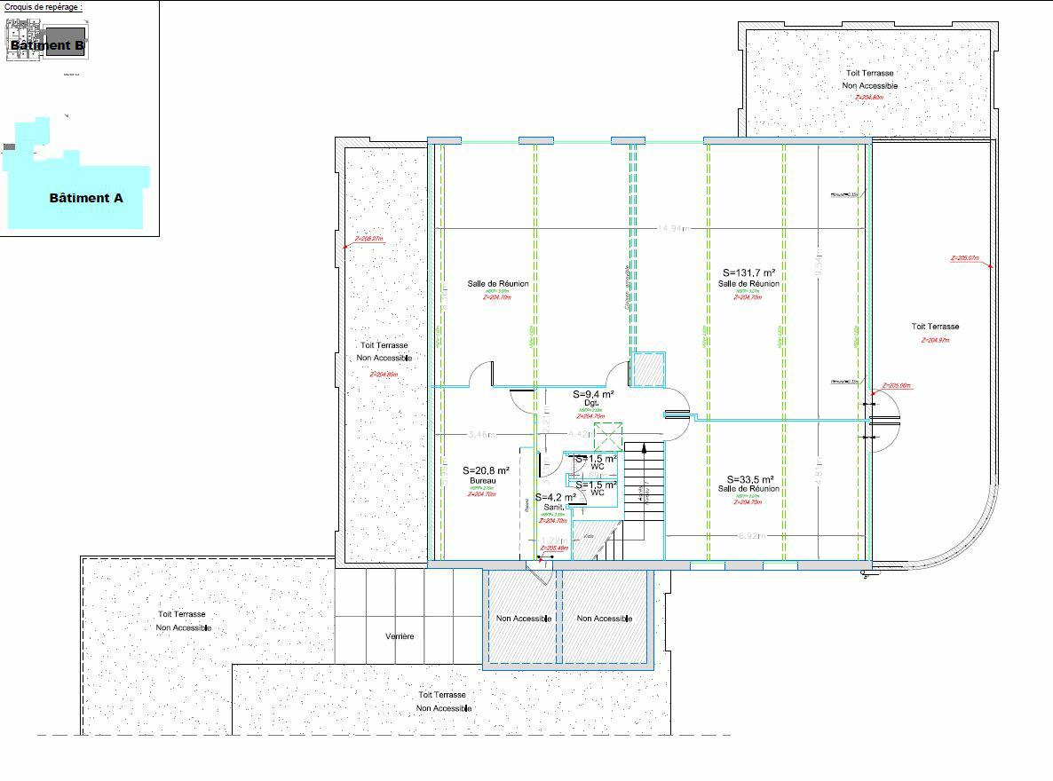
Surface bureaux : 1 292,50 m²
- Hauteur libre : 8 mètres
- Portes d'accès à quai : 4
- Portes de plain-pied :1
- Aire de manoeuvre : 27 à 34 mètres
- Charpente métallique
- Sols du bâtiment : béton
- Charges au sol : 3 tonnes / m²
- Eclairage intérieur : néons
Accessibilité
- Accès routiers : D385 / A89 / A6
- Aéroport Luxembourg à 34 km
- Gare Lyon Part Dieu à 21 km
- TER : Gare Civrieux d'Azergues à1,60 km
Pour toute information complémentaire, contactez-nous.
Services & prestations
Hauteurs
-
Hauteur libre : 8,00 mètre(s)
Type / Etat du bâtiment
-
Etat de l'immeuble : Seconde main
Structure du bâtiment
-
Charpente : Métallique
Equipements
-
Charge au sol Rdc : 3,00 tonne(s)/m²
-
Eclairage intérieur : Néon
-
Faux plafond
-
Porte d'accès plain-pied : 1
-
Porte d'accès à quai : 4
-
Racks : Entrepôt racké (sol +3)
-
Sols du bâtiment : Béton
-
Source chauffage : Gaz
Prestations de service
-
Parking : Emplacement de stationnement
Aménagements
-
Bureaux cloisonnés
-
Hall d'accueil
-
Locaux sociaux : Vestiaires , Cafétéria, Sanitaire, Douche
-
Sanitaires
Extérieurs
-
Aire de manoeuvre : De 27 à 34 mètres
-
Local de charge : Et Locaux Techniques
Informations complémentaires
-
Convecteur electrique, Voirie de circulation et terrain autour
-
Servitude ligne haute tension EDF + implantation d'un pylonne










