




Location Local d'activité 729 m²
69007 Lyon
729 m²
125 €
HT/HC/m²/an
Disponibilité : Immédiate

Amin BOUTCHAR
Description
LYON 7 (69)
Rare ! À louer sur Lyon 7 (69)!
Nous vous proposons un local d’activité rare... NEUF et dans le cœur de Lyon !
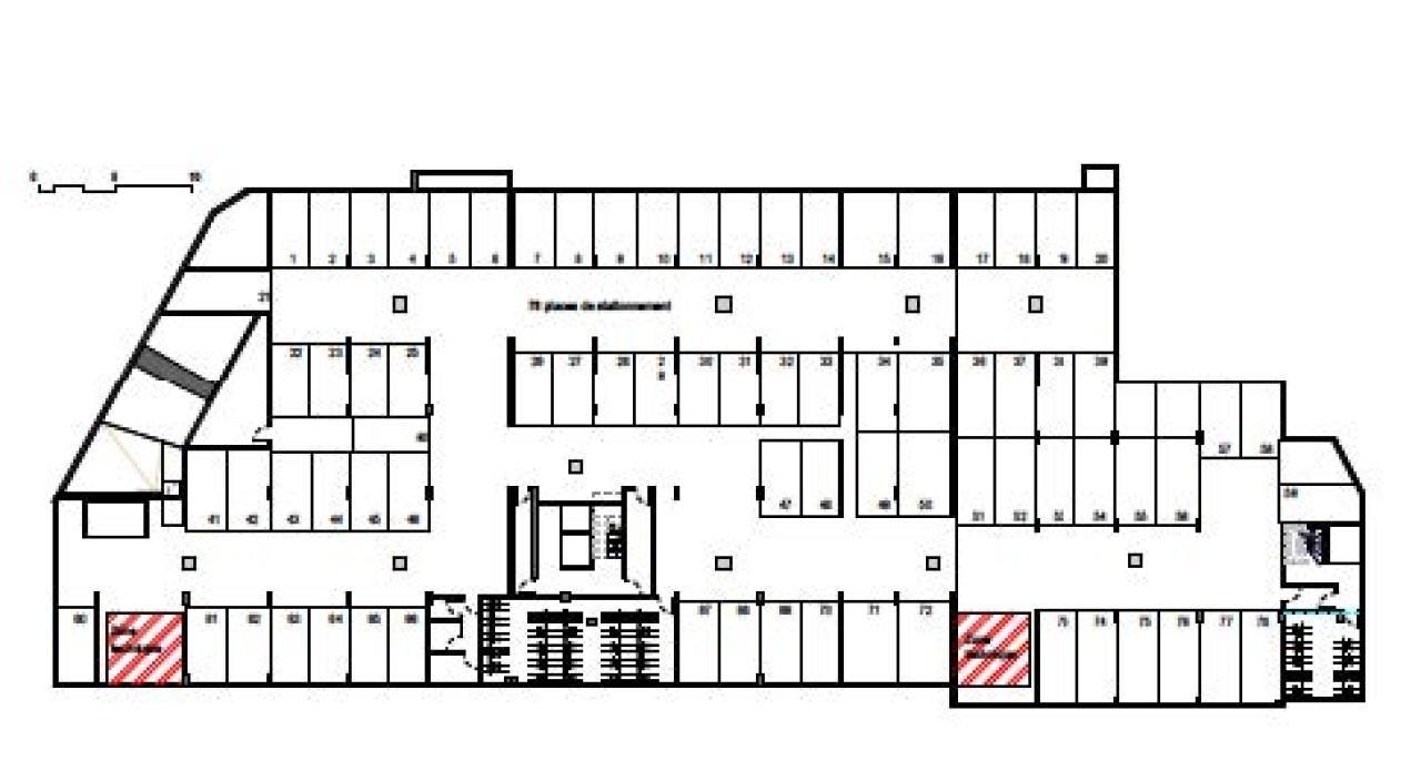
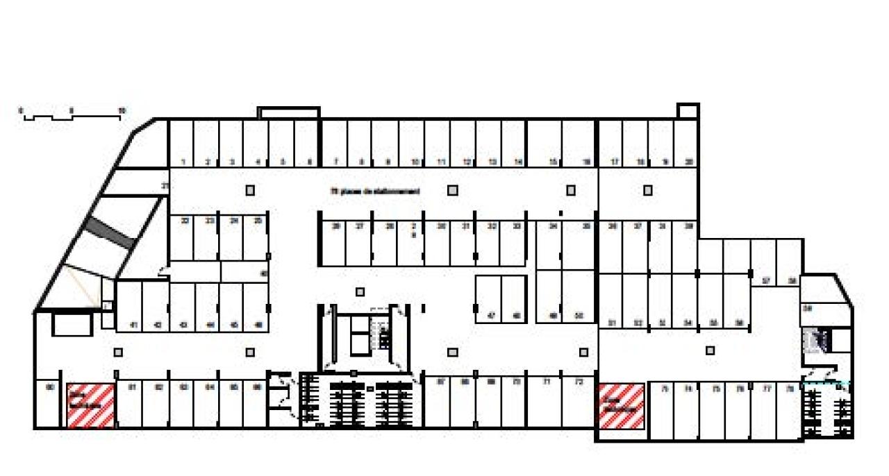
Vous trouverez 729 m2 de surface d'activité idéal pour du stockage. Bureaux disponibles en étage à partir de 116 m².
Vous souhaitez plus d’informations ? Une visite ? Nous sommes à votre disposition !
Implantés au coeur du 7e arrondissement de Lyon, ces locaux d'activités bénéficient d'un environnement urbain attractif et bien desservi. Le site profite d'une excellente accessibilité, à proximité immédiate du boulevard périphérique Laurent Bonnevay et des axes majeurs reliant le centre de Lyon, Gerland et le sud de la métropole.
Un emplacement rare dans Lyon intra-muros, idéal pour les entreprises recherchant visibilité, accessibilité, et flexibilité.
Services & prestations
Hauteurs
-
Hauteur libre : 5,45 mètre(s)
Accès véhicules
-
Accessibilité type véhicules : Tous porteurs
Equipements
-
Charge au sol Rdc : 1,00 tonne(s)/m²
-
Fluides en attente
-
Porte d'accès plain-pied : 1 Porte sectionnelle électrique 4x4,5 m
-
Sols du bâtiment : Béton
Type / Etat du bâtiment
-
Etat de l'immeuble : Neuf
-
Etat des locaux : Neuf
-
Etat du terrain : Goudronné
-
Immeuble copropriété
Structure du bâtiment
-
Charpente : Béton
-
Couverture : Béton
Prestations de service
-
Parking
-
Sécurité : Site entièrement clos et sécurisé
Extérieurs
-
Terrasses - jardins
Normes, Certifications et Labels
-
Certification : BREEAM










