




Vente Bureau 736 m²
06000 Nice
736 m²
5 692 500 €
HT/HD
Disponibilité : Immédiate

Jeanne-Marie FAUVET
Description
LE REGINA
Palace le plus emblématique de Nice, de style Belle Epoque.
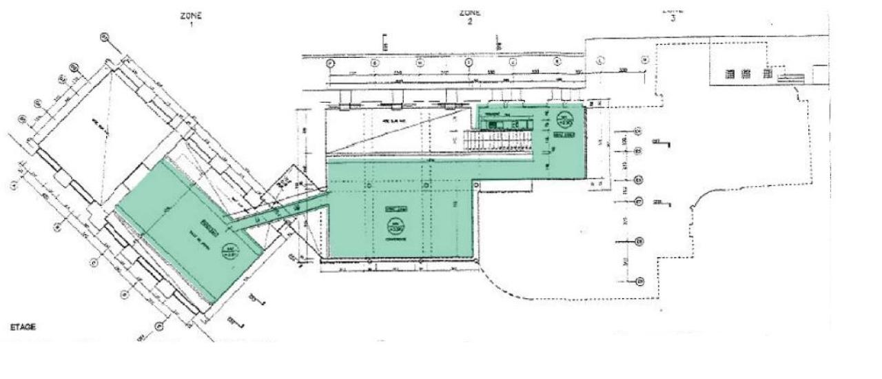
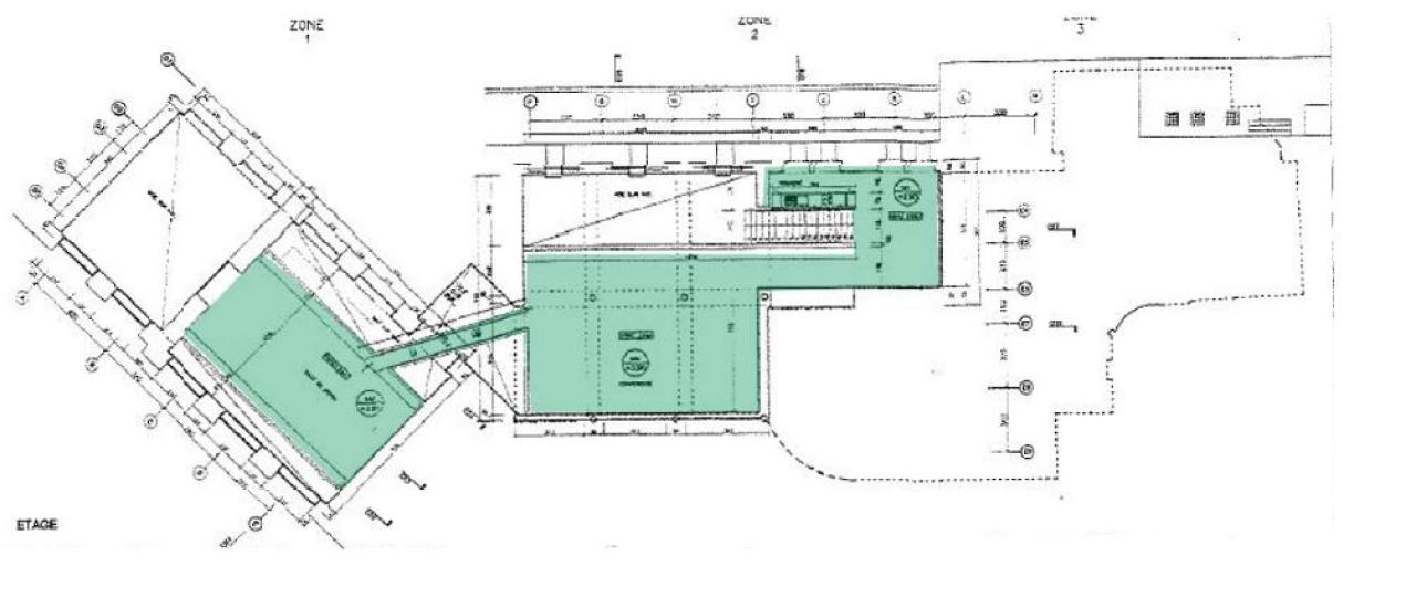
Nous vous proposons à la vente, un local à usage professionnel situé au RDC du palace de style Belle Epoque : le Regina, inscrit aux monuments historiques. Cet immeuble était historiquement exploité en hôtel, puis a été reconverti en immeuble à usage d’habitation dans les années 1930. Le local bénéficie d'une superficie d’environ 735,66 m², actuellement exploité en cabinet médical.
Diagnostics techniques réalisés le 10/10/24 : Absence d'Amiante et de termite - métrage Carrez : 735,66 m²
Offre de Bureaux à la Vente – Le Régina, Boulevard de Cimiez, NICE
Situé au prestigieux Le Régina, un bâtiment emblématique de style Belle Époque, ce local à usage professionnel ou commercial de 735,66 m² vous offre une opportunité unique dans l’un des quartiers les plus prisés de Nice. Cet espace, en excellent état, a été réhabilité par l'architecte Marc BARANI et est actuellement exploité comme cabinet médical. Avec une distribution moderne, un environnement résidentiel calme et une architecture intérieure contemporaine, ce bien allie charme historique et fonctionnalités modernes.
Accessibilité et Transports
- Routière : Voie rapide à 5 minutes, facilitant les déplacements.
- Transports en commun : Plusieurs lignes de bus à proximité et stations de tramway à moins de 1,5 km.
- Aéroport : À seulement 15 minutes de l'aéroport Nice Côte d'Azur, idéal pour les déplacements professionnels.
Services et Prestations
- Climatisation réversible : Système autonome avec ventilo-convecteurs en plafonnier, groupe à changer (devis réalisé).
- Prestations haut de gamme : Bureaux partiellement cloisonnés, sanitaires privatifs, et éclairage encastré.
- Hauteurs sous plafond impressionnantes : Jusqu’à 6,50 m dans certaines zones, offrant une sensation d'espace et de grandeur.
- Revêtements : Sols en résine et caoutchouc très résistant, murs peints pour un look épuré et professionnel.
- Espaces supplémentaires : Deux caves en sous-sol totalisant 130 m².
Disponibilité : Immédiate
Situé dans le quartier prestigieux de Cimiez, connu pour son histoire et son architecture, Le Régina est un lieu incontournable à Nice. Ce bien est une opportunité idéale pour une entreprise cherchant à s'implanter dans un cadre raffiné et prestigieux. Contactez-nous pour organiser une visite ou obtenir plus d’informations.
Services & prestations
Aménagements
-
Bureaux cloisonnés : Partiellement
-
Sanitaires : Privatif(s)
Equipements
-
Climatisation : Réversible groupe à changer (devis réalisé)
-
Distribution chauffage : Réversible
-
Distribution climatisation : Ventilo convecteur en plafonnier
-
Eclairage Bureaux : Luminaires encastrés
-
Fenêtres
-
Production climatisation : Autonome
-
Revêtement mural : Peinture
-
Sol bureaux : En résine et caoutchouc très résistant
-
Type de chauffage : Individuel
Type / Etat du bâtiment
-
IGH / Code du travail : Code du travail
-
Immeuble copropriété
-
Type d'immeuble : Palace belle époque
Activité non autorisée
-
Activités non autorisées : Activités nocturnes nuisances olfactives et sonores
Informations complémentaires
-
Prestations Haut de gamme, Réhabilitation réalisée par l’architecte Marc BARANI
-
Très belles hauteurs sous-plafond à certains endroits (6,50 m)










