




5 Avenue Albert Bichot
21200 Beaune
1 349 m²
2 967 360 €
HT/HD
Disponibilité : 31/12/2026

Edouard CHADAN
Description
BEAUNE -
ZAC DES CERISIERES
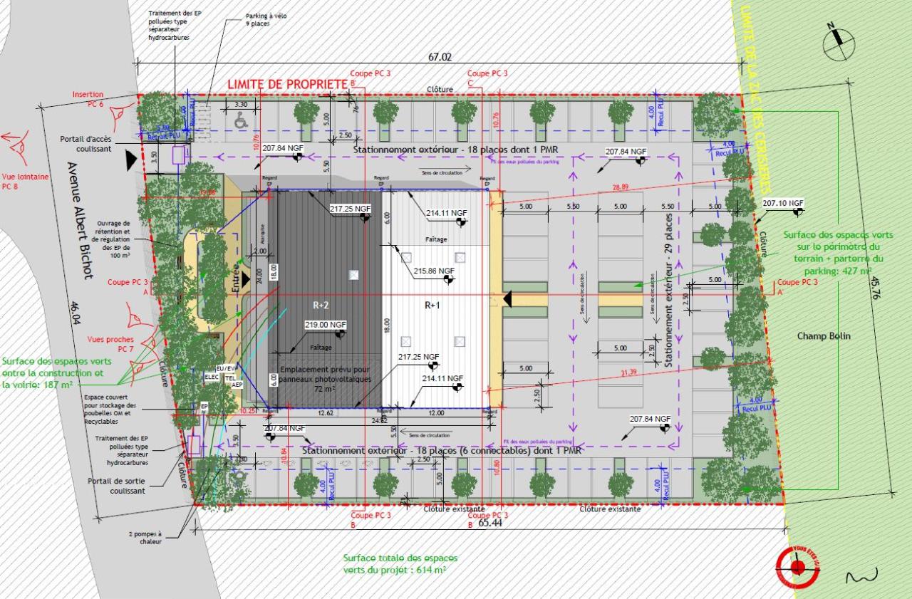
Au cœur de la ZAC des Cerisières, Immeuble tertiaire neuf à construire d'une surface de 1.349 m² environ ainsi que 64 places de parking extérieures privatives.
A VENDRE - BUREAUX
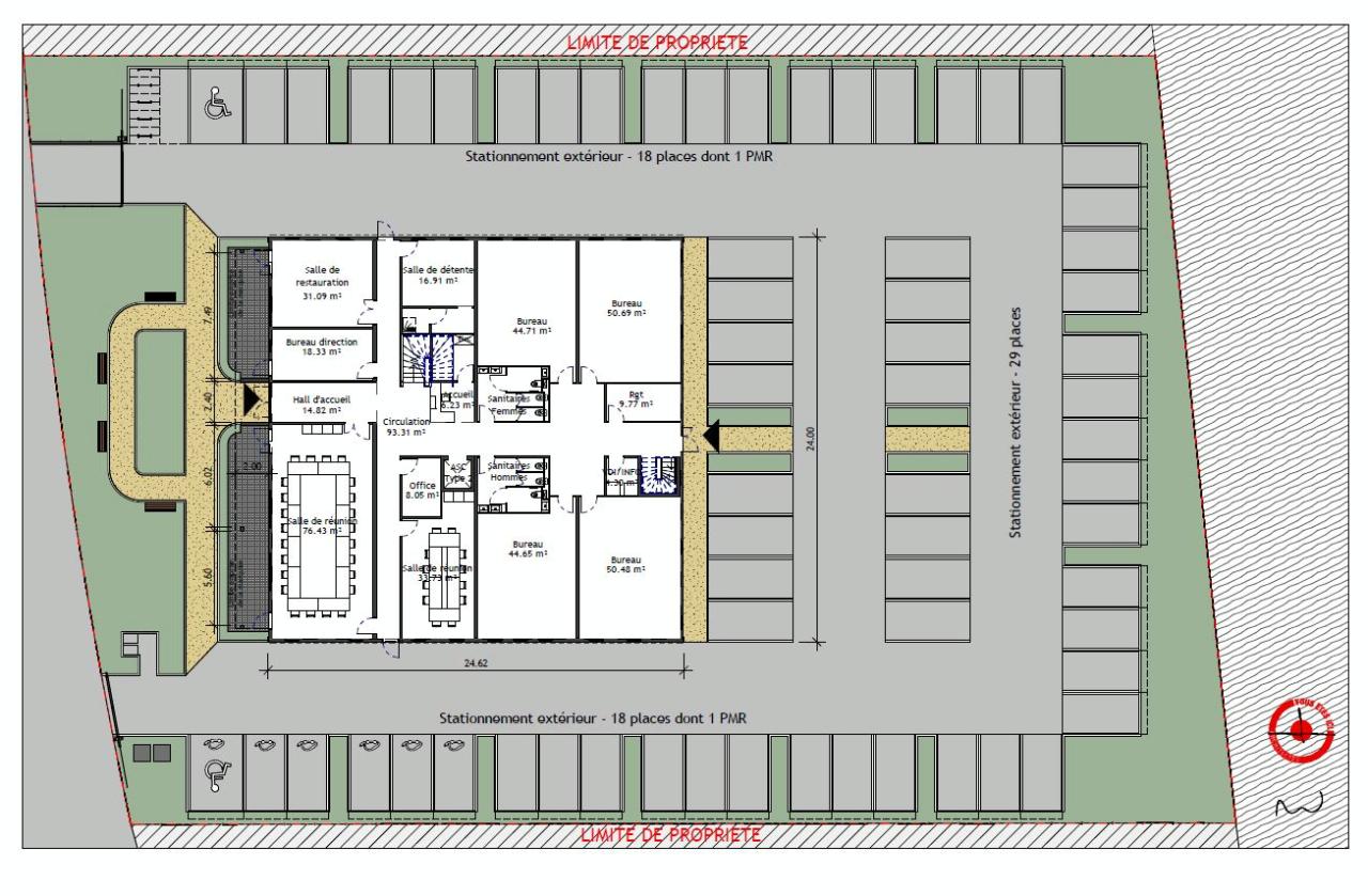
Au coeur de la ZAC des Cerisières à BEAUNE, immeuble de bureaux en R+2 à construire d'une surface totale de 1.349 m² environ ainsi que 64 places de parking extérieures privatives.
L'immeuble est sécurisé par un contrôle d'accès ; il est équipé d'un ascenseur permettant l'accès aux Personnes à Mobilité Réduite.
Les bureaux sont aménagés en open space ; ils sont climatisés (climatisation réversible).
Accessibilité à proximité :
- Autoroute A6
- Rocade de BEAUNE.
Services & prestations
Aménagements
-
Accès Pers. Mobilité Réduite
-
Aménagement des bureaux : Espaces Ouverts
-
Effectif théorique : - 206 personnes cumulées
-
Sanitaires : Parties communes
Equipements
-
Ascenseurs : 1
-
Climatisation : Réversible
-
Eclairage Bureaux : Luminaires encastrés LED
-
Faux plafond : Dal. fibres minéral.
-
Plinthes techniques périphériques
-
Sol bureaux : Moquette/Carrelage
Prestations de service
-
Fitness : A proximité
-
Restauration : A proximité immédiate
-
Sécurité : Contrôle d'accès
Normes, Certifications et Labels
-
Catégorie ERP : 5 type W
Type / Etat du bâtiment
-
Etat de l'immeuble : Neuf


