




92 - 98 BOULEVARD VICTOR HUGO
92110 Clichy
470 m²
1 400 000 €
HT/HD
Disponibilité : Nous consulter

Benjamin HECTOR
Description
A proximité du métro RER Saint-Ouen, nous vous proposons d'acquérir un plateau climatisé situé au 14ème étage d'un immeuble de bureaux.
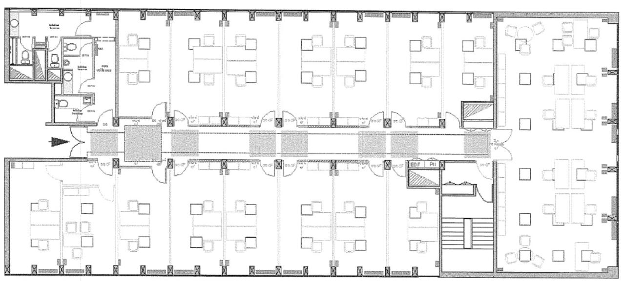
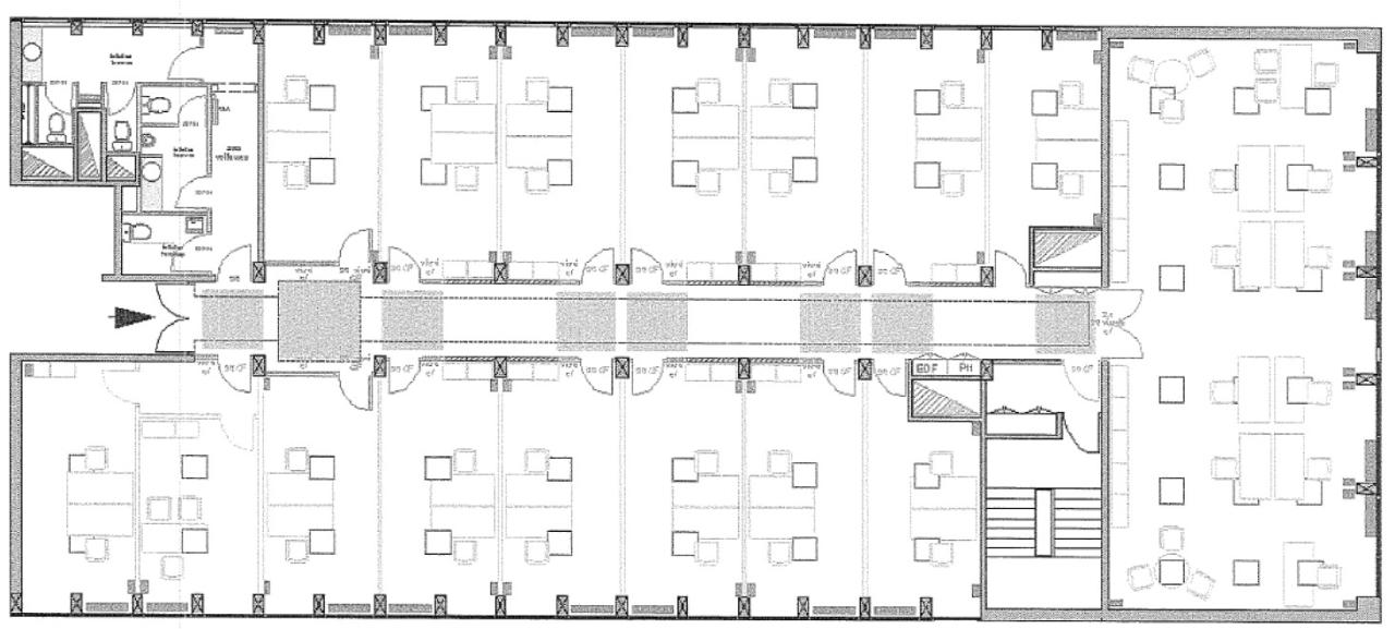
BNP Paribas Real Estate vous propose d'acquérir des locaux d'une surface totale de 420 m² de bureaux à Clichy.
Les locaux se situent au 14ème étage d'un ensemble immobilier de bureaux.
Vous y retrouverez un plan facilement modulable composé d'espaces ouverts et semi cloisonnés avec cloisonnement vitré amovible, salles de réunion, cuisine, RIE et ascenseur.
De plus, l'actif bénéficie d'une réserve d'environ 50 m² situés au sous-sol et de dix emplacements de parking.
Il dispose d'une bonne accessibilité à seulement 5 minutes à pied du métro RER Saint-Ouen et à 7 minutes en voiture de la Porte de Clichy.
N'hésitez plus et venez découvrir ce bien.
Services & prestations
Aménagements
-
Accueil : Hôtesses
-
Accès Pers. Mobilité Réduite : Ascenseur
-
Aménagement des bureaux : Cloisonnés Cloisonnement amovible
-
Complexe Salle de réunion : Oui, Oui
-
Sanitaires
Equipements
-
Ascenseurs
-
Climatisation : Réversible
-
Câblage informatique : Plinthes périphériques & fibre optique
-
Eclairage Bureaux : Luminaires encastrés
-
Sol bureaux : Moquette
Prestations de service
-
Cafétéria : Cuisine
-
Parking
-
Restauration : Deux RIE
-
Sécurité : PC Sécurité 24h/24
Type / Etat du bâtiment
-
Etat de l'immeuble : Etat d'usage
-
Immeuble copropriété










