




Vente Bureau 3 481 m²
34000 Montpellier
3 481 m²
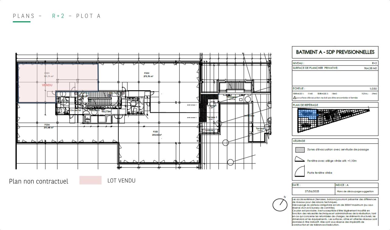
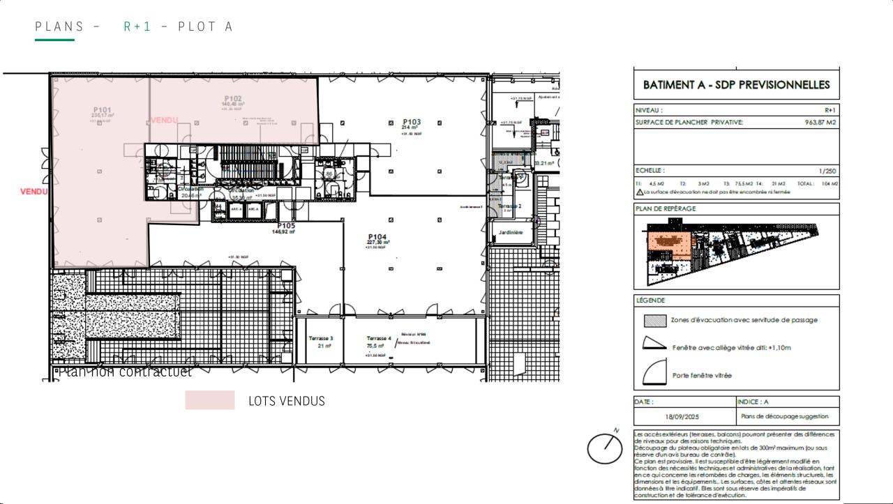
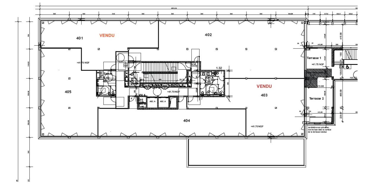
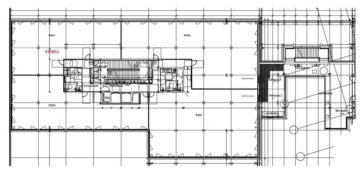
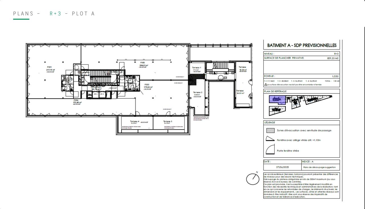
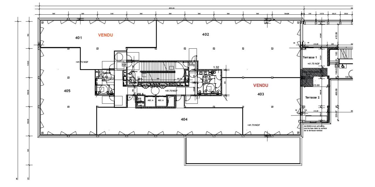
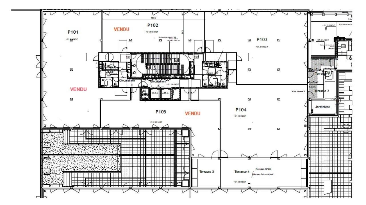
Divisible dès 168 m²
à partir de 544 830 €
HT/HD
Disponibilité : 31/12/2026

Caroline DE BOISGELIN-ABECASSIS
Description
MONTPELLIER SUD - À VENDRE - CAMBACÉRÈS - HALLE NOVA
Au Sud de Montpellier, dans le futur parc d'activité Cambacérès, découvrez à la vente La Halle Nova, cet ensemble de 4 immeubles de bureaux neufs sur un socle commun de commerces.
A la vente, surfaces de bureaux avec terrasse sur le plot A au sein d'un complexe d'immeubles de bureaux et de coworking, sur un socle commun de 4 275 m² de commerces.
Véritable révolution urbaine, la Halle Nova comprendra :
des bureaux aménagés en open-space entièrement climatisés
du coworking
Les collaborateurs et les usagers pourront profiter d'un large panel de services tels qu'un hall d'accueil, un service de conciergerie, un espace bien-être et une crèche de 40 places.
L'ensemble Halle Nova regroupera de nombreuses infrastructures à la pointe de l'innovation : espace de fitness de 1 500 m², food court et superette, école et nombreux commerces.
Plusieurs serres végétales et terrasses seront mises à disposition des collaborateurs pour leur offrir un cadre de travail agréable. Ils disposeront également de 500 places de parking en sous-sol.
Le projet Halle Nova vise les labels BREEAM Very Good et bas carbone E2C1.
LE SECTEUR CAMBACERES
Le quartier Cambacérès sera un haut lieu de l'innovation et du travail collaboratif pour les entreprises du secteur du numérique grâce notamment à la présence d'une Halle de l'Innovation de 12 000 m².
La création d'un grand parc arboré contribuera à en faire un environnement de travail calme, paisible et verdoyant, dans le respect de l'écologie.
DISPONIBILITÉ : T4 2026
Les frais de notaires sont offerts pour toutes les réservations actées avant le 31/12/2025
ACCESSIBILITÉS
Tramway ligne 1 Arrêt "Odysseum" à 600 m
Gare Montpellier Sud de France à 3 minutes
Aéroport Montpellier Méditerrannée à 8 minutes
Autoroute A9 à 3 minutes
Futures lignes de bus et allongement de la ligne de tramway en cours.
Services & prestations
Aménagements
-
Accueil
-
Aménagement des bureaux : Espaces Ouverts
-
Espace bien-être : En RDC
-
Espaces Co-working : Au RDC , R+1 et R+2 du bâtiment A et B
Equipements
-
Ascenseurs
-
Climatisation : Réversible
Prestations de service
-
Conciergerie
-
Fitness : 1500 m² en RDC
-
Parking : 380 Places
Extérieurs
-
Terrasses - jardins : Terrasse + serres
Normes, Certifications et Labels
-
Catégorie ERP : 5 ERP 5ème W
-
Certification : BREEAM
Type / Etat du bâtiment
-
Etat de l'immeuble : Neuf
-
Etat des locaux : Neuf
Informations complémentaires
-
Foodcourt, supérette
-
Click&collect, livraison
-
Serre végétales - slow life










